Appartamento
Vendita
Vendita Appartamento

Appartamento

Viale Gaspare Spontini, Riccione, Rimini

500.000 €
87
mq
3
Locali
2
Camere
2
Bagni

Recensisci questo Immobile

Devi essere registrato per lasciare una recensione.

Accedi

Nessuna recensione ancora. Sii il primo!

Descrizione

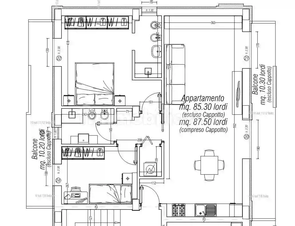
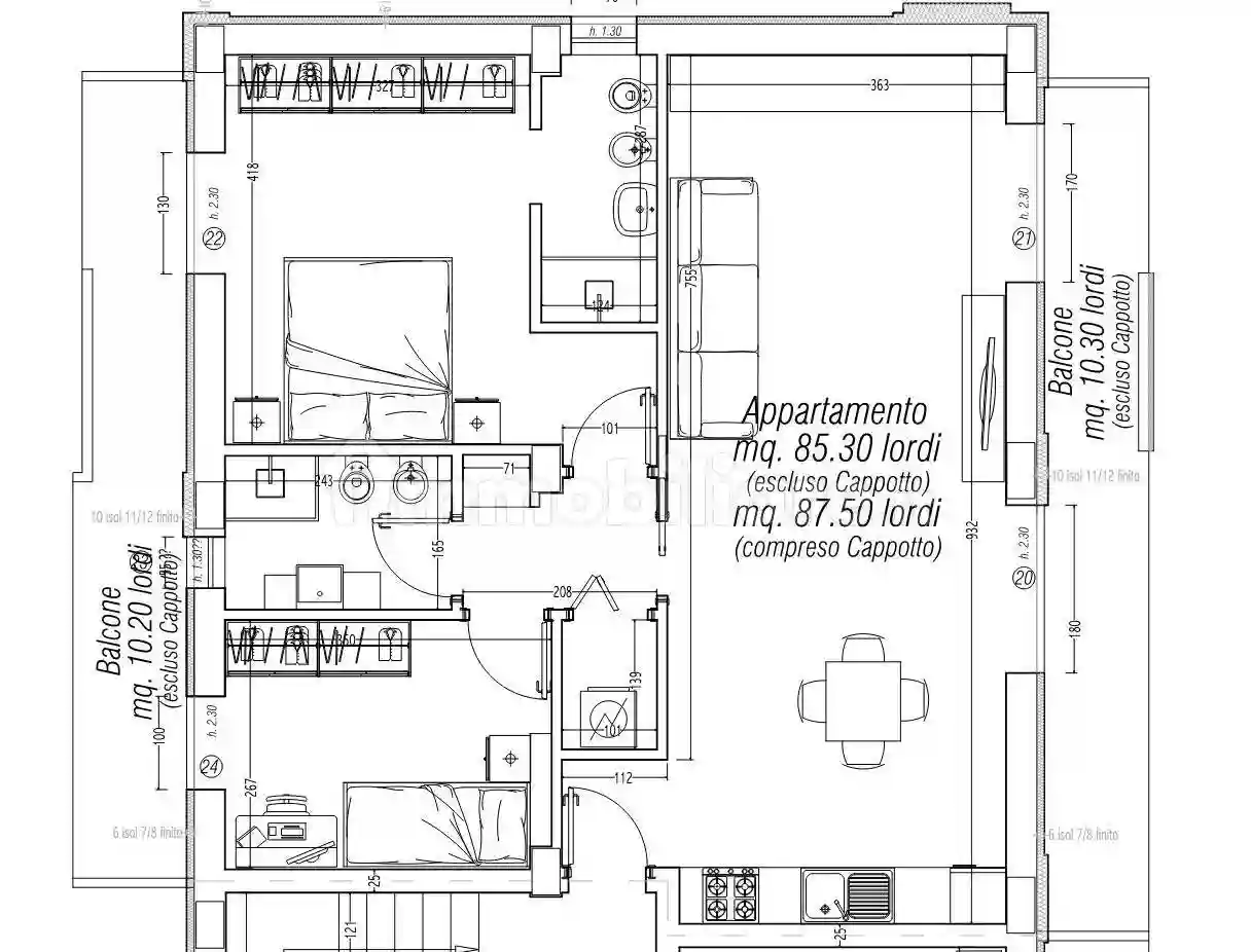
**Appartamento Riccione Zona Alba Mare**

Scopri il tuo angolo di paradiso a Riccione, a soli 150 metri dal mare! Questo appartamento di nuova costruzione, situato in una piccola palazzina servita da ascensore con classe energetica A+, offre un'esperienza abitativa unica. Con un grande salone luminoso e una cucina a vista, è perfetto per chi ama vivere in spazi aperti e accoglienti.

L'immobile è circondato da due ampi terrazzi abitabili, ideali per godersi il sole e l'aria fresca. Composto da due camere con la possibilità di una terza, due bagni e una lavanderia/ripostiglio, ogni dettaglio è stato curato con rifiniture di altissimo livello. La tecnologia all'avanguardia, come il riscaldamento a pavimento e il cappotto termico, garantisce comfort e efficienza energetica. Garage al piano terra.

Non perdere l'occasione di personalizzare gli interni secondo il tuo stile! Inoltre, la posizione strategica vicino alla passeggiata di Viale Dante pedonale rende questo appartamento ancora più desiderabile. Garage al piano terra.
Non lasciarti sfuggire questa opportunità!

Prezzo richiesto: € 500.000
Nostro Riferimento A364
Per ulteriori informazioni o chiarimenti potete contattare l'Agenzia Immobiliare TRONI e PESARESI con sede a Riccione Via Catullo, 21 Riccione (RN) sarà lieta di fornirti tutte le informazioni necessarie, organizzare una visita e assisterti in ogni fase dell'acquisto.

Ufficio 0541 692472
Giulio 347 5308724
Daniela 329223012 sito www.immobiliarepesaresi.it. email. info@immobiliarepesaresi.it

Caratteristiche

Piano 2
Ascensore Si
Stato Nuovo / In costruzione
Riscaldamento Autonomo, a pavimento, alimentato a pompa di calore

Servizi e accessori

Esposizione esterna Fibra ottica Impianto tv centralizzato Infissi esterni in doppio vetro / PVC Porta blindata VideoCitofono

Posizione

Zona: Alba Mare (Alba Mare, Parco, Marano, Spontricciolo)

Referente

Immobiliare Troni e Pesaresi

Storico

Pubblicato 12 Jan 2026
Aggiornato 18 Feb 2026
Sul mercato 39 giorni
ID Annuncio 121993794

Recensioni

Vedi tutte
F

Federica Bucci

4.7

Ricordo ancora il momento in cui ho trovato la casa perfetta per il mio nuovo inizio, grazie alla cura dei dettagli e all’ampia scelta di immobili disponibili. Sono stata seguita passo passo da un tea...

F

Fabio Torino

4.7

L'esperienza di vendere la mia casa a Riccione è stata emozionante e senza stress grazie all'agenzia. Mi sono sentito seguito passo dopo passo, con un'assistenza impeccabile sia durante le visite sia...

N

Noemi Cavalli

5.0

Quando ho deciso di cercare un investimento immobiliare a Riccione, mi sono affidata a questa agenzia perché mi hanno colpito la loro serietà e la puntualità negli appuntamenti. Mi sono sentita seguit...

N

Nino Zampieri

4.7

Appena sono entrato in agenzia sono rimasto colpito dalla trasparenza con cui hanno gestito tutto il processo. Mi hanno seguito passo dopo passo, aiutandomi a trovare la seconda casa al mare che desid...