Indietro
Vendita Casa indipendente

Casa indipendente

Fontanelle, Treviso

180.000 €
150
mq
5
Locali
3
Camere
1
Bagni

Recensisci questo Immobile

Devi essere registrato per lasciare una recensione.

Accedi

Nessuna recensione ancora. Sii il primo!

Descrizione

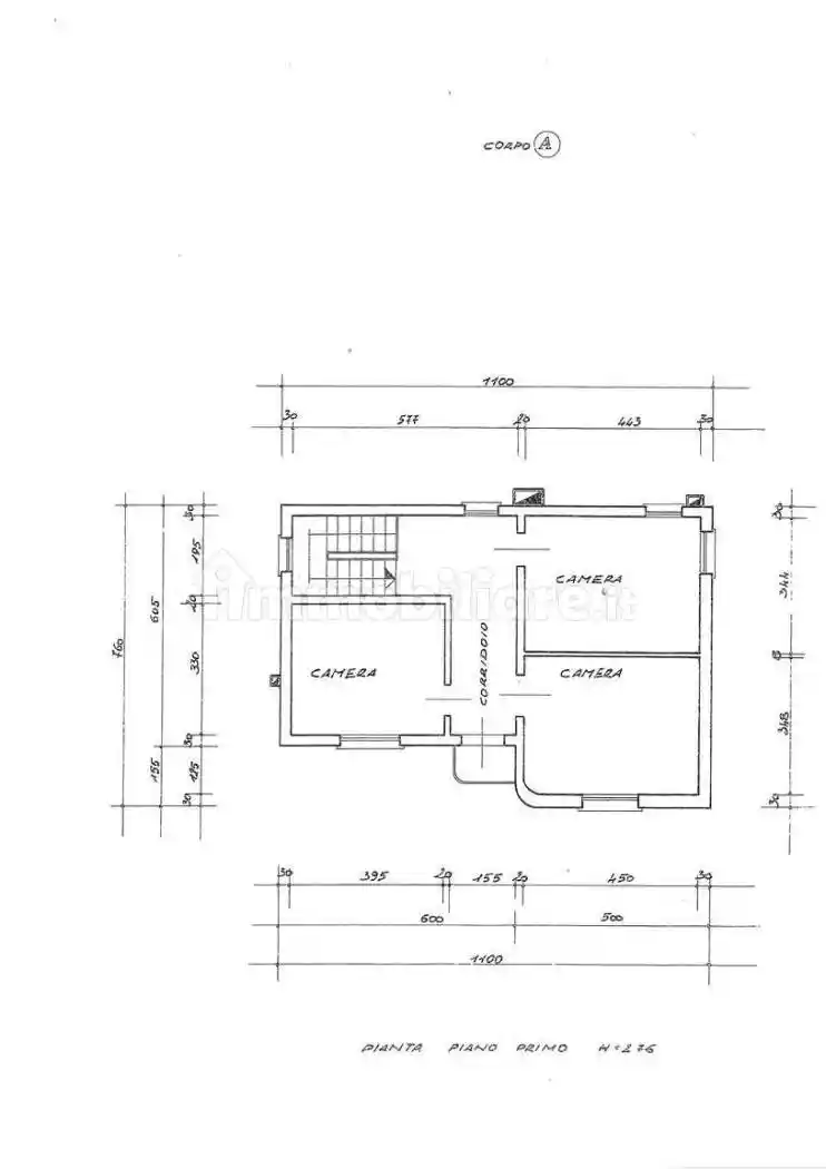
Fontanelle (Treviso) in zona residenziale centrale, vendiamo abitazione singola degli anni 60 in buone condizioni generali . Abitazione disposta su due piani fuori terra e composta al piano terra da ingresso, cucina separata abitabile, ampio soggiorno, bagno lavanderia. Al piano primo troviamo tre camere matrimoniali. Completa la proprietà un magazzino-garage di circa 50 mq. e un giardino recintato di circa 1400 mq.

Si intende precisare che gli indirizzi presenti negli annunci non sono identificativi dell'ubicazione precisa dell'immobile, danno un riferimento solo generico della zona al cliente che ricerca, al fine di tutelare la privacy e riservatezza del venditore
AGENZIA IMMOBILIARE CIENNE ODERZO (TREVISO) TEL 0422.815891 altre nostre proposte su: www.immobiliarecienne.it
CON NOI LA VENDITA DEL VOSTRO IMMOBILE SI PERFEZIONERA' IN TEMPI BREVISSIMI, NON ASPETTATE A CONTATTARCI AL N. 0422.815891. AFFRETTATEVI!
I mutui più vantaggiosi del mercato per convenienza e flessibilità. Fino al 100% del valore dell’immobile.

Caratteristiche

Ascensore No
Stato Buono / Abitabile
Riscaldamento Autonomo
Garage 1 in box privato/box in garage

Servizi e accessori

Caminetto Porta blindata Giardino privato Infissi esterni in doppio vetro / legno

Posizione

Storico

Pubblicato 01 Jan 2026
Aggiornato 24 Feb 2026
Sul mercato 55 giorni
ID Annuncio 122245562

Recensioni

Vedi tutte
V

Valentina Frigerio

5.0

Quello che mi ha colpito di più è stata l’attenzione ai dettagli e la professionalità durante tutto il processo di acquisto. Sono stata seguita passo passo, con grande disponibilità e competenza, e ho...

S

Sofia Costanzo

4.7

Ho trovato l’appartamento perfetto grazie a questa agenzia, mi sono sentita seguita passo dopo passo. Sono stata molto soddisfatta dell’assistenza post-vendita, che ha curato ogni dettaglio e reso il...

N

Nicoletta Bernardi

4.7

L’attenzione ai dettagli e la chiarezza con cui mi hanno seguita sono stati ciò che mi ha colpito di più. Ho trovato un team trasparente e molto disponibile, che ha ascoltato le mie esigenze con pazie...