Appartamento via Umbria 28, Fiera Vecchia, Rimini
Vendita
Vendita Appartamento

Appartamento via Umbria 28, Fiera Vecchia, Rimini

Via Umbria, Rimini, Rimini

486.000 €
103
mq
5
Locali
3
Camere
2
Bagni

Recensisci questo Immobile

Devi essere registrato per lasciare una recensione.

Accedi

Nessuna recensione ancora. Sii il primo!

Descrizione

Inserito nel tranquillo quartire residenziale denominato zona delle Regioni, in primavera 2026 partiranno i lavori per la realizzazione della "Residenza RE.DI". Si tratta di una piccola palazzina di solo 8 unità composta da 2 Bilocali, 2 Trilocali e 4 Quadrilocali unici sul piano, tutti con ampi spazi esterni.
Residenza RE.DI si trova a soli 200 mt. dal lago Mariotti da dove si può imboccare la pista ciclo-pedonale che conduce, attraverso il Parco, direttamente all'Arco d'Augusto per proseguire fino al Parco del Mare di Piazzale Kennedy.
Il quartiere offre i servizi di prima necessità primo su tutti il Conad Lago raggiungibile a piedi ed altresì le scuole materne, primarie e secondarie.
Le caratteristiche costruttive sono di ultima generazione atte a garantire una classe energetica "A".
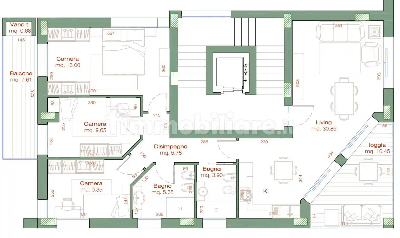
In particolare proponiamo l'appartamento al 3° piano (UNICO sul piano) composto da un ingresso su soggiorno con cucina a vista, 3 camere, doppi servizi con finestra, loggia abitabile sul soggiorno compreso garage al piano interrato.

Altre soluzioni visionabili sul nostro sito all'indirizzo: obiettivocasarimini.it nella sezione delle "Nuove Costruzioni"

Caratteristiche

Piano 1°, con ascensore
Ascensore Si
Stato Nuovo / In costruzione
Riscaldamento Autonomo
Garage 1 in box privato/box in garage

Servizi e accessori

Cancello elettrico Videocitofono Porta blindata Esposizione esterna Accesso per disabili Balcone Impianto tv con parabola satellitare Infissi esterni in triplo vetro / legno

Posizione

Zona: Fiera Vecchia (Via Covignano, Villaggio Azzurro, Fiera Vecchia)

Storico

Pubblicato 29 Dec 2025
Aggiornato 15 Feb 2026
Sul mercato 53 giorni
ID Annuncio 122248800

Recensioni

Vedi tutte
V

Valeria Castelli

4.7

Grazie di cuore per avermi aiutata in questa scelta così importante. Sono stata davvero colpita dalla disponibilità e dalla competenza del team, che mi ha seguita passo dopo passo, spiegandomi ogni de...

E

Elisa Ferro

4.3

Ho trovato un supporto fantastico durante un momento difficile, grazie alla professionalità e alla conoscenza approfondita delle normative dell’agenzia. Mi sono sentita seguita e aiutata in ogni passo...