Indietro
Vendita Villetta a schiera

Villetta a schiera

Via San Martino, 18, Carbonia, Sud Sardegna

Prezzo
118
mq
4
Locali
3
Camere
2
Bagni

Recensisci questo Immobile

Devi essere registrato per lasciare una recensione.

Accedi

Nessuna recensione ancora. Sii il primo!

Descrizione

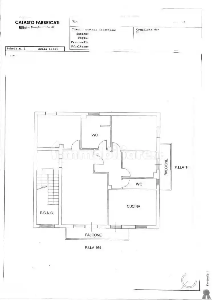
Proponiamo in vendita una graziosa villetta a schiera situata a Barbusi, in una zona tranquilla e residenziale. L’immobile, disposto su due livelli, è in ottime condizioni e rappresenta la soluzione ideale per famiglie o per chi è alla ricerca di comfort e funzionalità.

Al piano rialzato troviamo un accogliente open space composto da salotto e cucina abitabile, con un primo bagno a servizio della zona giorno. L’ingresso è valorizzato da un piccolo terrazzino privato, perfetto per momenti di relax all’aperto.

Al primo piano si sviluppa la zona notte, composta da tre camere da letto e un secondo bagno, funzionale e ben rifinito.

Completa la proprietà un posto auto privato, incluso nella vendita.

L’immobile verrà venduto privo di arredi, pronto per essere personalizzato secondo i propri gusti.

Caratteristiche

Ascensore No
Stato Buono / Abitabile

Posizione

Referente

Easyimmobiliare.it Carbonia

Storico

Pubblicato 14 Jan 2026
Aggiornato 28 Feb 2026
Sul mercato 45 giorni
ID Annuncio 122277170

Recensioni

Vedi tutte
L

Lorena Ruggeri

4.3

Se cercate un'agenzia immobiliare affidabile, consiglio di affidarsi a chi ascolta davvero le vostre esigenze. Mi sono trovata molto bene: sono stata seguita con disponibilità e professionalità, e mi...