Vendita Casa indipendente Luxury

Casa indipendente

Finale Ligure, Savona

Prezzo
181
mq
5
Locali
3
Camere
2
Bagni

Recensisci questo Immobile

Devi essere registrato per lasciare una recensione.

Accedi

Nessuna recensione ancora. Sii il primo!

Descrizione

Hai mai pensato che la Vita altro non sia che un sogno? Da bambino, appena in grado di articolare qualche parola inizi a formulare un sacco di piccoli "perché?". Diventato grande Ti rimangono poche domande ma pesanti come macigni. Improvvisamente smetti di cercare risposte, comprendi che il Significato più profondo è stato custodito fin dall'inizio dentro di Te. Ora sei finalmente capace di assaporare la meravigliosa Essenza della Vita: chiudi gli occhi e Ti ritrovi come in sogno sulla spiaggia, ci sei solo Tu, ma è quanto basta. Ti guardi attorno... un gabbiano portato dalla brezza plana fiero fra il sole accecante e il mare rilucente di pietre preziose. Altissimo, libero, riecheggia il suo canto alla Vita. Senti che Tutto è in Te e Tu sei Tutto. Quel gabbiano sei Tu. Ti lasci andare inebriato, Ti abbandoni sulla sabbia dorata. Non hai domande, il cuore batte forte ricolmo di gioia. E' la gioia di avere trovato tutto ciò che cercavi:

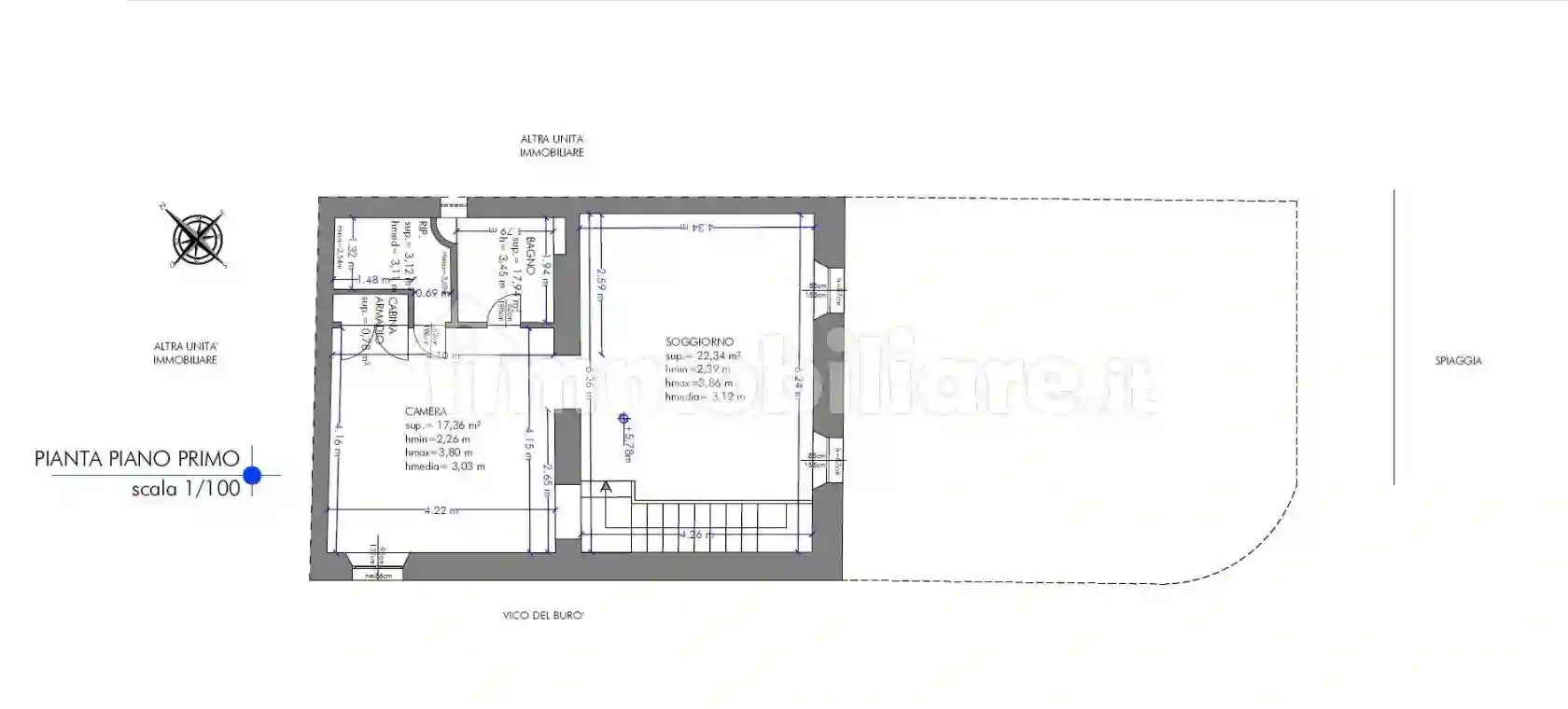
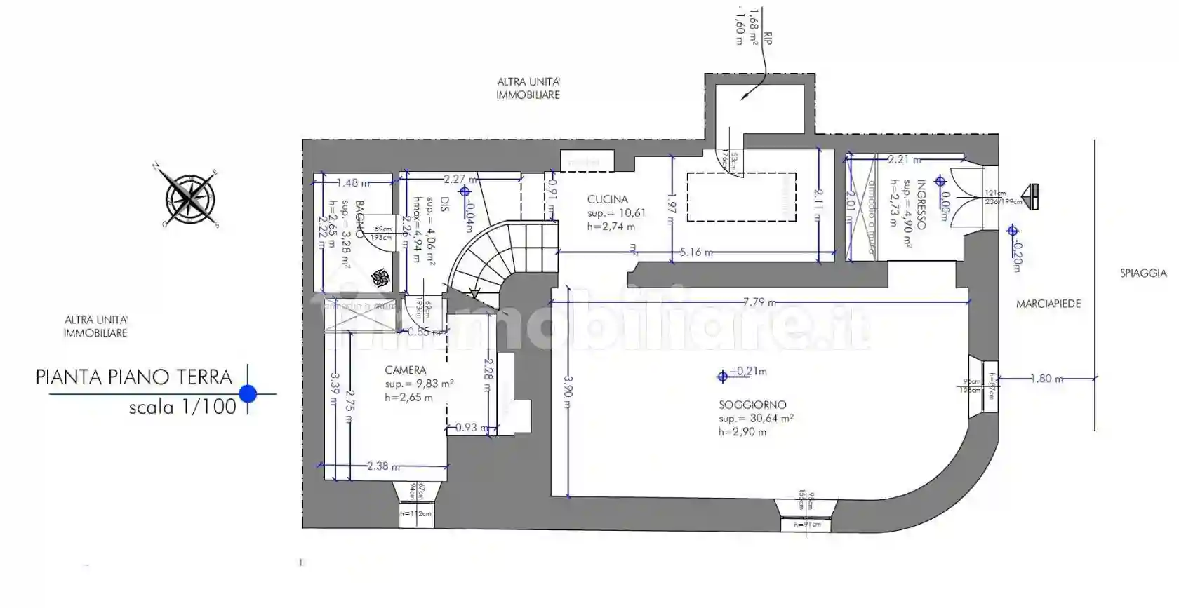
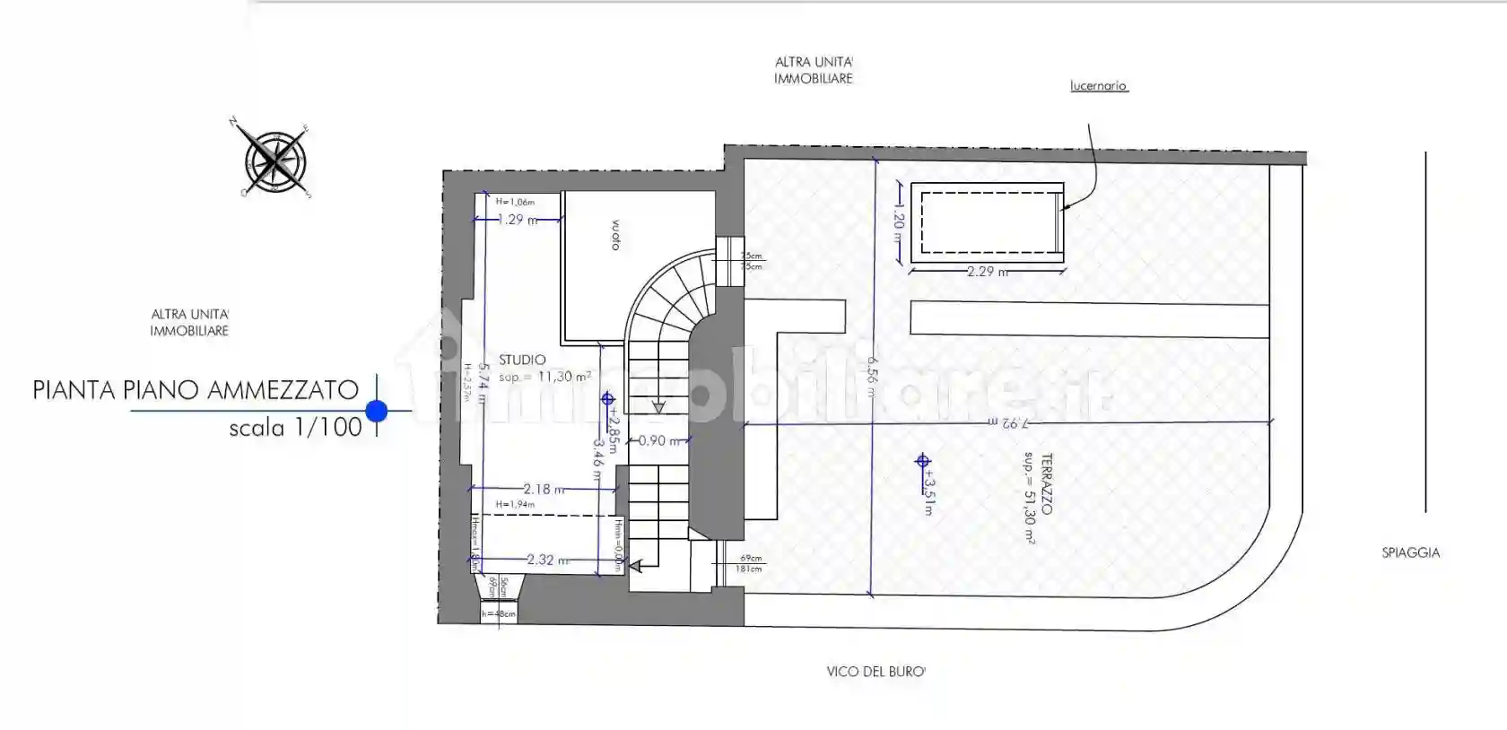
Direttamente sulla spiaggia del cuore del Borgo Saraceno di Varigotti: Unica, Irripetibile, Esclusiva, Meravigliosa Casa costituita da un corpo intero da terra a tetto con ingresso indipendente, disposta su tre piani , composta di ingresso, cinque locali, cucina, spogliatoio, ripostiglio, doppi servizi, grande terrazza mozzafiato "Pieds dans l'Eau".

La proprietà è oggi in corso di integrale ristrutturazione a carattere conservativo. L'intervento è pensato e attuato per il risanamento radicale delle mura riportandole alla pietra per ricostituire gli intonaci con materiali specifici per assicurare resistenza alle caratteristiche climatiche marine.

Certificazione Energetica "F" EPgl,nren 126,68 kWh/mq anno - Trattativa Riservata

Caratteristiche

Ascensore No
Stato Buono / Abitabile
Riscaldamento Autonomo, a radiatori, alimentato a metano

Servizi e accessori

Armadio a muro Esposizione esterna Impianto tv singolo Infissi esterni in doppio vetro / legno

Posizione

Referente

Immobiliare Valente

Storico

Pubblicato 19 Mar 2026
Aggiornato 25 May 2026
Sul mercato 68 giorni
ID Annuncio 122482136

Recensioni

Vedi tutte
C

Claudio Nardi

5.0

Stavo cercando di vendere un locale commerciale a Finale Ligure e ho trovato l'agenzia perfetta. Mi hanno seguito con grande competenza durante tutta la trattativa, facendomi sentire supportato in ogn...

E

Edoardo Lazzari

4.7

Ho trovato l’agenzia molto professionale e affidabile. Mi ha seguito passo dopo passo con chiarezza nelle spiegazioni e puntualità negli appuntamenti, rendendo tutto il processo molto più semplice. Do...