Vendita Progetto

Progetto

Via Benedetto Cairoli, Dolo, Venezia

255.000 €
100
mq
4
Locali

Recensisci questo Immobile

Devi essere registrato per lasciare una recensione.

Accedi

Nessuna recensione ancora. Sii il primo!

Descrizione

Scopri l’essenza del lusso contemporaneo in una residenza completamente rigenerata, dove ogni dettaglio è stato ripensato per offrirti un’esperienza abitativa superiore. Materiali di pregio, tecnologie di ultima generazione e un design elegante si fondono in ambienti spaziosi, luminosi e funzionali.
Questa casa non è solo rinnovata: è stata trasformata per ridefinire gli standard dell’abitare moderno. Vivi il presente con stile, comfort e sostenibilità.
Benvenuto nella tua nuova idea di casa.
IL COMFORT DEL NUOVO. IL VANTAGGIO DEL RIGENERATO.
Abitare in un immobile in Classe A significa godere ogni giorno di una qualità della vita superiore. Le soluzioni impiantistiche avanzate e l’uso di materiali altamente performanti garantiscono efficienza energetica, aria pulita e una temperatura ideale in ogni stagione.
Addio bollette elevate, umidità o sbalzi termici: la tua casa ti accoglierà sempre con il massimo benessere, in ogni momento dell’anno.
Coniuga il risparmio del rigenerato con le performance del nuovo: una scelta intelligente, sostenibile e di valore.

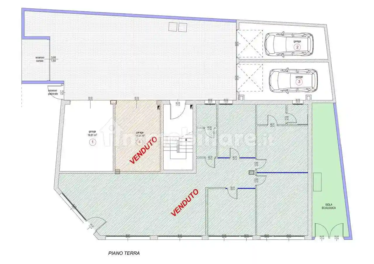
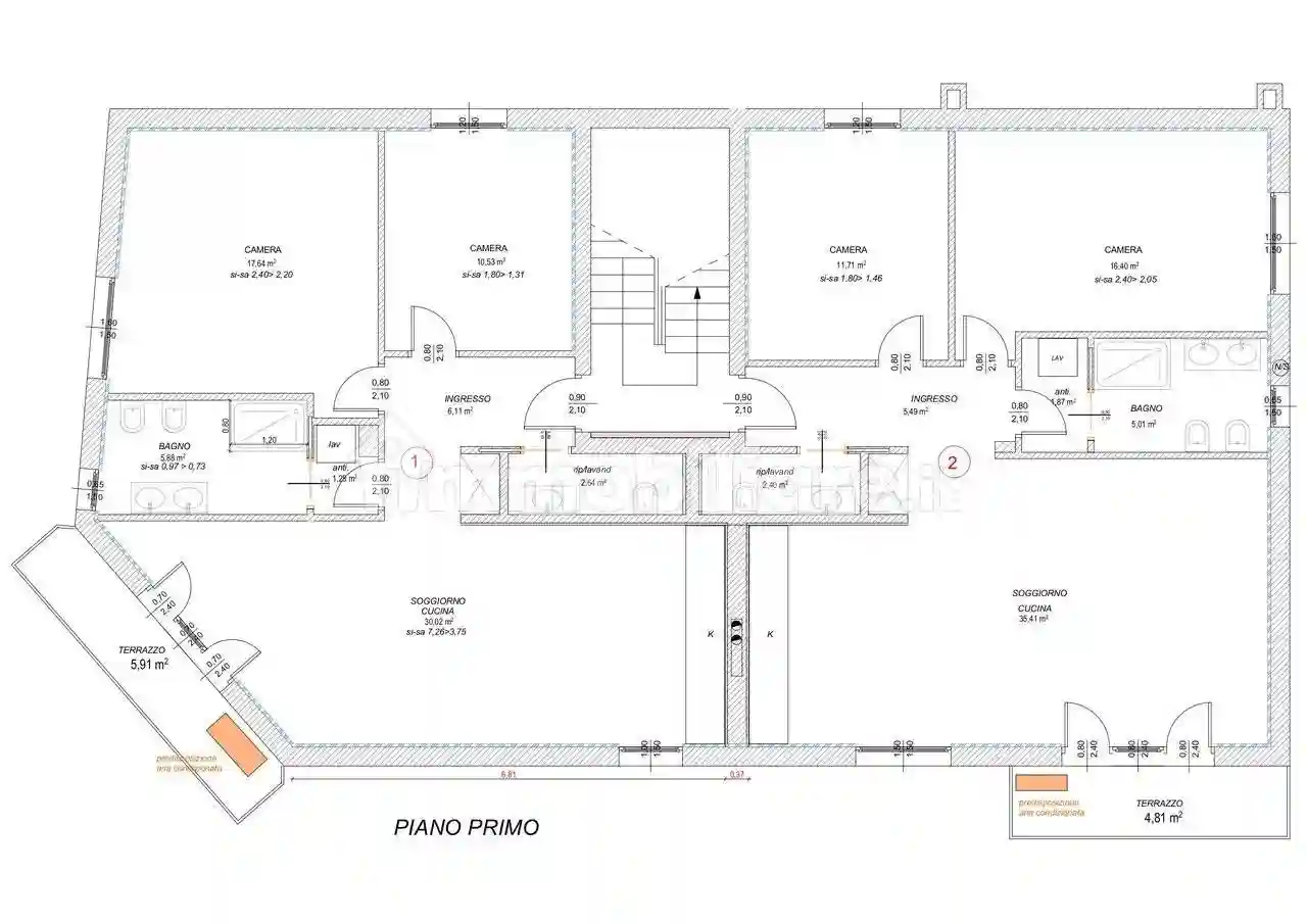
Caratteristiche

Stato Nuovo / In costruzione
Riscaldamento Autonomo, a pavimento, alimentato a pompa di calore

Servizi e accessori

Infissi esterni in doppio vetro / PVC

Posizione

Referente

Davide Scapin

Storico

Pubblicato 14 Jan 2026
Aggiornato 24 Feb 2026
Sul mercato 40 giorni
ID Annuncio 122529590