Indietro
Terratetto unifamiliare via Colemi 7, Tuturano - Cerano, Brindisi
Vendita
Vendita Casa indipendente

Terratetto unifamiliare via Colemi 7, Tuturano - Cerano, Brindisi

Via Colemi, Brindisi, Brindisi

100.000 €
Ottimo Affare: 28% sotto la media
218
mq
4
Locali
3
Camere
2
Bagni

Recensisci questo Immobile

Devi essere registrato per lasciare una recensione.

Accedi

Nessuna recensione ancora. Sii il primo!

Descrizione

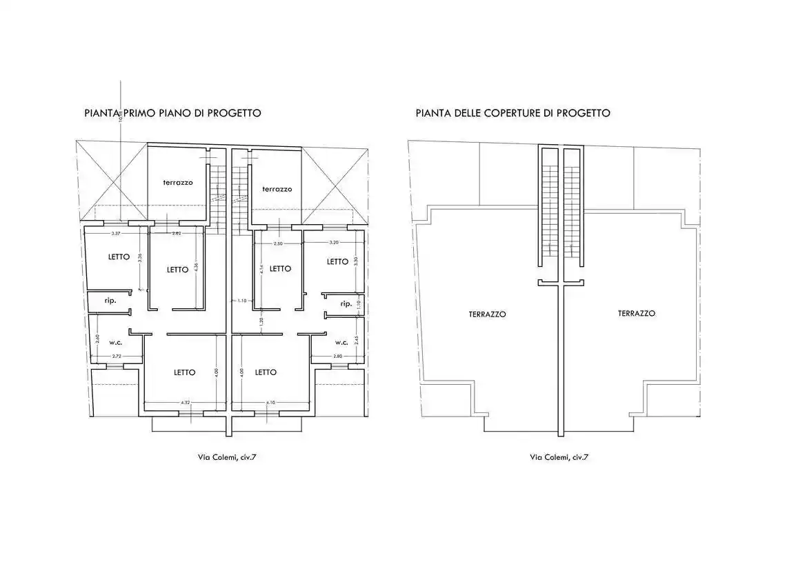
TUTURANO – Via Colemi, 7.
Immobile con progetto approvato per due villette a schiera.
In zona tranquilla e servita, proponiamo fabbricato da demolire con progetto già approvato per la realizzazione di due villette a schiera indipendenti, ciascuna con giardino privato e box auto.
L’attuale struttura, non più abitabile, rappresenta un’ottima opportunità per imprese ed investitori: grazie al permesso a costruire già rilasciato, è possibile avviare immediatamente i lavori, risparmiando tempo e costi legati alle pratiche urbanistiche.
Il progetto prevede:

* Villette su tre livelli;
* Spazi interni luminosi e ben distribuiti;
* Giardino esclusivo e box auto;
* Possibilità di personalizzazione delle finiture;Posizione strategica, comoda ai servizi principali e ben collegata con le vie di comunicazione.
Ideale per chi cerca un investimento pronto o per chi desidera realizzare una nuova abitazione su misura.
Ci trovate anche su:
Facebook cerca “Gruppo Tecnocasa Brindisi Levante”.
Instagram cerca “Tecnocasa Brindisi Levante”.

Caratteristiche

Piano Piano terra, con ascensore
Ascensore Si
Stato Nuovo / In costruzione
Riscaldamento Assente
Garage 1 in box privato/box in garage

Servizi e accessori

Terrazzo Giardino privato

Posizione

Zona: Tuturano - Cerano (Sant'Elia, La Rosa, Tuturano)

Referente

Emanuele Magagnino .

Storico

Pubblicato 31 Dec 2025
Aggiornato 15 Feb 2026
Sul mercato 51 giorni
ID Annuncio 122619728

Recensioni

Vedi tutte
G

Grazia Zanella

4.7

Stavo cercando un terreno per costruire e ho trovato l’agenzia perfetta. Mi ha accompagnata durante tutte le visite, sempre puntuale e disponibile, e mi ha aiutata a trovare il posto ideale a Brindisi...