Vendita Appartamento

Appartamento

Via Pietro Maroncelli, , 5, Catania, Catania

Prezzo
Ottimo Affare: 41% sotto la media
95
mq
5+
Locali
2
Camere
1
Bagni

Recensisci questo Immobile

Devi essere registrato per lasciare una recensione.

Accedi

Nessuna recensione ancora. Sii il primo!

Descrizione

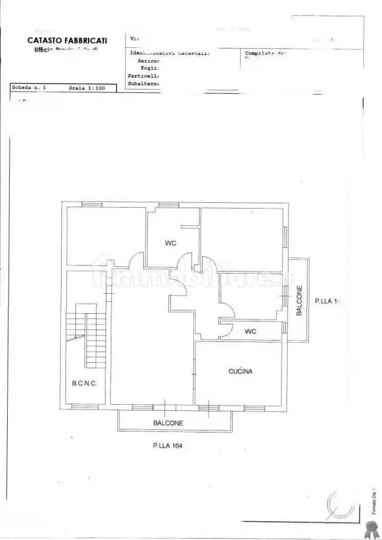
Piena e perfetta proprietà per una quota pari all’intero dell’appartamento ad uso civile abitazione ubicato al piano terra del maggior fabbricato, composto di: ingresso/soggiorno, cucina, due camere, servizio e bagno

Le foto pubblicate nel presente annuncio e la planimetria allegata potrebbero essere materiale di repertorio. La documentazione relativa all’immobile sarà consultabile previo appuntamento presso la nostra sede.

Astexte è un punto di riferimento nel settore delle aste immobiliari e nella gestione dei crediti deteriorati, i cosiddetti NPL, fondato da professionisti con oltre vent'anni di esperienza nel campo immobiliare.

Il nostro obiettivo principale è assistere i clienti nell'acquisizione di immobili all'asta e nella risoluzione delle situazioni debitorie complesse, operando sempre nel rispetto dei più elevati standard morali ed etici.

Di seguito i servizi offerti dalle nostre agenzie:

* Analisi Tecnica e Legale: Prima di procedere, esaminiamo attentamente ogni aspetto tecnico e legale della procedura per garantire la massima trasparenza e sicurezza.

* Valutazione di Metodi Alternativi: Oltre all'asta, esploriamo altre opzioni per l'acquisizione del bene, assicurando di trovare la soluzione più adatta alle tue esigenze.

* Consulenza Finanziaria Personalizzata: Grazie alla preziosa collaborazione con i nostri partner di Creditoxte, un'azienda registrata nell'elenco dei mediatori creditizi presso l'OAM con il numero M274, potrete contare su un supporto esperto nella selezione della soluzione finanziaria più vantaggiosa per le vostre esigenze.

* Assistenza Burocratica Completa: Gestiamo per te tutti gli adempimenti burocratici, semplificando il processo e garantendo una procedura senza intoppi.

* Attivazione PEC e Firma Digitale: Dove necessario, ti forniamo assistenza nell'attivazione della Posta Elettronica Certificata e nella firma digitale per una partecipazione sicura ad un’asta telematica.

* Analisi Chiara dei Costi: Ti forniamo un'analisi dettagliata e trasparente dei costi, in modo che tu possa pianificare il tuo investimento con fiducia.

* Partecipazione All'Asta con Supporto Personale: Ti accompagniamo durante l'asta, offrendoti supporto personale e consulenza professionale per prendere decisioni informate.

* Assistenza Post-asta Completa: Il nostro impegno non finisce con l'asta. Continuiamo a seguirti e assisterti fino alla consegna delle chiavi, garantendo una transizione senza stress e senza problemi.

L'immobile viene venduto dal tribunale tramite asta giudiziaria e il prezzo indicato si riferisce all'offerta minima. Per chi acquista come prima casa, sono previste agevolazioni.

Cerchi casa all'Asta?
Ti sei già informato?
Pensi che il mutuo al 100% sia solo una pubblicità?
Astexte, la soluzione!

Cosa aspetti?
Chiama adesso!

Caratteristiche

Piano T
Ascensore No
Stato Buono / Abitabile

Servizi e accessori

Cucina

Posizione

Zona: Rapisardi (Rapisardi, Ballo, Cibele)

Referente

Astexte Catania

Storico

Pubblicato 13 Mar 2026
Disattivato 18 May 2026
Sul mercato 69 giorni
ID Annuncio 122856508

Recensioni

Vedi tutte
O

Oscar Visconti

5.0

Ho avuto un'esperienza fantastica con questa agenzia immobiliare a Catania! Sono stato molto soddisfatto della loro competenza nella trattativa e della puntualità negli appuntamenti, che hanno reso tu...

E

Emma Celentano

4.3

Dopo aver avuto brutte esperienze con altre agenzie, questa volta sono stata davvero colpita dalla rapidità e onestà nelle valutazioni. Mi sono sentita seguita e aiutata passo dopo passo nel trovare i...

P

Paola Berardi

4.3

Durante il processo di ricerca mi sono sentita davvero supportata e tranquilla, grazie alla loro tempestività nelle risposte e alla precisione nella documentazione. Mi sono trovata seguita passo passo...