Vendita Appartamento

Appartamento

Via Alfred Nobel, 102, Catania, Catania

Prezzo
Buon Prezzo: 18% sotto la media
125
mq
3
Locali
2
Camere
2
Bagni

Recensisci questo Immobile

Devi essere registrato per lasciare una recensione.

Accedi

Nessuna recensione ancora. Sii il primo!

Descrizione

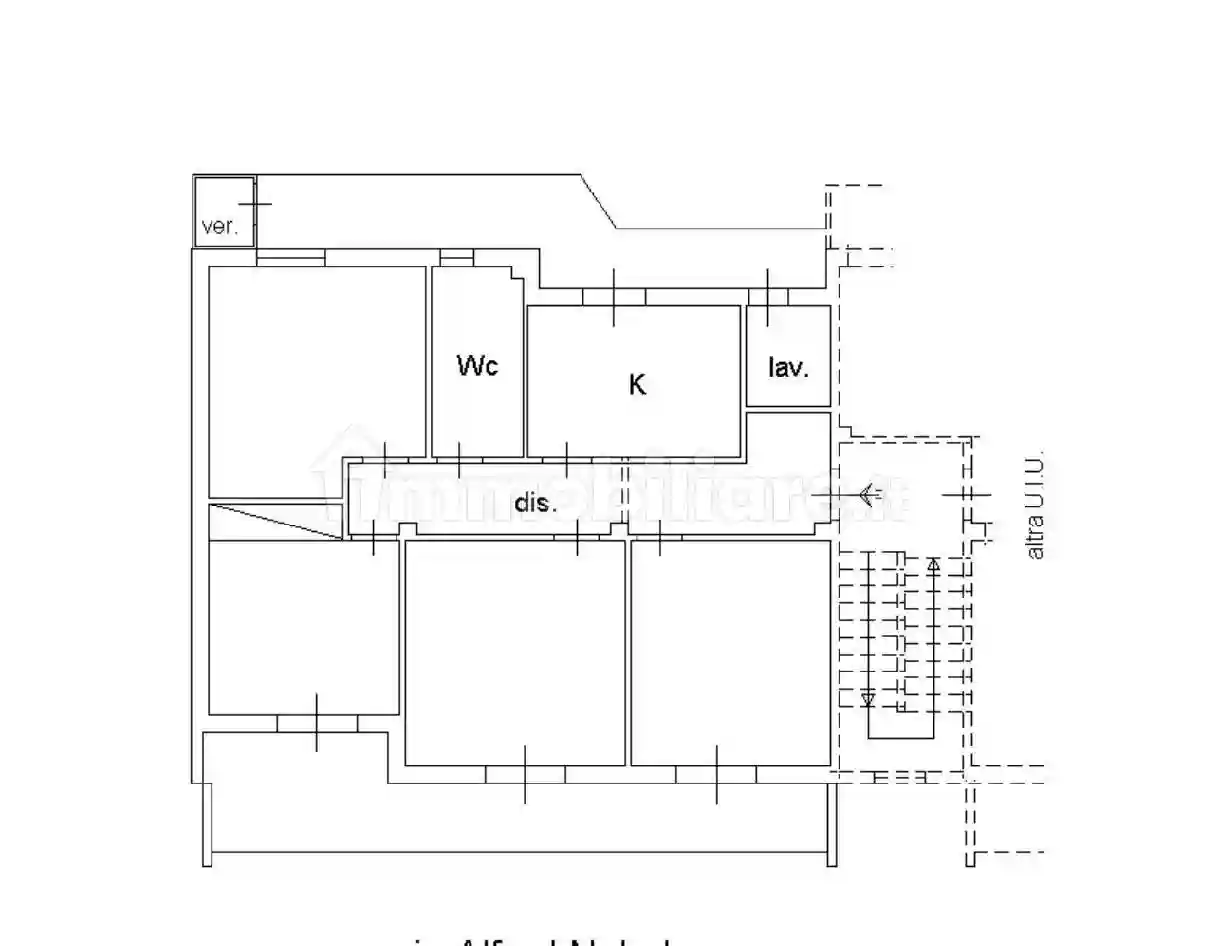
Lineri centro piazza Mercato ampio quadrilocale 124 mq posto al primo piano in contesto signorile in piccolo residence (palazzo ristrutturato) con garage di 16 mq(20.000,00).
Composto da ingresso, saloncino, cucina abitabile, tre ampie camere letto, doppi servizi ripostiglio.
N.B. vendita incluso appartamento e garage 16 mq 125.000,00

Caratteristiche

Piano 1
Ascensore No
Stato Buono / Abitabile

Servizi e accessori

Esposizione doppia Fibra ottica Impianto tv centralizzato Infissi esterni in doppio vetro / metallo Porta blindata

Posizione

Zona: Garibaldi - Nesima (Nesima, Indipendenza, San Giorgio)

Referente

Tramontana Immobiliare

Storico

Pubblicato 04 Mar 2026
Disattivato 13 Mar 2026
Sul mercato 79 giorni
ID Annuncio 122875156

Recensioni

Vedi tutte
E

Edoardo Gatti

5.0

Ho venduto la mia casa a Catania grazie a un’agenzia immobiliare che si è dimostrata puntuale e molto attenta alle mie esigenze. Sono stato molto soddisfatto del supporto che ho ricevuto, sempre segui...

S

Sandro Bianchi

5.0

Le mie precedenti esperienze con agenzie erano state frustranti, ma questa volta ho trovato una gestione molto più professionale. Sono stato seguito con competenza in ogni fase, riuscendo a ridurre lo...

A

Angelo Fumagalli

4.7

Stavo cercando un appartamento con vista mare a Catania e grazie alla loro competenza sono riuscito a trovare quello che desideravo in tempi ragionevoli. Mi sono sentito seguito e supportato in ogni p...

R

Riccardo Donati

4.7

Durante tutto il processo mi sono sentito davvero tranquillo, perché hanno sempre avuto un approccio molto chiaro e trasparente e mi hanno spiegato ogni passo senza lasciare nulla al caso. Sono stato...

A

Adriano Chiesa

4.7

Quando ho deciso di cambiare casa per stare più vicino ai miei genitori anziani, ero un po’ confuso su da dove cominciare, ma l’agenzia mi ha fatto sentire subito a mio agio. La loro rapidità nel trov...