Vendita Casa indipendente

Casa indipendente

Campogalliano, Modena

395.000 €
300
mq
5
Locali
4
Camere
2
Bagni

Recensisci questo Immobile

Devi essere registrato per lasciare una recensione.

Accedi

Nessuna recensione ancora. Sii il primo!

Descrizione

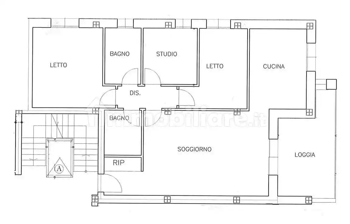
Tipica Casa Singola degli anni 70/80 parzialmente ristrutturata nel corso degli anni composta da zona servizi al piano terra (utilizzabile come mini appartamento con cucina, camera, studio e bagno - oltre ad ampia Lavanderia e Garage di 45 mq.), appartamento di 150 mq. posto al primo piano composto da ingresso, salone con camino, cucina abitabile, balcone, bagno, 3 camere matrimoniali. Soffitta posta al piano sottotetto.
Ampio Giardino privato su 4 lati..
POSSIBILITA' DI CREARE 2 UNITA' ABITATIVE BEN DISTINTE.
Se vuoi ricevere maggiori informazioni vieni a trovarci presso l’IMMOBILIARE BLU in Via Roma n. 16 a Campogalliano (MO).
Oppure se preferisci contattaci ai numeri 059/528616 oppure 3485191505
Visita il nostro sito www.immobiliareblu.it per altre proposte.
Puoi anche scriverci via email a: info@immobiliareblu.it specificando le tue richieste o le informazione dell’annuncio visionato.
Con lo scopo di rendere la vostra esperienza di acquisto o vendita il più semplice e piacevole possibile offriamo i seguenti servizi:
1. SCELTA DELL’IMMOBILE PIU’ ADATTO ALLE TUE ESIGENZE
Ci puoi trovare su tutti i maggiori portali immobiliari, sul nostro sito, sui social network, sui volantini e sulle riviste. Scegli l’immobile più adatto a te e contattaci col metodo che preferisci per ricevere tutte le informazioni.
2. APPUNTAMENTI IN UFFICIO E SUL POSTO
Ci dedicheremo completamente alle tue esigenze, guarderemo insieme le nostre proposte e studieremo nel dettaglio foto e planimetrie, così da avere le idee chiare su ciò che andremo a vedere in appuntamento.
3. VALUTAZIONE DEI LAVORI DI RISTRUTTURAZIONE
Se ti preoccupa affrontare una ristrutturazione fatti consigliare da professionisti del mestiere per cercare di capire l’entità dei lavori e i costi, così da capire se l’acquisto può fare al tuo caso.
4. EVENTUALE CONSULENZA NELLA SCELTA DEL MUTUO
Se non sai a chi affidarti nella richiesta di un mutuo o di un prestito personale, ti indicheremo e nel caso seguiremo la tua richiesta di finanziamento o direttamente con la banca o con il lavoro di un consulente finanziario.
5. VERIFICHE SULLA CONFORMITA’
Controlleremo la conformità urbanistica e catastale dell’immobile e possiamo indirizzarvi da un tecnico abilitato per eventuali sanatorie, così da non riscontrare alcun tipo di problema davanti al notaio. Inoltre seguiamo direttamente noi il tecnico che prepara l’APE, attestato di prestazione energetica necessaria per vendere.
6. VERIFICA DELLA DOCUMENTAZIONE
Recuperiamo e controlliamo tutta la documentazione dell’ immobile, così da effettuare tutti i controlli per poter garantire una vendita o un acquisto ottimale.
7. TUTELA FINO AL ROGITO
Non è scontato, quindi giusto specificare che l’agente immobiliare che vi seguirà durante la trattativa resterà al vostro fino al rogito, e oltre se dovesse servire!

Caratteristiche

Ascensore No
Stato Buono / Abitabile
Riscaldamento Autonomo

Servizi e accessori

Caminetto Infissi esterni in doppio vetro / legno

Referente

Immobiliare Blu sas

Storico

Pubblicato 12 Jan 2026
Aggiornato 24 Feb 2026
Sul mercato 44 giorni
ID Annuncio 123043001

Recensioni

Vedi tutte
G

Gianluca Diamante

5.0

Durante il processo di acquisto del terreno a Campogalliano mi sono sentito davvero sereno, perché ho trovato un team che mi ha seguito passo dopo passo con molta trasparenza e attenzione ai dettagli....

E

Enrico Pagani

5.0

Dopo aver girato diverse agenzie senza trovare niente di adatto, questa volta ho trovato un team che ha fatto davvero la differenza. La loro professionalità e attenzione ai dettagli mi hanno colpito s...

D

Davide Savini

4.7

Ricordo bene quel momento in cui ho trovato finalmente l’appartamento vista mare che cercavo: l’agenzia si è distinta per la trasparenza e la precisione nella documentazione, rendendo tutto molto più...

N

Nino Sabbatini

4.3

Quando ho deciso di comprare la mia prima casa, ho scelto questa agenzia perché mi hanno colpito subito la flessibilità negli orari e la capacità di ascolto del mio progetto. Sono stato seguito passo...