Vendita Casa indipendente

Terratetto unifamiliare via Roma 30, Casal Cermelli

Via Roma, Casal Cermelli, Alessandria

Prezzo
Ottimo Affare: 48% sotto la media
270
mq
4
Locali
3
Camere
1
Bagni

Recensisci questo Immobile

Devi essere registrato per lasciare una recensione.

Accedi

Nessuna recensione ancora. Sii il primo!

Descrizione

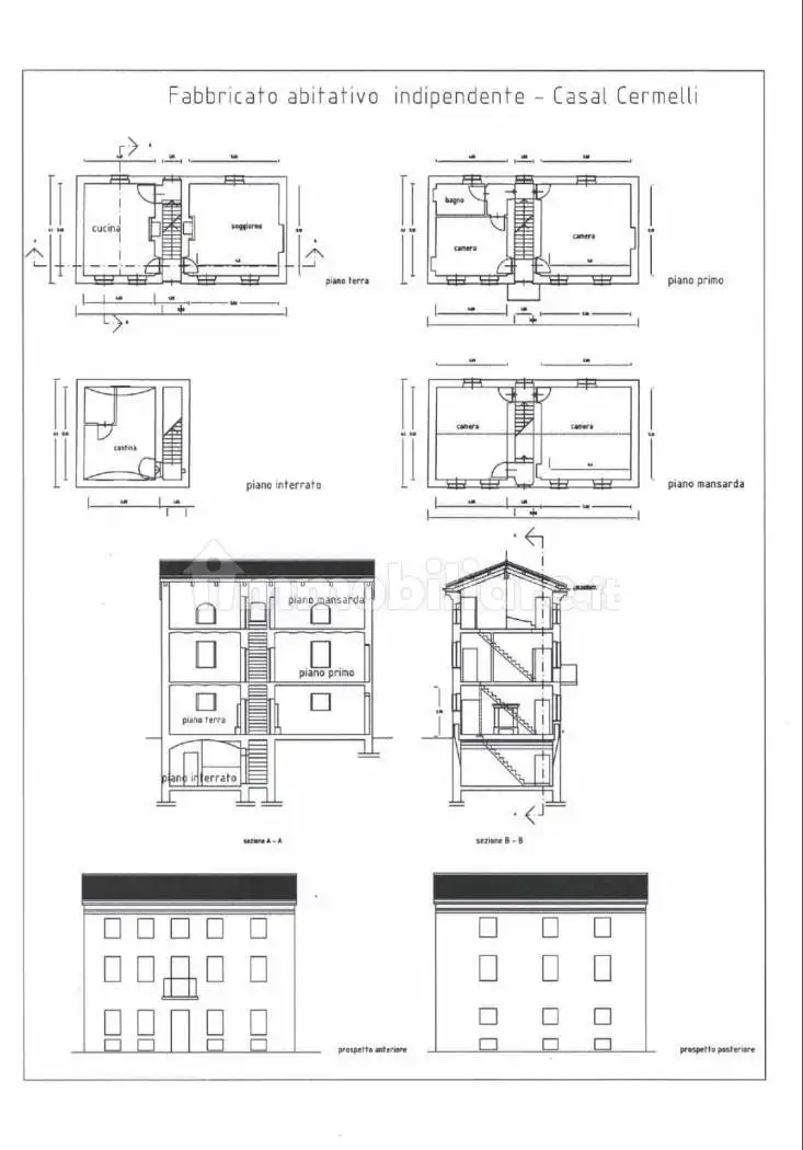
Privato vende a Casal Cermelli vicino al centro paese e a pochi passi da Alessandria, casa di civile abitazione con giardino recintato di circa 400 mq libera su quattro lati e così composta:
- piano terra cucina e soggiorno entrambe con camino (ampie metrature)
- primo piano n. 2 camere da letto (ampie metrature) e bagno
- secondo piano n. 2 locali mansardati
- cantina piano interrato
Telefonare ore ufficio

Caratteristiche

Piano Piano terra
Stato Buono / Abitabile
Riscaldamento Autonomo
Garage 2 in parcheggio/garage comune

Servizi e accessori

Cucina Infissi esterni in vetro / metallo

Posizione

Agenzia Immobiliare

Storico

Pubblicato 26 Dec 2025
Aggiornato 06 Apr 2026
Sul mercato 101 giorni
ID Annuncio 123061003