Indietro
Casa indipendente
Vendita
Vendita Casa indipendente

Casa indipendente

Via Livornese, , 48, Empoli, Firenze

199.000 €
Buon Prezzo: 20% sotto la media
110
mq
5
Locali
3
Camere
2
Bagni

Recensisci questo Immobile

Devi essere registrato per lasciare una recensione.

Accedi

Nessuna recensione ancora. Sii il primo!

Descrizione

IN VENDITA A EMPOLI
Località Santa Maria

TERRATETTO DA RISTRUTTURARE - 5 vani con giardino

Proponiamo in vendita un immobile situato a Santa Maria, in una zona residenziale interna molto tranquilla.

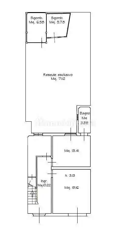
Il terratetto è disposto su due livelli ed è composta al piano terra da ingresso nel soggiorno, cucina, bagno e accesso al giardino tergale di circa 75 mq oltre a due locali di deposito;
al piano primo ci sono due camere da letto matrimoniali, un balcone oltre ad uno studio/cameretta oltre al bagno

5 vani, distribuiti in modo funzionale
2/3 camere da letto;
2 bagni

ABITAZIONE 100 MQ
CANTINA - TAVERNA 12 MQ
GIARDINO 74 MQ

L'immobile è da ristrutturare.

Prezzo richiesto: € 199.000

L'indirizzo riportato è indicativo e non corrisponde alla reale ubicazione dell'immobile.
Maggiori informazioni verranno fornite telefonicamente.

Non una semplice agenzia immobiliare ma uno studio professionale che può supportarti in ogni fase della compravendita:
✅ Assistenza per mutui e pratiche finanziarie
✅ Supporto tecnico e burocratico
✅ Consulenza per ristrutturazioni e valorizzazione dell’immobile
✅ Collaborazione con professionisti qualificati del territorio

Scopri il reale valore del tuo immobile con una valutazione professionale e senza impegno:
Per maggiori informazioni o per richiedere una valutazione gratuita:

Caratteristiche

Ascensore No
Stato Da ristrutturare
Riscaldamento Autonomo, a radiatori, alimentato a metano

Servizi e accessori

Taverna

Posizione

Zona: Ospedale - Santa Maria (Ospedale, Santa Maria, Pretura, Sanzio)

Referente

PrimaCasa di Schiavetti Gianmarco

Storico

Pubblicato 14 Jan 2026
Aggiornato 18 Feb 2026
Sul mercato 37 giorni
ID Annuncio 123136541

Recensioni

Vedi tutte
D

Davide Prandini

5.0

Ricordo ancora quando ho telefonato per la prima volta e subito sono stato seguito con molta pazienza e attenzione. In poche settimane, hanno trovato la casa al mare perfetta per me, senza mai perderm...