Indietro
Attico via Asiago 50, Gorla, Milano
Affitto
Affitto Attico - Mansarda

Attico via Asiago 50, Gorla, Milano

Via Asiago, Milano, Milano

900 € /mese
Ottimo Affare: 35% sotto la media
65
mq
2
Locali
1
Camere
1
Bagni

Recensisci questo Immobile

Devi essere registrato per lasciare una recensione.

Accedi

Nessuna recensione ancora. Sii il primo!

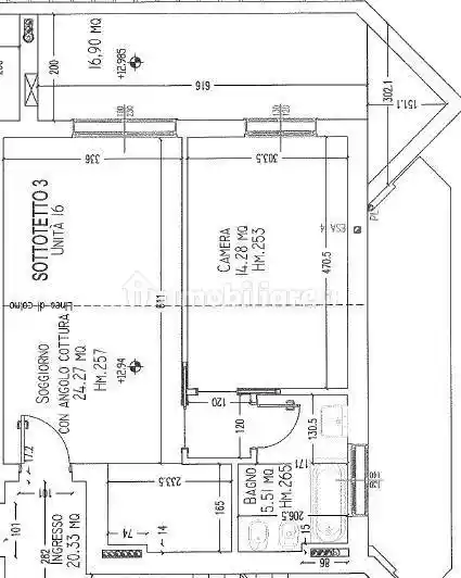
Descrizione

Via Asiago in contesto totalmente ristrutturato AFFITTIAMO con contratto transitorio splendido ATTICO con terrazzo al piano .
L'appartamento è composto da un ampio ingresso in zona living , cucina a vista , bagno con vasca e camera matrimoniale. Ambiente climatizzato e dotato di riscaldamento autonomo.
Completa la proprietà uno splendido terrazzo la piano vivibile.
Libero dal 1/12/2025. L'immobile si affitta arredato
Per info e visite
Francesco 3347959191

Caratteristiche

Piano 2 piani: Piano terra, 4°, con ascensore
Ascensore Si
Stato Ottimo / Ristrutturato
Riscaldamento Autonomo

Servizi e accessori

Videocitofono Impianto di allarme Esposizione esterna Terrazzo Impianto tv con parabola satellitare Arredato

Posizione

Zona: Gorla (Precotto, Turro)

Storico

Pubblicato 28 Dec 2025
Aggiornato 15 Feb 2026
Sul mercato 53 giorni
ID Annuncio 123154783

Recensioni

Vedi tutte
G

Gianluca Urso

5.0

Apprezzavo molto la cura con cui sono stati valutati gli immobili, sempre con onestà e trasparenza, il che mi ha dato molta fiducia durante il percorso. La loro attenzione ai dettagli e la disponibili...

G

Giacomo Piccolo

4.3

Mi sono trasferito in una zona più tranquilla di Milano grazie all’agenzia, che ha trovato la soluzione perfetta per le mie esigenze. Sono stato molto soddisfatto della puntualità negli appuntamenti e...

R

Rocco Russo

5.0

Durante tutto il processo mi sono sentito davvero tranquillo, l’agenzia è stata disponibile e sempre pronta a rispondere alle mie domande. Avevano una conoscenza approfondita delle normative e mi hann...