Vendita Appartamento

Appartamento

Via Santa Liberata, 25, San Polo dei Cavalieri, Roma

Prezzo
Ottimo Affare: 25% sotto la media
51
mq
2
Locali
1
Camere
1
Bagni

Recensisci questo Immobile

Devi essere registrato per lasciare una recensione.

Accedi

Nessuna recensione ancora. Sii il primo!

Descrizione

DATA ASTA 07/04/2026 - OFFERTA MINIMA € 20.812,50 - RIALZO € 1.000,00 - PROCEDURA TI 49/2024 Lotto U
MM Aste offre la sua consulenza per l’acquisto in Asta o Pre-Asta (Saldo e Stralcio) del seguente immobile:
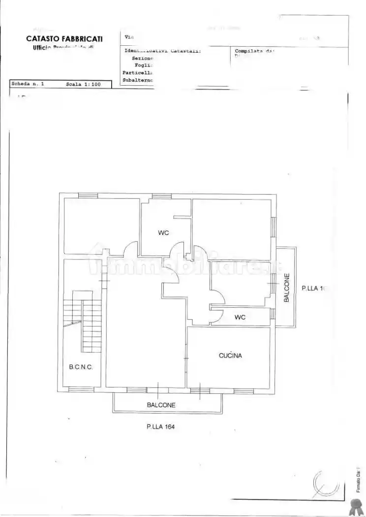
Piena e perfetta proprietà su appartamento sito in Via Santa Liberata 25, San Polo dei Cavalieri RM, scala F, piano 2, composto da soggiorno con angolo cottura, una stanza da letto, un bagno, disimpegno e un balcone.

MM Aste Immobiliari è uno studio legale che, con professionalità, affidabilità e competenza, fornisce consulenza e assistenza ai propri clienti per realizzare acquisti e investimenti nelle aste giudiziarie.
Con una prima consulenza gratuita e senza impegno, informiamo i nostri clienti sui vari aspetti del procedimento di acquisizione di un immobile all’asta o pre-asta valutandone insieme le diverse opportunità.
Lo studio legale MM Aste Immobiliari assiste i propri clienti con i seguenti servizi:
ASTA GIUDIZIARIA
- Ricerca mirata dell’immobile in base alle esigenze del cliente;
- Acquisizione e studio della documentazione relativa all’immobile;
- Richiesta della visita all’immobile per conto del cliente interessato;
- Presentazione dell’offerta;
- Partecipazione alla vendita giudiziaria;
- Assistenza nell’iter procedurale fino al trasferimento della proprietà e alla successiva immissione in possesso con la relativa consegna delle chiavi.
PRE-ASTA E SALDO E STRALCIO
- Valutazione fattibilità dell’acquisto dell’immobile in pre-asta;
- Analisi della situazione debitoria dell’esecutato e degli aspetti tecnico-giuridici;
- Negoziazione con il debitore e il creditore;
- Redazione dell’accordo finalizzato all’acquisto;
- Assistenza nella sospensione e rinuncia alla vendita giudiziaria;
- Assistenza alla stipula del contratto di compravendita.
DISMISSIONE DI ENTI PUBBLICI
- Ricerca mirata dell’immobile in base alle esigenze del cliente;
- Acquisizione e studio della documentazione relativa all’immobile;
- Richiesta della visita all’immobile per conto del cliente interessato;
- Presentazione dell’offerta;
- Partecipazione alla vendita;
- Assistenza nell’iter procedurale fino al rogito notarile.
I suddetti servizi possono essere forniti con le seguenti modalità:
- Assistenza completa per tutto l’iter procedurale pre e post asta;
- Assistenza singoli servizi (studio fattibilità, deposito dell’offerta e post aggiudicazione).

MM – Aste Immobiliari
EMAIL info@mm-asteimmobiliari.it
www.mm-asteimmobiliari.it
TEL. 377 081 2488
Via Mario Fascetti n. 5
00136 – Roma

Caratteristiche

Piano 2
Ascensore Si
Stato Buono / Abitabile
Riscaldamento Centralizzato, a radiatori, alimentato a metano

Servizi e accessori

Cucina Esposizione esterna Impianto tv centralizzato Infissi esterni in vetro / legno Porta blindata

Posizione

Referente

MM Aste Immobiliari

Storico

Pubblicato 24 Feb 2026
Disattivato 05 Apr 2026
Sul mercato 86 giorni
ID Annuncio 123316053

Recensioni

Vedi tutte
L

Luciana La Rosa

5.0

Ho scelto questa agenzia perché mi ha subito trasmesso fiducia e professionalità. Mi sono trovata benissimo, sono stata seguita passo dopo passo con tanta calma e attenzione ai dettagli, il che mi ha...

M

Marilena Donati

5.0

Ho trovato la casa perfetta in una zona tranquilla grazie all’agenzia, sono stata seguita con molta attenzione e professionalità. Mi sono sentita subito in buone mani, soprattutto per la precisione co...

L

Lucia De Matteis

5.0

Ho scelto questa agenzia perché si distingue per la cura dei dettagli e la tempestività nelle risposte. Mi sono trovata molto bene, sono stata seguita passo passo e aiutata a trovare la casa perfetta...

M

Marina Colella

5.0

La cura con cui mi hanno seguita fin dal primo giro tra le case mi ha colpito subito, sembrava davvero che ascoltassero ogni mio desiderio. Sono stata aiutata a capire tutte le normative senza stress...

E

Erica Grassi

4.3

Cercavo un'agenzia affidabile e professionale per vendere la mia casa dopo il divorzio e sono stata davvero fortunata a trovarne una così. Mi sono sentita seguita passo passo con grande attenzione e c...