Vendita Appartamento

Appartamento

Conegliano, Treviso

330.000 €
120
mq
5+
Locali
6
Camere
2
Bagni

Recensisci questo Immobile

Devi essere registrato per lasciare una recensione.

Accedi

Nessuna recensione ancora. Sii il primo!

Descrizione

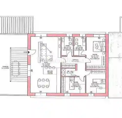
L'appartamento in vendita si trova nella zona di Conegliano, in una posizione strategica e comoda ai servizi.Attualmente in fase di costruzione, la sua realizzazione e prevista per il 2025.L'immobile si estende su una superficie totale di 120 metri quadrati, distribuiti su un ampio soggiorno/cucina di circa mq 40, tre camere da letto e due bagni. Garage doppio. Scoperto privato di mq di circa 200 mq. con ingresso indipendente.La luminosita degli ambienti e garantita dalle numerose finestre presenti in ogni stanzaGrazie alla sua posizione privilegiata, gode di una vista panoramica sulle colline.Ideale per coloro che desiderano acquistare un immobile di nuova costruzione, dotato di ogni comfort e con un design moderno. per info e visionare planimetrie chiamare il opp.

Caratteristiche

Ascensore No
Stato Nuovo / In costruzione
Riscaldamento Autonomo

Referente

KasA Professionisti Nell'Immobiliare

Storico

Pubblicato 14 Jan 2026
Aggiornato 24 Feb 2026
Sul mercato 41 giorni
ID Annuncio 123343019

Recensioni

Vedi tutte
N

Nino Milani

4.7

Ho trovato un'agenzia molto professionale e disponibile, che ha saputo seguirmi con attenzione e chiarezza nelle spiegazioni. Sono rimasto colpito dalla flessibilità negli orari e dalla pazienza dimos...