Vendita Appartamento

Appartamento

Via Clemente Alberti, 13, Carugate, Milano

362.000 €
110
mq
3
Locali
2
Camere
2
Bagni

Recensisci questo Immobile

Devi essere registrato per lasciare una recensione.

Accedi

Nessuna recensione ancora. Sii il primo!

Descrizione

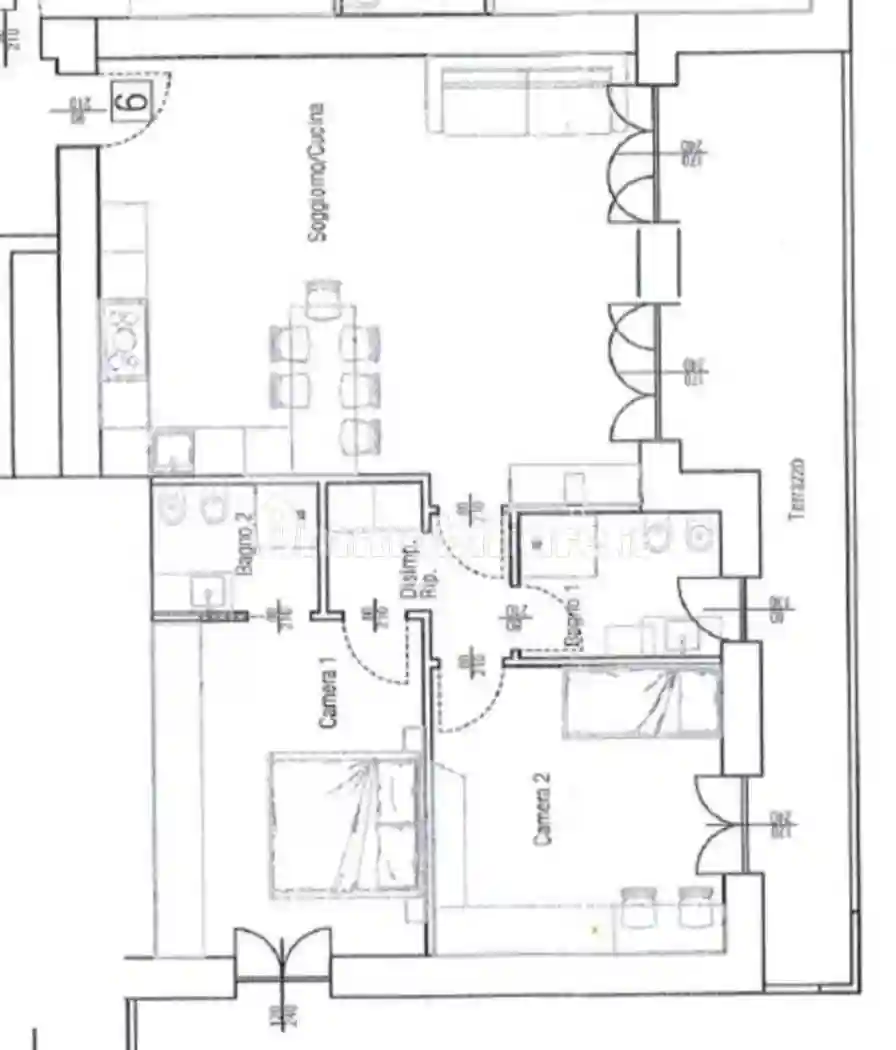
CARUGATE: Tecnodomus Immobiliare propone in vendita soluzione di tre locali con terrazzo e doppi servizi in classe A2 in zona centrale e vicina ai maggiori servizi del paese. L'immobile è composto da ingresso con comoda zona giorno e cucina a vista, disimpegno, camera matrimoniale con bagno in camera, cameretta e bagno di servizio. Il terrazzo è collegato direttamente dal soggiorno e dalle camere. A completare la soluzione una cantina. Possibilità di acquisto di box singolo o doppio. Finiture interne sono a scelta del cliente tra un capitolato di alta qualità. L'appartamento è dotato riscaldamento a pavimento, impianto di ventilazione meccanica, pannelli solari termici, impianto di antifurto, serramenti esterni in legno a basso emissivo termico, zanzariere, impianto fotovoltaico e aria condizionata. Consegna prevista per LUGLIO 2026. LE FOTO INTERNE NON SONO DELLO SPECIFICO APPARTAMENTO. Per maggiori informazioni potete contattare il N° 02-9252478 oppure visitare il nostro sito www.tecnodomusimmobiliare.it o la nostra sede in Via Cesare Battisti, 7 a Carugate (MI). " CI SONO CASE E CI SONO PERSONE. CI SONO VENDITE E CI SONO ACQUISTI. CI SONO PROFESSIONISTI E CI SONO PROFESSIONISTI SENSIBILI. PER TECNODOMUS LE CASE SONO IMPORTANTI, MA TU CHE DECIDI DI AFFIDARTI A NOI, DI PIU'! " Il presente annuncio non costituisce elemento contrattuale.

Caratteristiche

Piano 1
Ascensore Si
Stato Nuovo / In costruzione
Riscaldamento Centralizzato, a pavimento, alimentato a pompa di calore

Servizi e accessori

Cancello elettrico Esposizione doppia Fibra ottica Impianto di allarme Impianto tv centralizzato Infissi esterni in doppio vetro / legno Porta blindata VideoCitofono

Posizione

Referente

Tecnodomus

Storico

Pubblicato 13 Jan 2026
Aggiornato 25 Feb 2026
Sul mercato 43 giorni
ID Annuncio 123367309

Recensioni

Vedi tutte
L

Leonardo Rinaldi

5.0

Ricordo ancora il momento in cui sono arrivato all’appuntamento: sono stato colpito dalla puntualità e dalla cura con cui hanno ascoltato le mie esigenze. Hanno seguito tutto con attenzione e professi...

F

Francesco Strangio

4.7

Mi sono affidato a questa agenzia perché offriva un’ampia scelta di immobili e una cortesia che mi ha subito messo a mio agio. Sono stato molto soddisfatto del supporto che mi hanno dato durante tutto...