Indietro
Vendita Casa indipendente

Casa indipendente

Marciana, Livorno

495.000 €
170
mq
5+
Locali
4
Camere
2
Bagni

Recensisci questo Immobile

Devi essere registrato per lasciare una recensione.

Accedi

Nessuna recensione ancora. Sii il primo!

Descrizione

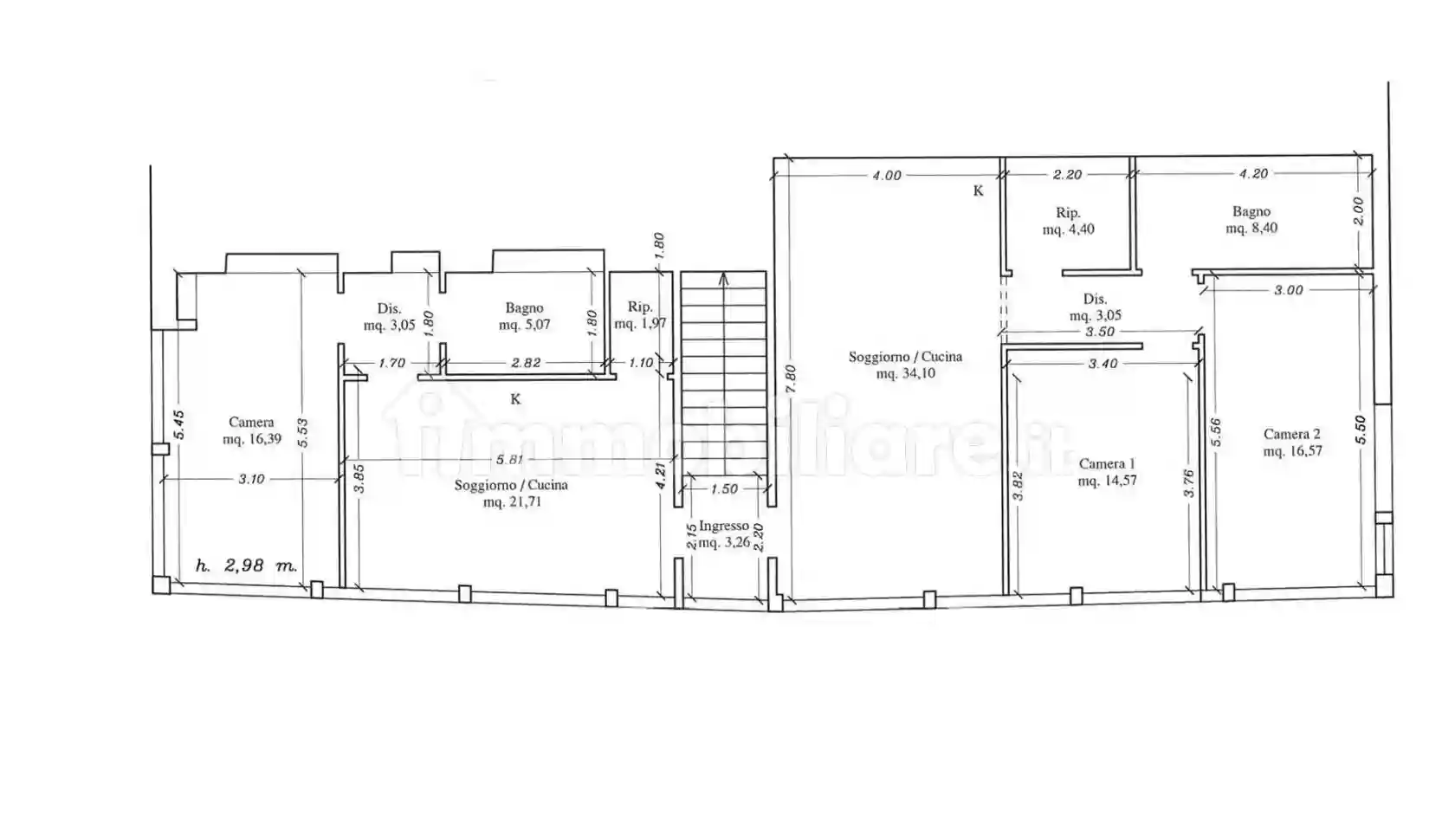
Proponiamo in vendita questo spazioso immobile nella rinomata zona di Sant'Andrea, attualmente adibito a uso commerciale, in cui è possile fare un cambio di destinazione d'uso per trasformarlo in una casa singola, oppure in due appartamenti indipendenti, come disegnato nella planimetria allegata. Questa proprietà di 170 mq si sviluppa interamente al piano terra e offre un'ampia superficie, ed ampie aperture vetrate con una splendida vista sul golfo di Sant'Andrea.
Non dispone di giardino ma di terrazza sul tetto, e di n. 2 posti auto. E' eventualmente possibile acquistare anche ulteriori posti auto.
Immobile ideale per investimento e messa a reddito. Classe Energetica: G

Caratteristiche

Piano T
Ascensore No
Stato Da ristrutturare

Servizi e accessori

Esposizione doppia Infissi esterni in vetro / legno

Posizione

Referente

Agenzia Immobilelba srl

Storico

Pubblicato 14 Jan 2026
Aggiornato 24 Feb 2026
Sul mercato 41 giorni
ID Annuncio 123372265

Recensioni

Vedi tutte
M

Martina Salvini

5.0

Durante il processo mi sono sentita molto seguita e sicura: l'agenzia ha dimostrato grande professionalità e disponibilità, aiutandomi anche nella fase di richiesta del mutuo. Sono stata soddisfatta d...

R

Raffaella Giannetti

4.7

Ho trovato un'agenzia immobiliare molto professionale e affidabile. Sono stata seguita con rapidità e precisione nella gestione di tutta la documentazione, il che ha reso il processo di acquisto molto...