Vendita Appartamento

Appartamento

Faenza, Ravenna

215.000 €
90
mq
3
Locali
2
Camere
1
Bagni

Recensisci questo Immobile

Devi essere registrato per lasciare una recensione.

Accedi

Nessuna recensione ancora. Sii il primo!

Descrizione

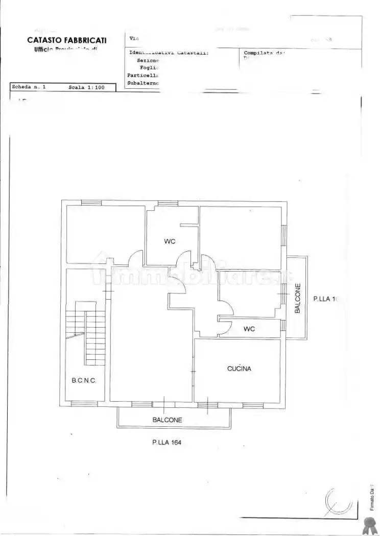
Zona S. Marco, In piccola palazzina senza spese condominiali appartamento con ingresso indipendente in fase di ristrutturazione, cosi coomposto: ingresso sala con angolo cottura, disimpegno, 2 camere letto, bagno e cortiletto privato.
Consegna ottobre 2026. Possibilita' di scelta delle rifiniture
Possibilita di posto auto.
€. 215.000,00

Caratteristiche

Piano 1
Ascensore No
Stato Ottimo / Ristrutturato
Riscaldamento Autonomo, ad aria, alimentato a pompa di calore

Servizi e accessori

Porta blindata

Referente

Obiettivo Casa

Storico

Pubblicato 12 Jan 2026
Aggiornato 24 Feb 2026
Sul mercato 43 giorni
ID Annuncio 123402629

Recensioni

Vedi tutte
A

Aurora Elia

5.0

Se stai cercando un'agenzia immobiliare seria e affidabile, ti consiglio di rivolgerti a questa. Mi sono trovata molto bene perché hanno cura di ogni dettaglio e sono stati davvero rapidi nel trovare...

D

Diana Dini

4.3

Le esperienze precedenti con altre agenzie erano state spesso lente e poco chiare, ma con questa ho trovato un approccio diverso. Sono stata seguita con pazienza e attenzione, ricevendo risposte sempr...