Vendita Villa

Villa

Strada Comunale dell'Acqua Santa, Laureana Cilento, Salerno

199.000 €
Ottimo Affare: 37% sotto la media
280
mq
3
Locali
2
Camere
1
Bagni

Recensisci questo Immobile

Devi essere registrato per lasciare una recensione.

Accedi

Nessuna recensione ancora. Sii il primo!

Descrizione

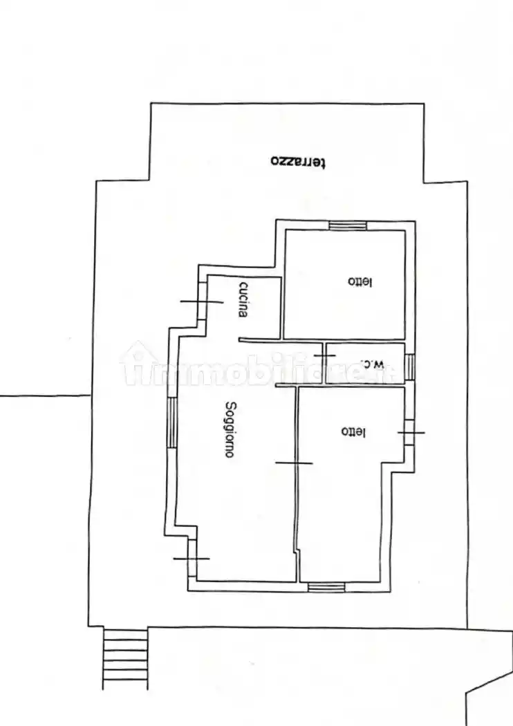
Proponiamo in vendita villa unifamiliare di circa 280 mq su due livelli, con ampi spazi interni ed esterni e possibilità di suddivisione in due unità indipendenti.

Composizione interna:

Piano terra rialzato (circa 105 mq): soggiorno con camino a legna, angolo cucina con piano di lavoro, bagno ristrutturato, due camere da letto. Ogni ambiente è climatizzato.

Piano seminterrato (circa 175 mq - grezzo): spazio da personalizzare con possibilità di realizzare soggiorno, due camere, due bagni, cantinetta e terrazzo ampio e luminoso.

Piano interrato: cantina di circa 23 mq.

Spazi esterni:

Giardino privato di circa 1.600 mq.

Corte con due ingressi carrabili indipendenti.

Ampia possibilità di parcheggio auto.

Punti di forza:

Doppio ingresso separato che consente di dividere la villa in due appartamenti autonomi.

Soluzione adatta sia come residenza principale, sia per attività ricettive o casa vacanze.

Posizione comoda, a pochi minuti dal centro di Agropoli e dalle principali vie di collegamento.

Caratteristiche

Piano Piano rialzato
Ascensore No
Stato Da ristrutturare
Riscaldamento Autonomo
Garage 3 in parcheggio/garage comune

Servizi e accessori

Campo da tennis Cancello elettrico Caminetto Balcone Terrazzo Impianto tv con parabola satellitare Giardino privato Infissi esterni in vetro / legno Esposizione doppia

Posizione

Storico

Pubblicato 01 Jan 2026
Aggiornato 24 Feb 2026
Sul mercato 56 giorni
ID Annuncio 123524095

Recensioni

Vedi tutte
K

Katia Zanini

4.7

Ho trovato finalmente l'appartamento vista mare che cercavo grazie a questa agenzia. Mi sono sentita seguita con molta attenzione alle mie esigenze e hanno dimostrato una conoscenza sorprendente del m...

S

Sara Resta

4.7

Cercavo una casa a Capaccio Paestum e mi sono rivolta a questa agenzia, che si è dimostrata molto flessibile negli orari e disponibile a seguirmi passo dopo passo. Sono stata aiutata a trovare l’immob...

L

Luciana Quattrocchi

4.3

Ricordo ancora il momento in cui ho firmato le carte per la mia prima casa, è stato emozionante e senza stress. Sono stata seguita con tanta attenzione e trasparenza, mi hanno spiegato tutto passo dop...

B

Bianca Nardone

4.3

Rispetto ad altre esperienze che ho avuto, questa agenzia a Capaccio Paestum mi ha davvero sorpresa: si vede che conoscono bene il mercato locale e le normative, mi hanno guidata passo passo senza fre...