Indietro
Terratetto unifamiliare via Jufina 6, Sant'Alberto, Ravenna
Vendita
Vendita Casa indipendente

Terratetto unifamiliare via Jufina 6, Sant'Alberto, Ravenna

Via Jufina, Ravenna, Ravenna

298.000 €
206
mq
5+
Locali
3
Camere
3
Bagni

Recensisci questo Immobile

Devi essere registrato per lasciare una recensione.

Accedi

Nessuna recensione ancora. Sii il primo!

Descrizione

RAVENNA, località SANT'ALBERTO.
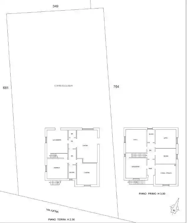
Alle porte di Sant'Alberto proponiamo in vendita una casa indipendente di circa 210 mq, di recente ristrutturazione.

Questa proprietà è divisa in due piani, al piano terra un interessante disposizione che potrebbe tranquillamente essere un secondo appartamento, mentre al primo piano troviamo soggiorno, cucina, 3 ampie camere da letto e 2 bagni.

Plus dell'immobile anche il fatto che offra un ampio giardino privato di circa 800 mq, ideale per chi cerca uno spazio verde da personalizzare; terreno tra l'altro edificabile, ad oggi per una superficie di circa 81 mq al piano:

Gli infissi nuovi in tutta la casa assicurano un'ottima efficienza energetica e isolamento acustico. Il tetto è stato recentemente rifatto a nuovo, è presente cappotto esterno su tutti i lati della casa, e per quanto riguarda l'interno ad oggi è stata portata a termine la ristrutturazione del primo piano, mentre il piano terra è ancora in uno stato di grezzo avanzato.

Questa casa rappresenta un'opportunità unica per chi desidera vivere in un contesto tranquillo, senza rinunciare alla comodità dei servizi cittadini, che sono per altro molto vicini; come permette anche la vicinanza alla città ed alle località di mare.

CHIAMACI per ulteriori informazioni o per fissare un appuntamento allo 0544.1885644 oppure invia una mail a raca0 e sarai ricontattato al più presto.

Ogni agenzia ha un proprio titolare ed è autonoma - Le presenti informazioni non costituiscono elemento contrattuale.

Caratteristiche

Ascensore No
Stato Ottimo / Ristrutturato
Riscaldamento Autonomo
Garage 1 in box privato/box in garage, 2 in parcheggio/garage comune

Servizi e accessori

Accesso per disabili Cantina Giardino privato

Posizione

Zona: Sant'Alberto (Sant'Alberto, Savarna)

Storico

Pubblicato 30 Dec 2025
Aggiornato 15 Feb 2026
Sul mercato 51 giorni
ID Annuncio 123627275

Recensioni

Vedi tutte
J

Jessica Maffeis

5.0

Le mie precedenti esperienze con agenzie immobiliari erano state un po’ stressanti, ma questa volta è stata diversa: ho trovato un’agenzia che mi ha seguita con molta attenzione e comprensione. Sono s...