Indietro
Appartamento
Vendita
Vendita Appartamento

Appartamento

marinelli, 42, Cesena, Forli Cesena

Prezzo su richiesta
197
mq
4
Locali
3
Camere
3
Bagni

Recensisci questo Immobile

Devi essere registrato per lasciare una recensione.

Accedi

Nessuna recensione ancora. Sii il primo!

Descrizione

CESENA - CENTRO URBANO
APPARTAMENTI DI NUOVA COSTRUZIONE

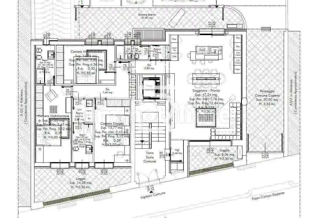
L'immobile si trova al piano terra ed è composto da: 3 camere, 3 bagni, 2 logge ed un balcone.

Questo elegante edificio, che si sviluppa su 3 piani, rappresenta il futuro dell'abitare, con un design moderno e finiture di alta qualità con consegna prevista per il 2027. Attualmente in fase di costruzione, l'immobile è perfetto per chi desidera investire nel lusso e nella comodità.

Ogni appartamento sarà dotato di impianto fotovoltaico da 5,5kw, lo stesso sarà per le parti comuni.
I lavori di ristrutturazione, sia delle parti private sia delle parti comuni, possono usufruire delle detrazioni del 30%.
Tutti gli interni sono completamente personalizzabili, sarà dotato di un'ascensore.
La palazzina avrà in totale 7 appartamenti ciascuno con cantina. Saranno disponibili anche 5 garage e 3 posti auto.

- SI VALUTANO PERMUTE
- FINITURE DI PREGIO
- A DUE PASSI DAL CENTRO STORICO
- AMPI SPAZI
- RISTRUTTURAZIONE COMPLETA

Pensi sia la soluzione che possa fare al caso tuo? Contattaci subito!

Eleonora 392 3157366 - e.galli@romagnacase.it

oppure

0547 632205

Caratteristiche

Piano T
Ascensore Si
Stato Nuovo / In costruzione
Riscaldamento Autonomo, a pavimento, alimentato a fotovoltaico

Servizi e accessori

Cancello elettrico Porta blindata VideoCitofono

Posizione

Zona: Centro Urbano (Centro Storico, Centro Urbano)

Referente

ROMAGNACASE -Agenzia Cesena Sant'Egidio

Storico

Pubblicato 12 Jan 2026
Aggiornato 18 Feb 2026
Sul mercato 38 giorni
ID Annuncio 123651937

Recensioni

Vedi tutte
S

Salvatore Bosco

4.7

Durante tutto il percorso mi sono sentito davvero supportato e rassicurato, come se avessi avuto un amico al mio fianco. L'agenzia è stata impeccabile, dimostrando trasparenza e grande efficienza nell...

N

Noemi Motta

5.0

Ho scelto questa agenzia perché cercavo un’azienda affidabile e professionale per trovare un affitto a Cesena. Mi sono trovata molto bene: sono stata seguita con attenzione e cordialità, e la loro com...

D

Davide Chiari

4.7

Stavo cercando un ufficio a Cesena per la mia attività e grazie alla loro competenza sono riuscito a trovare la soluzione perfetta. Hanno seguito tutto con grande attenzione, aiutandomi a gestire le p...

S

Sandro Ferro

4.7

Durante tutto il processo mi sono sentito davvero accompagnato e supportato, il che ha reso tutto più semplice ed emozionante. L’ampia scelta di immobili e la professionalità dell’agenzia mi hanno aiu...

S

Sandra Verna

4.3

Se state cercando un’agenzia immobiliare affidabile a Cesena, vi consiglio di rivolgervi a chi si prende davvero cura delle vostre esigenze. Mi sono trasferita in città per lavoro e, grazie alla loro...