Vendita Appartamento

Appartamento

Via Luigi Scrosoppi, Tezze sul Brenta, Vicenza

275.000 €
140
mq
4
Locali
3
Camere
2
Bagni

Recensisci questo Immobile

Devi essere registrato per lasciare una recensione.

Accedi

Nessuna recensione ancora. Sii il primo!

Descrizione

NUOVA PROPOSTA IN ARRIVO!!!
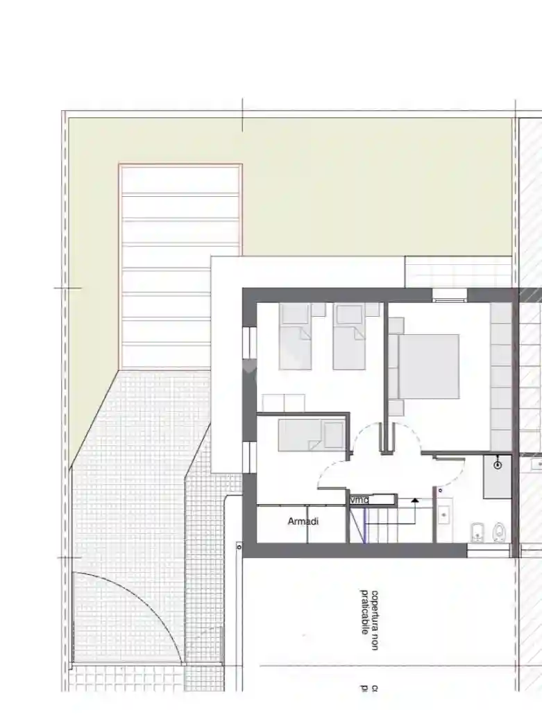
Nel comune di Tezze sul Brenta proponiamo delle villette a schiera di nuova costruzione che verranno consegnate chiavi in mano in classe energetica A4 a fine estate 2026.
Ogni unità sarà composta da zona giorno openspace, tre camere da letto, doppio servizio, giardino privato e box di pertinenza.
Per avere maggiori informazioni, vedere i progetti o confrontare il capitolato è possibile prendere un appuntamento presso la nostra agenzia.
CONTATTI
Chiamaci al numero 0424 898456 o 3491441990. Seguiteci su facebook, cliccando 'mi piace' alla pagina Tecnocasa Tezze sul Brenta o su instagram seguendo @tecnocasatezzesb. Scaricate gratuitamente l'App. Tecnocasa sul vostro smartphone e sarete sempre aggiornati sulle nostre proposte di vendita.

Caratteristiche

Piano T
Ascensore No
Stato Nuovo / In costruzione
Riscaldamento Autonomo, a pavimento, alimentato a solare

Servizi e accessori

Armadio a muro Cancello elettrico Esposizione esterna Fibra ottica Impianto di allarme Impianto tv singolo Infissi esterni in triplo vetro / PVC Mansarda Porta blindata VideoCitofono

Posizione

Referente

Affiliato Tecnocasa: STUDIO RPM SRL

Storico

Pubblicato 15 Jan 2026
Aggiornato 24 Feb 2026
Sul mercato 40 giorni
ID Annuncio 123674911

Recensioni

Vedi tutte
E

Enrico Guerra

5.0

Quello che mi ha spinto a scegliere questa agenzia è stata la loro professionalità e la precisione con cui hanno seguito ogni fase dell'acquisto. Sono stato davvero colpito dalla loro disponibilità e...

A

Angelo Garofalo

4.7

Ricordo ancora il momento in cui ho trovato il mio nuovo appartamento a Tezze sul Brenta, subito ho sentito che ero in buone mani. L’agenzia è stata seria e onesta nelle valutazioni, cosa che apprezzo...