Indietro
Attico - Mansarda
Vendita
Vendita Attico - Mansarda

Attico - Mansarda

Cervia, Ravenna

Prezzo su richiesta
164
mq
3
Locali
2
Camere
2
Bagni

Recensisci questo Immobile

Devi essere registrato per lasciare una recensione.

Accedi

Nessuna recensione ancora. Sii il primo!

Descrizione

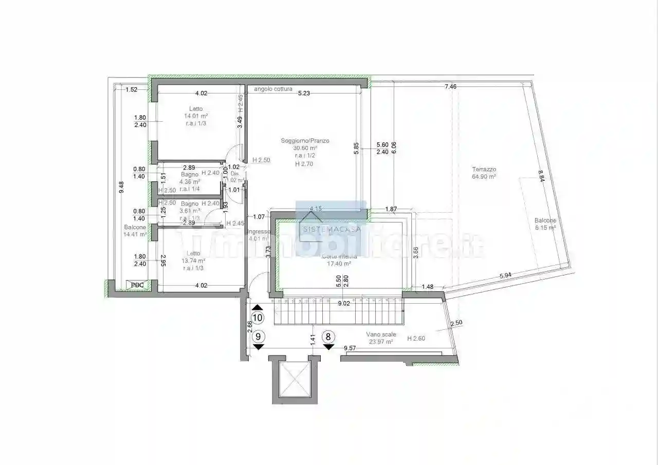
Nella zona esclusiva tra Cervia e Milano Marittima, proponiamo attico di oltre 160 mq commerciali, nuovo in classe A4, con posto auto assegnato e cantina privata. L'immobile sorge al secondo piano di un complesso residenziale di lusso in classe A4, dotato di ascensore e creato rispettando i più alti standard costruttivi per efficienza energetica, qualità dei materiali e ricercatezza delle finiture.
La composizione dei locali è la seguente:
- Ingresso tramite portone blindato antieffrazione, funzione di insonorizzazione e telaio in lamiera d'acciaio prefilmata
- Zona living (31 mq circa) con cucina a vista ed ampia vetrata di accesso al terrazzo
- Disimpegno e doppia camera matrimoniale (14 mq e 14 mq circa) in gres porcellanato o, a scelta, pavimento in legno di rovere a listoni con formato e colore a scelta
- Doppio bagno (4,5 mq e 3,5 mq circa) con rivestimenti su misura, sanitari sospesi e lavandino di design, termoarredo e piatto doccia custom con funzione punti luce e cromoterapia
- Balcone (15 mq circa) e grande terrazzo (70 mq circa) con parapetti in vetro stratificato e tenuta antisfondamento, accesso tramite ampie vetrate (il primo dalla zona notte ed il secondo dalla zona giorno), pavimento galleggiante anti graffio e anti macchia in legno ricostruito e fibra di bambù, in abbinamento ai pannelli della facciata. Illuminazione tramite punti luce di design, presa per corrente e rubinetto per acqua
- Posto auto assegnato con sbarra / dissuasore carrabile automatizzato
- Cantina (9,5 mq circa) situata al piano terra

L'immobile riporta i più alti standard di finiture disponibili sul mercato, tra le quali:
- Cappotto esterno termico in grafite e finiture interne ed esterne in intonaco di alto pregio
- Impermeabilizzazioni con massimo livello di isolamento, qualità di materiali e messa in posa per eccellente affidabilità
- Rivestimenti facciate in materiali compositi di pregio effetto legno con sottostruttura in alluminio
- Realizzazione soglie e banchine in marmo pregiato nero lucidato in abbinamento ai dettagli degli infissi esterni ed agli elementi di design delle facciate
- Vano scale e relativi corridoi in gres porcellanato con illuminazione di design a led e profili in alluminio e vetro
- Impianto fotovoltaico con predisposizione tramite tubo corrugato di colonnina di ricarica per auto elettrica nel proprio posto auto
- Infissi in lega di alluminio a taglio termico e doppio vetro marchio Schüco
- Impianto di riscaldamento idronico a pompa di calore tramite sistema innovativo Mitsubishi Electric con tecnologia ad acqua fluido termovettore per riscaldamento tramite sistema a pannelli radianti a pavimento
- Impianto di raffrescamento in tutti i locali e ventilazione meccanica controllata con apposite bocchette di immissione ed estrazione
- Installazione impianto domotico connesso di ultima generazione con controllo da remoto tramite App
- Impianto interno di illuminazione sotto traccia ed incassato, con barre a led di design nei disimpegni e bagni di ciascuna unità.
Servizio completamente gratuito in caso di necessità di vendita contestuale di immobile di proprietà prima di un interesse per la seguente proposta.
Prezzo in trattativa privata.
Valutazione di eventuale permuta.

Per informazioni, capitolato completo e visite contattare:
Giancarlo 348 4121660

Caratteristiche

Piano 2
Ascensore Si
Stato Nuovo / In costruzione
Riscaldamento Autonomo, a pavimento, alimentato a pompa di calore

Servizi e accessori

Cancello elettrico Esposizione esterna Fibra ottica Impianto di allarme Infissi esterni in doppio vetro / metallo Porta blindata VideoCitofono

Posizione

Referente

Agenzia Immobiliare Sistemacasa

Storico

Pubblicato 12 Jan 2026
Aggiornato 18 Feb 2026
Sul mercato 38 giorni
ID Annuncio 123734443

Recensioni

Vedi tutte
E

Elena Traverso

5.0

Mi ha colpito la disponibilità e pazienza dello staff nel seguire ogni passo della mia scelta, soprattutto nella fase di richiesta del mutuo. Sono stata seguita con attenzione e professionalità, rende...

M

Miriam Bianco

4.7

Ho scelto questa agenzia perché cercavo un team professionale e preciso, e devo dire che sono stata davvero soddisfatta della loro assistenza. Mi hanno trovato il magazzino perfetto per la mia azienda...

V

Valentina Polito

4.3

Mi ha colpito subito quanto sono stata seguita e supportata durante tutto il processo, dalla prima visita alla firma. Hanno gestito in modo super efficiente tutta la parte burocratica, togliendomi dav...

V

Valeria Di Stefano

4.3

Appena ho varcato la soglia della casa, sono rimasta colpita dalla chiarezza con cui mi hanno spiegato ogni passo. Sono stata seguita con attenzione e professionalità, e ho trovato in breve tempo la s...