Villa unifamiliare Strada delle Quattro Ville, Ganaceto - Lesignana, Modena
Vendita
Vendita Villa

Villa unifamiliare Strada delle Quattro Ville, Ganaceto - Lesignana, Modena

Strada delle Quattro Ville, Modena, Modena

560.000 €
239
mq
5+
Locali
5
Camere
3
Bagni

Recensisci questo Immobile

Devi essere registrato per lasciare una recensione.

Accedi

Nessuna recensione ancora. Sii il primo!

Descrizione

MO1079 - VILLANOVA DI MODENA In contesto esclusivo e di nuova costruzione proponiamo porzione di casa con 510 mq di giardino privato, in classe energetica A4, completa di impianto fotovoltaico da 5 Kw con accumulo.

La casa è così disposta:
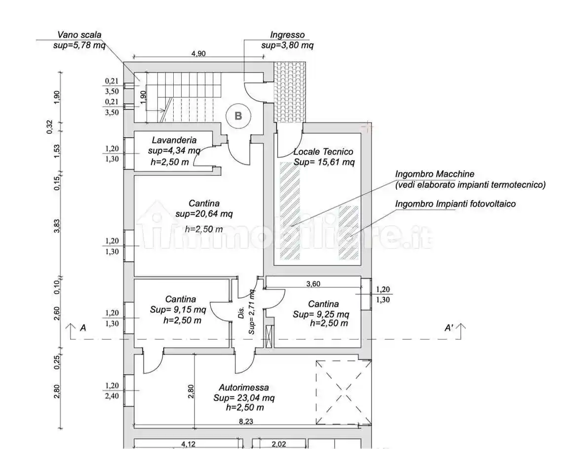
PT tre cantine con altezza 2.50 m, bagno, vano tecnico ed autorimessa.
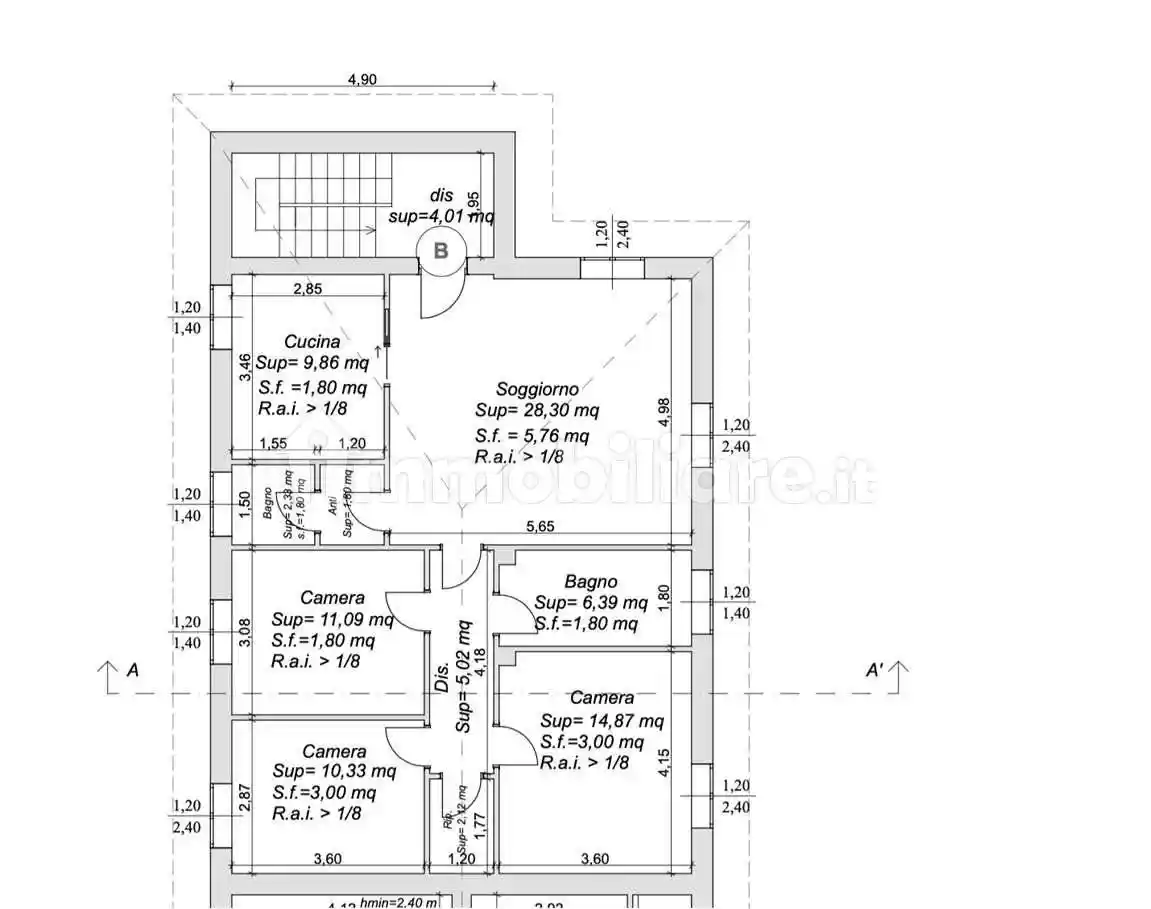
P1 Salone, cucina abitabile (possibilità di creare open space ed angolo cottura), tre camere da letto, due bagni.

Ottime finiture ed impiantistica. Area cortiliva privata di 510 mq, in parte pavimentata con trattamento antiscivolo.
Incluso nel prezzo impianto fotovoltaico da 5 Kw con accumulo.

Disposizioni interne ancora modificabili, ci contatti per andare a realizzare la soluzione su misura per lei e la sua famiglia e per ricevere una copia del capitolato.

In costruzione
Consegna 6 mesi dal compromesso.
Prezzo € 560.000 finita

PER INFO CONTATTARE IL NUMERO: 059.80.91.31

L'indirizzo indicato nell'annuncio potrebbe non corrispondere.
CONTATTATECI SENZA ALCUN IMPEGNO!! oppure Vi invitiamo a lasciare il vostro numero di telefono per essere ricontattati. Grazie.
Presso il nostro ufficio abbiamo altre proposte immobiliari nelle zone di Bomporto, San Prospero, Ravarino, Nonantola, Crevalcore, Cavezzo, Medolla, Mirandola, Modena.
L' agenzia immobiliare Velvet ha diversi uffici per poter offrire la giusta competenza e conoscenza del luogo :
SAN PROSPERO - RAVARINO - MIRANDOLA - MODENA .
Se disponete di un immobile il nostro Studio vi offre una perizia gratuita del valore di mercato e l' aiuto e la competenza nella gestione della Vendita dello stesso e dell' eventuale riacquisto.

Caratteristiche

Piano Piano terra
Ascensore No
Stato Nuovo / In costruzione
Riscaldamento Autonomo
Garage 1 in box privato/box in garage

Servizi e accessori

Fibra ottica Videocitofono Porta blindata Giardino privato Infissi esterni in triplo vetro / pvc

Posizione

Zona: Ganaceto - Lesignana (Madonnina, Lesignana, Villanova)

Storico

Pubblicato 29 Dec 2025
Aggiornato 15 Feb 2026
Sul mercato 54 giorni
ID Annuncio 123737877

Recensioni

Vedi tutte
R

Renzo Zanardi

4.7

Se cercate un'agenzia immobiliare seria, vi consiglio di sceglierne una che abbia onestà nelle valutazioni e chiarezza nelle spiegazioni. Con questa agenzia, mi sono sentito seguito e assistito in ogn...

M

Mirko Pugliese

4.0

Se state cercando un’agenzia immobiliare affidabile, consiglio di rivolgervi a chi ascolta davvero le vostre esigenze. Ho trovato un supporto competente e discreto, che ha gestito tutto con grande pro...

N

Nunzia Strangio

5.0

Ricordo ancora il momento in cui ho firmato il contratto, dopo anni di affitto, e ho sentito di aver finalmente trovato la casa giusta. L’agenzia mi ha seguita con molta pazienza e cura dei dettagli,...

C

Chiara Bruno

4.7

Ho scelto questa agenzia perché mi hanno colpito subito per la loro attenzione alle esigenze e la professionalità. Chiara si è mostrata sempre molto disponibile e mi ha aiutata passo dopo passo, accom...

C

Cesare Visconti

4.7

Cercavo una casa a San Prospero dopo anni di affitto e finalmente l’ho trovata grazie a questa agenzia. Mi sono sentito supportato e seguito passo dopo passo, anche nei momenti di maggiore stress dura...