Asta Appartamento

Appartamento

Via Delle Cascine 34, Faleria, Viterbo

Prezzo
84
mq
4
Locali
4
Camere

Recensisci questo Immobile

Devi essere registrato per lasciare una recensione.

Accedi

Nessuna recensione ancora. Sii il primo!

Descrizione

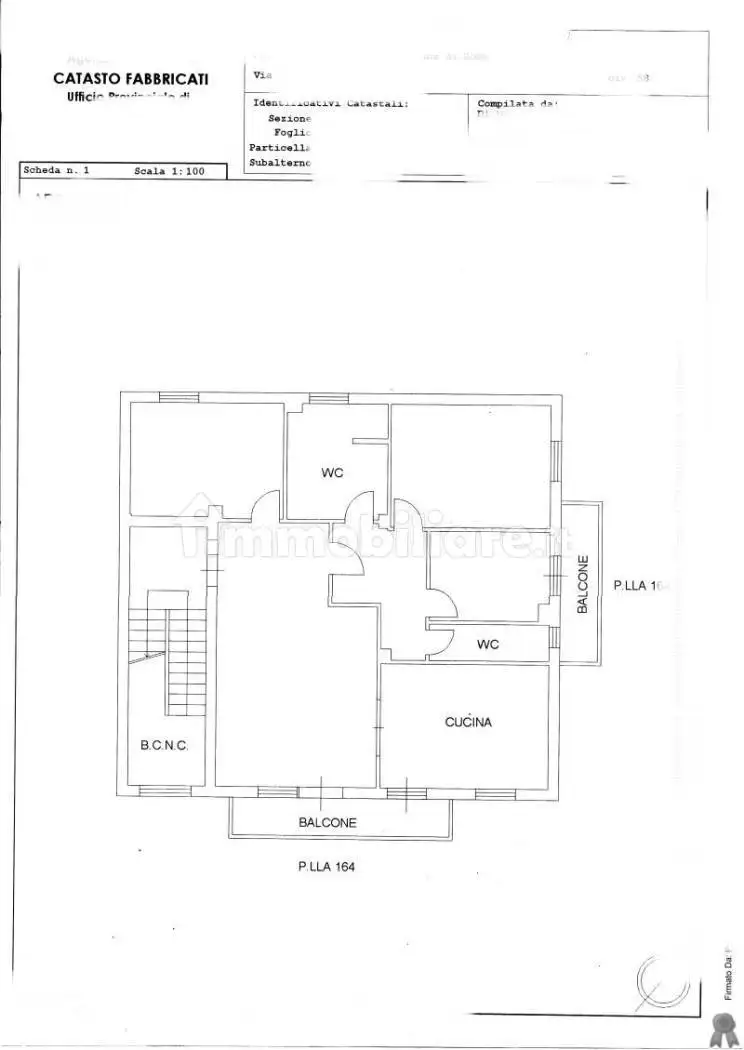
LO STUDIO ASTE IMMOBILI ROMA SEGUE TUTTE LE ASTE NELLA PROVINCIA DI ROMA QUESTO ANNUNCIO SI RIFERISCE A:FALERIA in Via delle Cascine Casa su 3 livelli composta da soggiorno con cucina, bagno, cantina e corte esterna al piano terra; vano al piano primo; camera e bagno al piano secondo; balcone e terrazzo.OFFERTA MINIMA 39.037ASTE IMMOBILI ROMA garantisce una consulenza seria, professionale e trasparente per lacquisto immobiliare in asta, affrontando ogni passaggio con assoluta serenita. Lo studio si occupa di tutte le tipologie di Aste Immobiliari (Esecuzioni, Fallimenti, Dismissioni enti pubblici ed enti religiosi, Eredita giacenti, Concordati preventivi, Liquidazioni coatte, ecc.)Offriamo un servizio completo, dalla ricerca alla scelta dellimmobile piu adatto alle proprie esigenze, garantendo supporto e consulenza in tutte le fasi dellacquisto in modo chiaro e preciso, fino alla consegna delle chiavi.La nostra ASSISTENZA COMPLETA comprende tutti i servizi prima e dopo lavvenuta aggiudicazione: Ricerca costante ed individuazione delle soluzioni in asta Programmazione visite interne Analisi dellintera documentazione riferibile allimmobile (catastale, urbanistica, legale, stato di occupazione, provenienza, titoli, formalita, ecc) Visure catastali ed ispezioni ipotecarie aggiornate al,momento della partecipazione allasta Indagine sulle attuali condizioni dellimmobile e reperimento informazioni aggiuntive ed aggiornate Individuazione del piu probabile valore di mercato con report dettagliato Stima del piu probabile prezzo di aggiudicazione Ottenimento prima della partecipazione, per i clienti che devono mutuare lacquisto, della pre delibera sulloperazione Preventivo dettagliato sui costi accessori Valutazione del profilo fiscale piu favorevole Eventuale consegna dei dispositivi per le aste telematiche Predisposizione e deposito offerta (telematica o in presenza) Partecipazione allasta per conto del Cliente Domiciliazione in caso di aggiudicazione con disbrigo di ogni esigenza burocratica fino al saldo prezzo Ritiro chiavi e consegna al cliente con cambio serratura (se non eseguito dal Custode) Consegna documenti in originale relativi al trasferimento al termine di tutte le operazioni in Catasto ed in Conservatoria. Chiusura e termine con approvazione piano di ripartoRicordiamo che:- La partecipazione alle aste e pubblica e gratuita in quanto non e obbligatorio affidarsi ad un consulente privato - Gli immobili in asta sono MUTUABILI fino al 100% (previa verifica della documentazione) - Per uneventuale pratica di mutuo e necessario attivarsi almeno 40 giorni prima della data asta- I servizi di studio sono riservati ai clienti E possibile fissare un appuntamento informativo e gratuito chiamando ai nostri recapiti dal lunedi al venerdi 9:30/19:00.

Caratteristiche

Piano 1° piano
Ascensore No
Stato Buono / Abitabile
Riscaldamento Autonomo

Posizione

Storico

Pubblicato 26 Dec 2025
Disattivato 16 Apr 2026
Sul mercato 111 giorni
ID Annuncio 123770927

Recensioni

Vedi tutte
S

Stefano Tommasi

4.3

Stavo cercando un'agenzia affidabile per vendere un appartamento di famiglia a Roma e sono stato molto soddisfatto della professionalità dimostrata. Mi hanno seguito passo dopo passo, aiutandomi anche...