Vendita Appartamento

Appartamento

Via Guglielmo Oberdan, Pisa, Pisa

480.000 €
Ottimo Affare: 28% sotto la media
200
mq
5+
Locali
7
Camere
2
Bagni

Recensisci questo Immobile

Devi essere registrato per lasciare una recensione.

Accedi

Nessuna recensione ancora. Sii il primo!

Descrizione

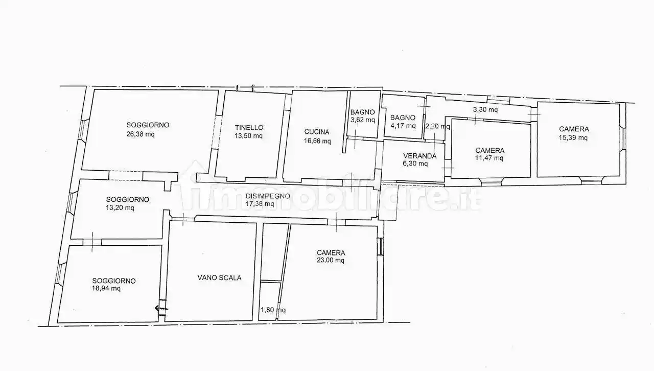
Pisa, Borgo Largo - Al terzo ed ultimo piano di un palazzo storico, recentemente ristrutturato con ascensore, questo appartamento di 200mq c. ca vanta spazi molto ampi e luminosità naturale, grazie anche all'altezza dei soffitti in travi antichi a vista restaurati. Dall'ingresso in grande corridoio si affacciano le sale e le camere dell'immobile. La camera padronale con bagno en suite, l'ampia cucina e zona pranzo conviviale, il salone doppio con affacci su Borgo Largo, lo studio che può anche essere adibito a terza camera, una camera con cabina armadio e il servizio. Gli affacci su Borgo Largo delle due sale e della camera regalano una vista suggestiva sul campanile di Vasari e sul fascino medioevale del quartiere. Una scala in legno massello elegante e robusta recentemente realizzata si accede all'ampia soffitta praticabile, un ambiente versatile e luminoso grazie ai lucernai.
La richiesta è di Euro 580'000 tratt. - Rif. N1527.

Caratteristiche

Piano 3
Ascensore Si
Stato Buono / Abitabile
Riscaldamento Autonomo

Mori Immobiliare Pisa

Agenzia

Referente

Mori Immobiliare Pisa

Storico

Pubblicato 14 Jan 2026
Aggiornato 24 Feb 2026
Sul mercato 42 giorni
ID Annuncio 123820999