Vendita Appartamento

Appartamento

Via Libertà, Procida, Napoli

359.000 €
84
mq
3
Locali
2
Camere
2
Bagni

Recensisci questo Immobile

Devi essere registrato per lasciare una recensione.

Accedi

Nessuna recensione ancora. Sii il primo!

Descrizione

POSIZIONE STRATEGICA
In Via Libertà, zona comodissima per chi deve muoversi ogni giorno con l’aliscafo: il porto di Marina Grande è raggiungibile a piedi in meno di 10 minuti! Ideale anche per la vita quotidiana grazie alla vicinanza diretta ai principali servizi: supermercato, farmacia, fermata bus a pochi passi, spiagge raggiungibili in pochi minuti.

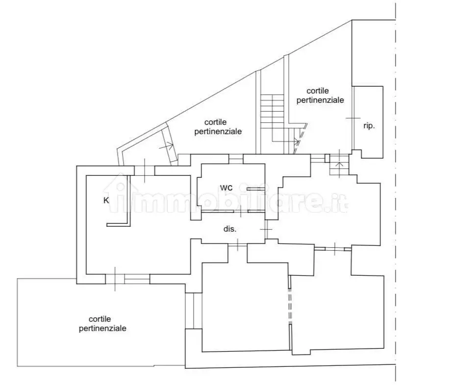
SPAZI AMPI E LUMINOSI
Appartamento accogliente e luminoso: affacci aperti, ambienti spaziosi, ampio living con cucina a vista. Due ampie camere matrimoniali, di cui una con bagno dedicato, garantiscono privacy e comfort per famiglie o ospiti. Il cortile/terrazzo privato è un vero plus, raro per Procida, perfetto per rilassarsi o pranzare all’aperto.

RISTRUTTURAZIONE TOTALE
L’immobile è stato completamente rinnovato con finiture di alto livello: impianti moderni e a norma, climatizzazione caldo/freddo, infissi con doppio vetro. Pronto “chiavi in mano” per vivere o mettere subito a reddito!

ARREDAMENTO E COMFORT
L’appartamento viene venduto con la cucina attrezzata e bagni arredati e rifiniti.

Caratteristiche

Piano Seminterrato
Stato Ottimo / Ristrutturato
Riscaldamento Autonomo

Servizi e accessori

Cucina Terrazzo Solo cucina arredata Infissi esterni in doppio vetro / pvc

Posizione

Agenzia Immobiliare

Storico

Pubblicato 03 Jan 2026
Aggiornato 24 Feb 2026
Sul mercato 53 giorni
ID Annuncio 123835179