Vendita Appartamento

Appartamento

Via Sanguettara, Loreggia, Padova

165.000 €
50
mq
2
Locali
1
Camere
1
Bagni

Recensisci questo Immobile

Devi essere registrato per lasciare una recensione.

Accedi

Nessuna recensione ancora. Sii il primo!

Descrizione

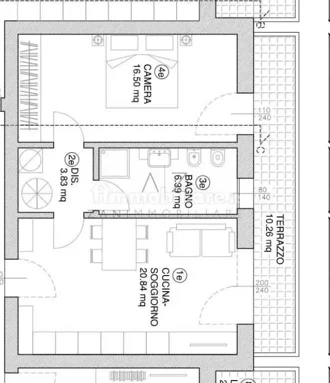
Proponiamo in vendita un moderno appartamento bilocale di circa 50 mq, situato a Loreggia ed inserito in un contesto condominiale di nuova costruzione.
L’immobile si trova all’interno di una palazzina elegante e curata, immersa nel verde, ideale per chi desidera vivere in un ambiente sereno e funzionale.

L’appartamento è composto da una zona giorno open space, dalla quale si accede direttamente al terrazzo vivibile rivolto ad Ovest. La zona notte comprende una spaziosa camera matrimoniale di ben 16,5 mq ed un bagno finestrato moderno e funzionale, di quasi 7 mq.
Un comodo disimpegno completa la distribuzione degli spazi interni.

Al piano terra troviamo un garage singolo di proprietà.

Inoltre, il bilocale dispone di: riscaldamento a pavimento, autonomo, tapparelle motorizzate, 3,2 kW di impianto fotovoltaico, predisposizione allarme e finiture a scelta come da capitolato.

La soluzione è ideale sia come prima casa che come investimento grazie alla posizione centrale: tutti i principali servizi, scuole, supermercati e mezzi pubblici sono facilmente raggiungibili a piedi.
Il progetto prevede inoltre la realizzazione di pompeiane esterne e posti auto riservati ai residenti.

Per maggiori info e visite contattare Consulente Nicola: 327919259 - nicola@zanimmobiliare.it

Caratteristiche

Piano Piano terra, con ascensore
Ascensore Si
Stato Nuovo / In costruzione
Riscaldamento Autonomo
Garage 1 in box privato/box in garage

Servizi e accessori

Fibra ottica Porta blindata Accesso per disabili Terrazzo

Posizione

Storico

Pubblicato 01 Jan 2026
Aggiornato 24 Feb 2026
Sul mercato 54 giorni
ID Annuncio 123940787

Recensioni

Vedi tutte
E

Enrico Di Maio

4.3

Rispetto ad altre esperienze che ho avuto nel settore, questa agenzia si distingue per la disponibilità e la flessibilità negli orari. Sono stato seguito con attenzione e professionalità, trovando fac...