Vendita Appartamento Luxury

Appartamento

Via Strada Statale 301, Livigno, Sondrio

Prezzo
115
mq
4
Locali
2
Camere

Recensisci questo Immobile

Devi essere registrato per lasciare una recensione.

Accedi

Nessuna recensione ancora. Sii il primo!

Descrizione

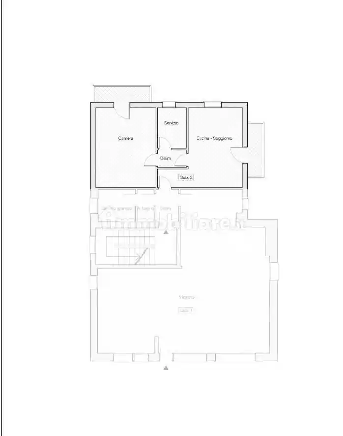
In una posizione tranquilla e panoramica di Trepalle, proponiamo in vendita un bilocale con annessa zona commerciale al piano terra rialzato. L'immobile offre una vista aperta sulle montagne del Mottolino e sulla Malga Vallaccia, in un contesto naturale ideale per chi desidera vivere in un ambiente sereno e a contatto con la natura.

L'appartamento dispone di 50 mq di superficie residenziale e di 70 mq attualmente destinati ad attività commerciale, con la possibilità di riconversione in uso abitativo. Questa caratteristica consente di creare una soluzione ampia e versatile, adatta sia come abitazione principale sia come combinazione tra spazio residenziale e lavorativo.

Completano la proprietà due terrazzi panoramici, una cabina armadio, un ripostiglio e un'ottima esposizione che garantisce luminosità durante tutto il giorno.

La zona è ben servita e adatta alle famiglie: scuole, parco giochi e pista ciclabile si trovano nelle immediate vicinanze. In inverno, le piste da sci e la pista di fondo sono facilmente raggiungibili in pochi minuti.

Grazie alla vicinanza a Livigno, con i suoi negozi extradoganali, ristoranti e servizi, l'immobile rappresenta anche un'interessante opportunità di investimento in un'area turistica attiva durante tutto l'anno.

Un immobile da ristrutturare con ottime potenzialità, ideale per chi cerca una casa personalizzabile in un contesto montano autentico e strategico.

Per informazioni e visite, contattate Marinella al 335 6272873.

Caratteristiche

Ascensore No
Stato Da ristrutturare
Riscaldamento Centralizzato

Servizi e accessori

Esposizione esterna Balcone Terrazzo Parzialmente arredato Infissi esterni in doppio vetro / legno

Posizione

Storico

Pubblicato 01 Jan 2026
Disattivato 26 Feb 2026
Sul mercato 104 giorni
ID Annuncio 124009735

Recensioni

Vedi tutte
D

Domenico Cavalli

4.7

Durante il processo mi sono sentito davvero rassicurato e supportato, grazie alla trasparenza e alla serietà dell'agenzia. Sono stato seguito con attenzione e professionalità, trovando l'appartamento...

D

Dario Della Valle

4.3

Se cercate un'agenzia immobiliare affidabile, consiglio di affidarsi a chi dimostra cortesia e serietà in ogni passo. Dopo il mio trasferimento in una zona più tranquilla di Sondrio, ho trovato un tea...