Indietro
Palazzo - Edificio
Vendita
Vendita Palazzo - Edificio

Palazzo - Edificio

Cascina, Pisa

210.000 €
Ottimo Affare: 79% sotto la media
520
mq
5+
Locali
3+
Bagni

Recensisci questo Immobile

Devi essere registrato per lasciare una recensione.

Accedi

Nessuna recensione ancora. Sii il primo!

Descrizione

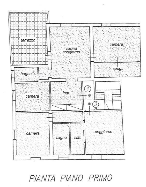
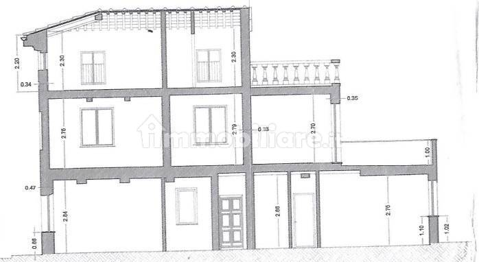
CASCINA - in località SAN FREDIANO - ADATTO PER INVESTIMENTO, STABILE DI 520 MQ circa DA RISTRUTTURARE con possibilità di ricavare fino a 7 unità abitative dal bilocale all'appartamento di 5 vani. Alcuni con ingresso indipendente e giardinetto.
Ad ogni unità saranno assegnati due poti auto privati nel cortile condominiale accessibile tramite cancello.
Rif. M1728
CE "G" 160 kWh/mq*anno
Facciamo presente alla gentile clientela che gli indirizzi riportati sugli annunci sono puramente indicativi.
Per maggiori informazioni ci trovate a Cascina loc. Navacchio, in via Tosco Romagnola, 2011 oppure potete contattarci ai seguenti recapiti telefonici: 0508665524 - 3756529605 - 3939336199 - agenzia@delilloimmobiliare.it

Caratteristiche

Piano T
Ascensore No

Servizi e accessori

Mansarda

De Lillo Immobiliare

Agenzia

Referente

De Lillo Immobiliare

Storico

Pubblicato 14 Jan 2026
Aggiornato 19 Feb 2026
Sul mercato 36 giorni
ID Annuncio 124019177