Villetta a schiera
Vendita
Vendita Villetta a schiera

Villetta a schiera

Via dei Fanti, San Pietro in Gu, Padova

280.000 €
190
mq
5+
Locali
3
Camere
3
Bagni

Recensisci questo Immobile

Devi essere registrato per lasciare una recensione.

Accedi

Nessuna recensione ancora. Sii il primo!

Descrizione

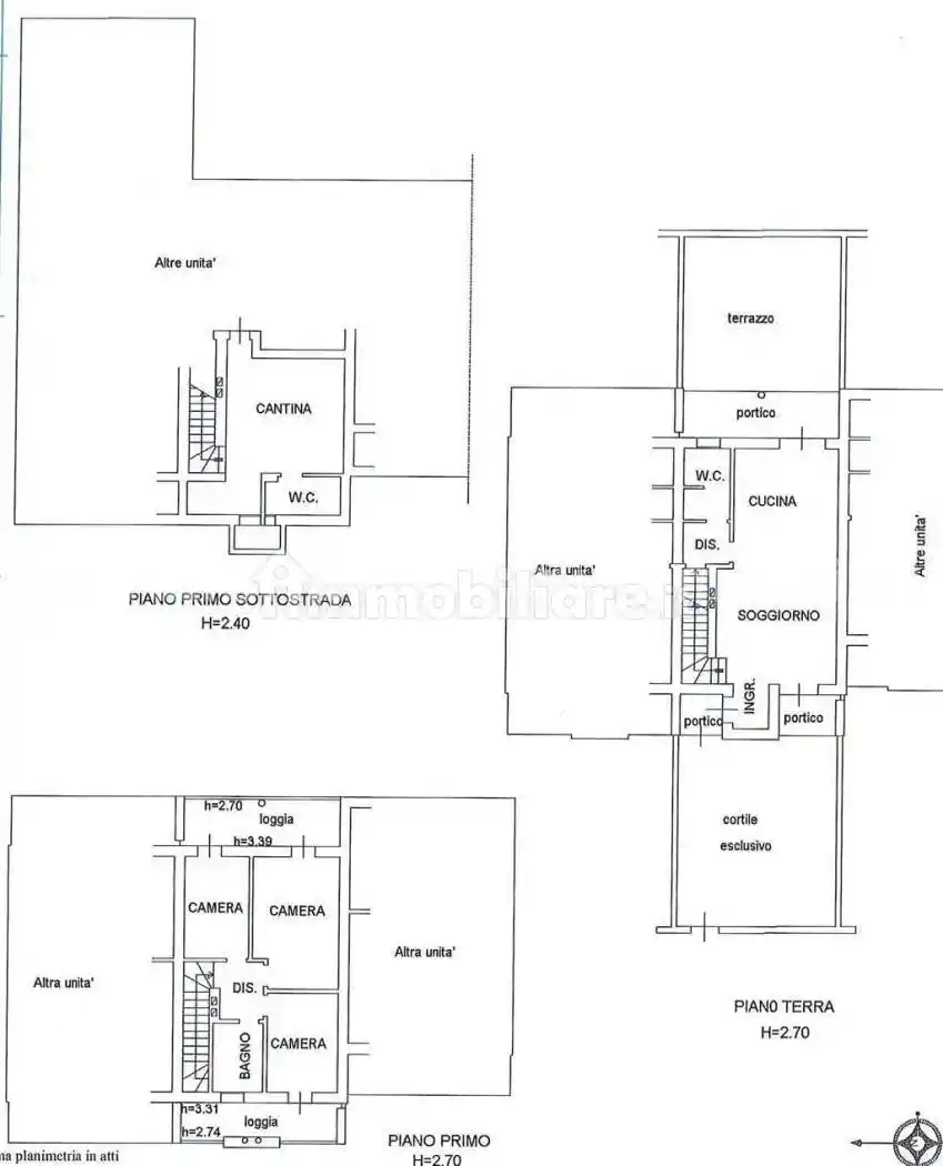
vendesi villino affiancato in ottimo stato di mq. 190 in zona tranquilla con cortile privato, autorimessa doppia, cantina e lastrico solare.
l'immobile si sviluppa su tre livelli. al piano terra portico d'ingresso, ampio soggiorno con angolo cottura, bagno, porticato e lastrico solare. il primo piano si compone di n. 3 camere letto, bagno e due logge ed al piano interrato e' posta un'autorimessa per due auto, taverna/cantina e bagno.
classe energetica "c". prezzo richiesto euro 280.000,00#
per info: nicola valitutti 3482636911

Caratteristiche

Piano Piano terra
Ascensore No
Stato Buono / Abitabile
Riscaldamento Autonomo
Garage 2 in box privato/box in garage

Servizi e accessori

Porta blindata Terrazzo Cantina Giardino privato

Posizione

Referente

Nicola Valitutti

Storico

Pubblicato 03 Jan 2026
Aggiornato 15 Feb 2026
Sul mercato 48 giorni
ID Annuncio 124034107

Recensioni

Vedi tutte
C

Clara Fusco

4.7

Ho scelto questa agenzia perché mi hanno subito colpito per la loro serietà e professionalità, e devo dire che hanno reso tutto il processo molto più semplice e veloce. Mi sono sentita seguita passo d...

P

Pina Taddei

4.7

Ho scelto questa agenzia perché si distingue per la profonda conoscenza del mercato immobiliare di Vicenza e per la loro attenzione alle normative, cosa importante per chi si trasferisce in una città...

L

Laura Margiotta

4.3

Grazie di cuore per avermi aiutato a trovare la casa perfetta vicino ai miei genitori anziani. Ho trovato un’ampia scelta di immobili e sono rimasta colpita dalla cura dei dettagli e dall’attenzione c...