Vendita Appartamento Luxury

Appartamento

Calenzano, Firenze

460.000 €
86
mq
3
Locali
2
Camere
2
Bagni

Recensisci questo Immobile

Devi essere registrato per lasciare una recensione.

Accedi

Nessuna recensione ancora. Sii il primo!

Descrizione

Rif.585Z
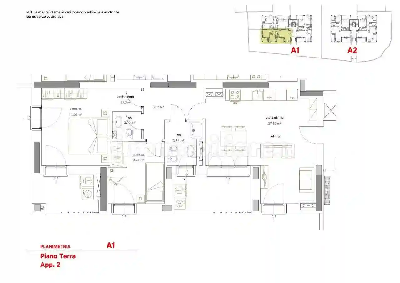
Calenzano, in zona centrale prossima ai principali servizi, proponiamo in vendita trilocale di NUOVA costruzione.
L'immobile posto al piano terra sviluppa una superficie di mq 86,00 ed è composto da luminoso soggiorno con angolo cottura, spaziosa camera matrimoniale, cameretta e due bagni di cui uno finestrato.
Completa la proprietà ampio spazio esterno in parte pavimentato e in parte destinato a giardino di circa mq 180,00 oltre cantina di circa mq 9,00 e posto auto coperto.
Ottimo capitolato con riscaldamento a pavimento, climatizzazione di serie, cappotto termico e infissi in legno con vetrocamera a taglio termico e acustico.
La consegna è prevista entro fine 2026.
Classe energetica A2.
SCONTO SISMA BONUS: EURO 34.560,00 detraibili in 10 anni su IRPEF.
Richiesta Euro 460.000,00.
Maggiori informazioni, piantine, progetto e rendering in agenzia.
Rif.585Z

PER QUALSIASI INFORMAZIONE CONTATTARE
AGENZIA IMMOBILIARE ZOPPI SAS
055/8879255 - 055/8877483
info@immobiliarezoppi.it www.immobiliarezoppi.it

Caratteristiche

Piano T
Ascensore Si
Stato Nuovo / In costruzione
Riscaldamento Autonomo, a pavimento

Servizi e accessori

Cancello elettrico Esposizione esterna Fibra ottica Impianto di allarme Impianto tv singolo Infissi esterni in doppio vetro / legno Porta blindata VideoCitofono

Posizione

Referente

Immobiliare Zoppi

Storico

Pubblicato 24 Feb 2026
Aggiornato 24 Feb 2026
Sul mercato 2 giorni
ID Annuncio 124061995

Recensioni

Vedi tutte
C

Carlotta Mariani

4.3

Ho trovato l’ufficio perfetto grazie a questa agenzia immobiliare. Sono stata seguita con molta pazienza e flessibilità negli orari, il che ha reso tutto più facile. Sono molto soddisfatta dell’assist...

R

Roberta Galli

4.3

Dopo diverse esperienze con agenzie che sembravano più confuse che d’aiuto, questa volta è stato un altro mondo. Mi sono sentita seguita passo passo, con spiegazioni chiare e tanta disponibilità, anch...