Vendita Villa

Villa

Viale Vittorio Veneto, Vignola, Modena

200.000 €
Ottimo Affare: 44% sotto la media
250
mq
4
Locali
4
Camere
2
Bagni

Recensisci questo Immobile

Devi essere registrato per lasciare una recensione.

Accedi

Nessuna recensione ancora. Sii il primo!

Descrizione

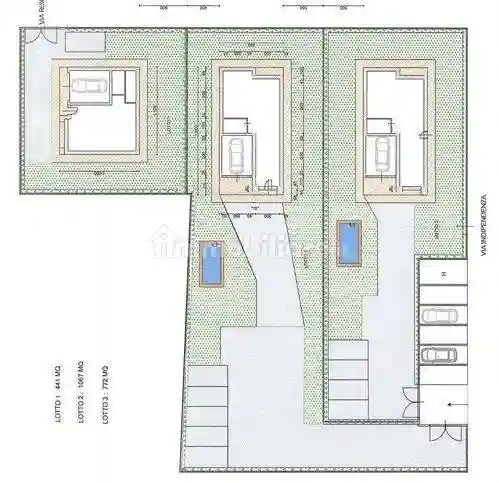
Benvenuti in una rara opportunita immobiliare situata in una delle zone piu esclusive della citta. Queste soluzione indipendente, offre una superficie utile di 223 mq potenzialmente distribuita su 4 locali spaziosi e 2 bagni moderni. Con un orientamento che abbraccia tutti i punti cardinali, la proprieta garantisce luminosita naturale in ogni angolo.Il lotto di terreno di 441 mq pubblicizzato, e solo uno dei tre disponibili, con gli altri due lotti offerti rispettivamente a 260.000 e 290.000 euro. Ideali per chi cerca soluzioni indipendenti, questi lotti offrono un potenziale edificabile senza pari.Completa la proprieta un ampio garage, perfetto per chi desidera spazio aggiuntivo per veicoli o stoccaggio. Non perdere l'occasione di vivere in un ambiente esclusivo e moderno, dove ogni dettaglio e stato curato per offrire il massimo del comfort e dello stile. I prezzi si riferiscono al solo terreno urbanizzato.Contattaci per maggiori informazioni e per fissare un appuntamento nei nostri uffici.

Caratteristiche

Stato Ottimo / Ristrutturato
Riscaldamento Autonomo

Referente

Agenzia Immobiliare Rubbiani

Storico

Pubblicato 12 Jan 2026
Aggiornato 24 Feb 2026
Sul mercato 44 giorni
ID Annuncio 124062265

Recensioni

Vedi tutte
P

Pietro Di Maio

4.7

Ho trovato un’agenzia che mi ha seguito con molta attenzione nelle ricerche e nella documentazione, il che ha reso tutto molto più semplice. Mi hanno aiutato a trovare un appartamento con vista mare p...

R

Rocco De Filippo

4.3

Ho trovato un’agenzia davvero affidabile e professionale a Vignola, che mi ha seguito passo dopo passo nell’acquisto della mia casa al mare. La serietà e l’assistenza post-vendita sono state impeccabi...

R

Roberto Vecchi

4.3

Ho scelto questa agenzia perché mi ha trasmesso un senso di chiarezza nelle spiegazioni e offriva un’ampia scelta di immobili. Il team è stato sempre disponibile a seguire ogni mio passo e ad aiutarmi...