Vendita Villa Luxury

Villa

Via Antonio Meucci, Vailate, Cremona

328.000 €
110
mq
4
Locali
3
Camere
2
Bagni

Recensisci questo Immobile

Devi essere registrato per lasciare una recensione.

Accedi

Nessuna recensione ancora. Sii il primo!

Descrizione

VAILATE: NUOVO INTERVENTO EDILIZIO
Consegna per fine 2026.
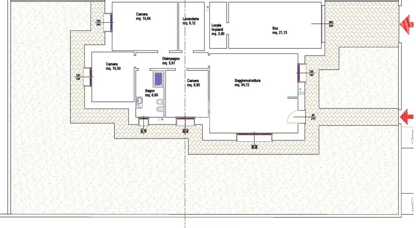
Porzione di bifamiliare disposta su un unico livello di 110 Mq, oltre a 300 Mq di giardino privato e box di circa 28 mq.
La soluzione presenterà un ampio soggiorno con cucina a vista, disimpegno che divide dalla zona notte dove troviamo una camera matrimoniale, due camerette e due bagni entrambi accessoriati di doccia o vasca a scelta della parte acquirente.
L’abitazione sarà dotata di:
-isolamento con cappotto di 14 cm in grafite.
-serramenti in PVC a tapparella.
-portoncino d’ingresso blindato.
-predisposizione di impianto di condizionamento.
-impianto di riscaldamento full Electric con pompa di calore.
-impianto fotovoltaico autonomo da 8 Kwht.
-sistema di ventilazione meccanica controllata (VMC).
Per tutte le ulteriori informazioni potete contattarci al nostro numero o al nostro indirizzo email.

Caratteristiche

Piano Piano terra
Ascensore No
Stato Nuovo / In costruzione
Riscaldamento Autonomo
Garage 2 in box privato/box in garage, 1 in parcheggio/garage comune

Servizi e accessori

Porta blindata Esposizione esterna Accesso per disabili Impianto tv con parabola satellitare Giardino privato Infissi esterni in doppio vetro / pvc

Posizione

Storico

Pubblicato 04 Jan 2026
Aggiornato 25 Feb 2026
Sul mercato 52 giorni
ID Annuncio 124118177

Recensioni

Vedi tutte
C

Chiara Malerba

5.0

Grazie di cuore per l’assistenza competente e paziente che mi avete offerto durante la ricerca del mio bilocale a Vailate. Mi sono sentita ascoltata e seguita passo dopo passo, grazie alla vostra disp...

E

Erica Perna

4.7

Ho trovato l’agenzia perfetta a Vailate, sono stata davvero colpita dalla loro attenzione alle mie esigenze. Mi hanno seguita passo passo, aiutandomi a gestire tutto senza stress e in modo molto profe...

G

Gloria Costa

4.7

Stavo cercando un bilocale a Vailate per trasferirmi per lavoro e avevo bisogno di qualcuno che conoscesse bene il mercato locale. Mi sono trovata molto bene, la loro conoscenza del territorio e delle...