Vendita Appartamento

Appartamento

Via Trappeto di Moro, Galatone, Lecce

160.000 €
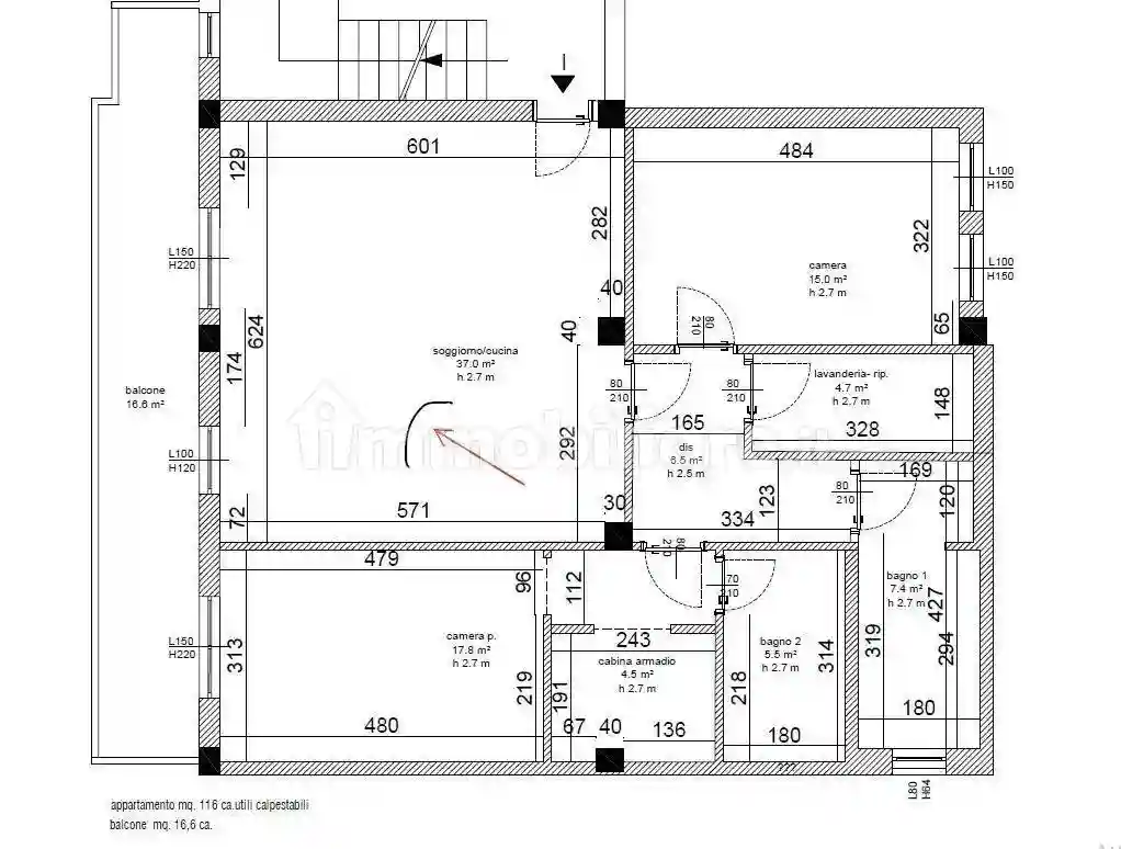
116
mq

Recensisci questo Immobile

Devi essere registrato per lasciare una recensione.

Accedi

Nessuna recensione ancora. Sii il primo!

Descrizione

Stai cercando un appartamento di nuova costruzione? Il futuro della tua casa ti aspetta in via Trappeto di Moro, a Galatone.
Vieni a scoprire questo nuovo cantiere che sta nascendo!
Situato nel cuore della città questi appartamenti in fase di costruzione ti offriranno il meglio, in un contesto condominiale intimo e tranquillo.

Caratteristiche dell'immobile:
L'appartamento denominato "I” è situato al secondo piano di questo nuovo contesto condominiale che è dotato di scale in condivisone con altri appartamenti, posizionati al primo e al secondo piano.
L'immobile misura circa 116 mq e vanta: due camere da letto di cui una con cabina armadio, due bagni, un soggiorno open space, un ripostiglio/lavanderia e un balcone di circa 17 mq, perfetto per momenti di relax e intrattenimento all'aperto.
Una soluzione ideale per chi cerca comfort e funzionalità in un ambiente residenziale di qualità.

Caratteristiche generali:
Tutte le murature perimetrali hanno uno spessore di 35 cm con cappotto termico.
La pavimentazione interna con ceramica in gress di prima scelta;
battiscopa in ceramica altezza di 8 cm posto in opera in tutti i vani abitabili;
rivestimento delle pareti di bagni e w. c. con piastrelle in ceramica;
le porte interne in legno naturale o laccate del tipo tamburato;
il portoncino di ingresso blindato con struttura metallica in acciaio coibentato ed insonorizzato;
gli infissi saranno in PVC a taglio termico a battente o vasistas;
tapparelle elettriche.

L’impianto elettrico verrà realizzato con materiali e componenti di avanzata tecnologia e classificati per il risparmio energetico.

L’impianto di riscaldamento/raffrescamento e produzione acqua calda sanitaria verrà alimentato da POMPA DI CALORE HISENSE o similare idronica reversibile aria/acqua INVERTER A+++, dotata di tutte le funzioni di ultima generazione.

Vivi in una casa moderna e sicura, progettata per le esigenze di oggi e di domani, non perdere l'opportunità di vivere in un ambiente moderno, confortevole e sicuro!
Contattaci oggi stesso per ulteriori informazioni e per prenotare una visita guidata.

Caratteristiche

Piano 2
Ascensore No
Stato Nuovo / In costruzione
Riscaldamento Autonomo, a radiatori, alimentazione elettrica

Servizi e accessori

Esposizione esterna

Posizione

Referente

Gfs Immobiliare Nardo'

Storico

Pubblicato 14 Jan 2026
Aggiornato 25 Feb 2026
Sul mercato 43 giorni
ID Annuncio 124160473

Recensioni

Vedi tutte
R

Ruggero Fusco

4.7

Le mie precedenti esperienze con agenzie immobiliari erano state lente e complicate, ma questa volta tutto è andato diversamente. Sono stato seguito con grande attenzione e attenzione, trovando la cas...

B

Bruno Giannone

4.3

Se cercate un’agenzia seria e attenta ai dettagli, ve la consiglio vivamente. Sono stato molto soddisfatto del mio percorso di vendita, sono stato seguito con professionalità e cura in ogni fase. Hann...