Vendita Appartamento

Appartamento

Cadelbosco di Sopra, Reggio Emilia

Prezzo
69
mq
2
Locali
1
Camere
1
Bagni

Recensisci questo Immobile

Devi essere registrato per lasciare una recensione.

Accedi

Nessuna recensione ancora. Sii il primo!

Descrizione

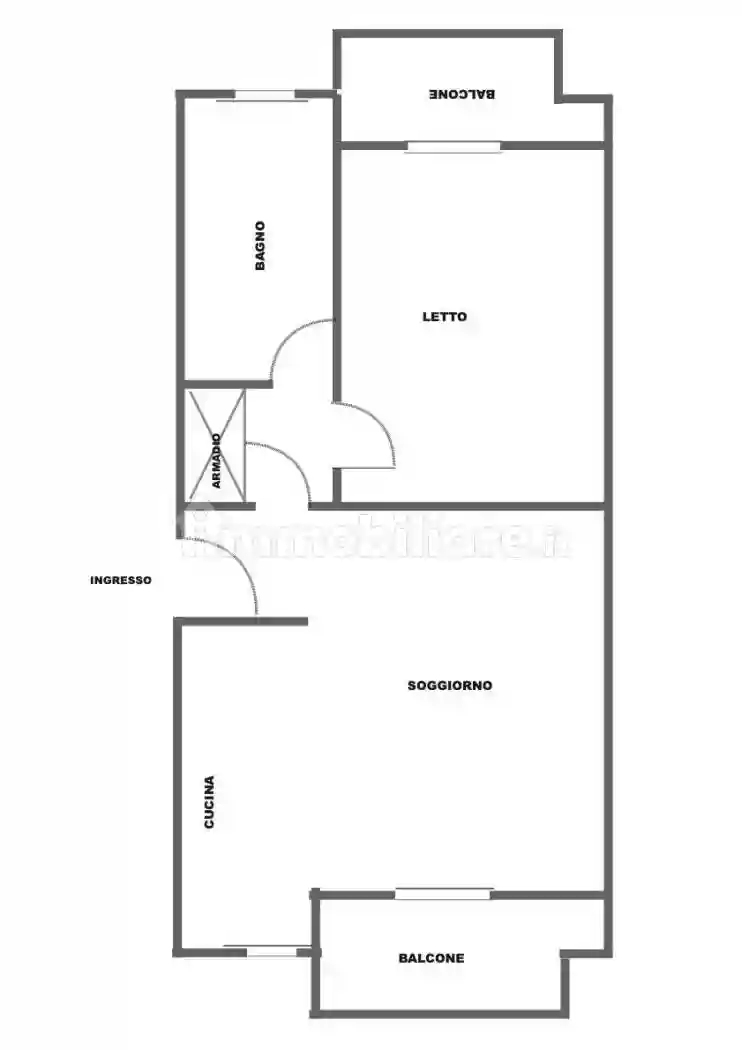
Vendiamo in ESCLUSIVA Appartamento composto da:
Ingresso su zona Giorno con Cucina a Vista, Balcone che guarda la corte interna,
Disimpegno, Camera Matrimoniale Grande Con Balcone,
Bagno completamente Rifatto Nuovo, Cantina,
Garage e Posto Auto interno al cortile con Cancello Automatico e Grande Giardino Condominiale.
Riscaldamento Autonomo, Basse spese Condominiali.
LIBERO PER LA VENDITA A GENNAIO.

Caratteristiche

Piano 2
Ascensore No
Stato Buono / Abitabile
Riscaldamento Autonomo, a radiatori, alimentato a gas

Servizi e accessori

Cancello elettrico Esposizione esterna Fibra ottica Impianto tv centralizzato Infissi esterni in doppio vetro / legno Porta blindata VideoCitofono

Posizione

Referente

PUNTO CASE RE

Storico

Pubblicato 12 Jan 2026
Disattivato 05 Mar 2026
Sul mercato 134 giorni
ID Annuncio 124296911

Recensioni

Vedi tutte
M

Monica Taverna

4.7

Ricordo ancora il momento in cui ho firmato le chiavi della mia casa al mare, un passo importante che mi ha fatto sentire molto tranquilla. Sono stata seguita con cura e professionalità, in particolar...

C

Carlotta Galasso

4.7

Durante il processo mi sono sentita davvero supportata e sicura, grazie all’affidabilità e alla pazienza dell’agenzia. Mi sono trovata subito a mio agio, perché sono stata seguita passo passo con gran...

L

Lucia Frigerio

4.3

Devo dire che sono stata davvero soddisfatta dell’aiuto ricevuto per trovare l’ufficio perfetto. L’agenzia è stata molto seria e precisa con tutta la documentazione e mi ha seguito passo dopo passo se...