Vendita Appartamento

Appartamento

Via Roma, 23, Travagliato, Brescia

Prezzo su richiesta
100
mq
3
Locali
2
Camere
2
Bagni

Recensisci questo Immobile

Devi essere registrato per lasciare una recensione.

Accedi

Nessuna recensione ancora. Sii il primo!

Descrizione

TRAVAGLIATO - NUOVA COSTRUZIONE
In una zona residenziale tranquilla e riservata di Travagliato, proponiamo in vendita un elegante appartamento trilocale al piano terra, situato in un complesso di sole cinque unità abitative.
La soluzione, di nuova costruzione, gode di ingresso indipendente e di un ampio giardino privato che circonda due lati dell'abitazione, ideale per chi desidera vivere all'aperto in totale privacy.
All'esterno si trovano due portici coperti, uno all'ingresso del soggiorno e uno collegato alla camera matrimoniale, perfetti per momenti di relax o convivialità all'aperto.
Gli interni si distinguono per luminosità e comfort: ampio soggiorno con cucina open-space, camera matrimoniale con cabina armadio e bagno privato, seconda camera doppia e secondo bagno con doccia.
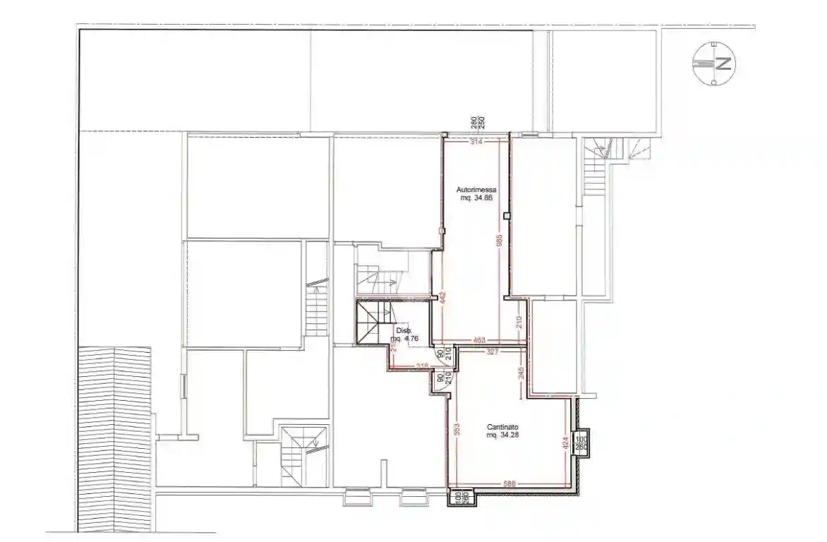
Una scala interna conduce al piano interrato, dove sono presenti una spaziosa cantina e un box auto doppio in lunghezza.
L'abitazione è dotata di riscaldamento autonomo a pavimento, impianto di climatizzazione in ogni ambiente e classe energetica A3, garanzia di comfort abitativo e massimo risparmio energetico.
Soluzione ideale per chi cerca indipendenza, tranquillità e qualità costruttiva, in un contesto moderno e curato.

Caratteristiche

Ascensore No
Stato Nuovo / In costruzione
Riscaldamento Autonomo, a pavimento

Posizione

Referente

Affiliato Tecnocasa: TECNOTRAVAGLIATO SRL

Storico

Pubblicato 12 Jan 2026
Aggiornato 25 Feb 2026
Sul mercato 44 giorni
ID Annuncio 124307439

Recensioni

Vedi tutte
E

Elena Spano

5.0

Ad esempio, quello che mi ha colpito di più è stata l’attenzione che hanno avuto nel capire davvero cosa cercavo. Mi sono sentita seguita passo dopo passo, senza mai sentirti sotto pressione, e hanno...

S

Simona Verna

5.0

Un enorme grazie per avermi seguita con tanta professionalità e attenzione. Ho trovato il terreno perfetto per le mie esigenze grazie alla capacità di ascolto e alla disponibilità di chi mi ha assisti...