Vendita Appartamento

Appartamento

Cascina Campo Superiore, Missaglia, Lecco

Prezzo
Ottimo Affare: 80% sotto la media
92
mq
2
Locali
1
Camere
1
Bagni

Recensisci questo Immobile

Devi essere registrato per lasciare una recensione.

Accedi

Nessuna recensione ancora. Sii il primo!

Descrizione

Riferimento : 4455323

Asta scaduta: L’immobile non è più disponibile, ma ci sono oltre 20.000 aste attive e spesso ancora più convenienti. Contattaci ora: ti aiutiamo a trovare la tua prossima occasione o a ricevere maggiori informazioni.

Cascina Campu Superiore 8, Missaglia LC, Italia

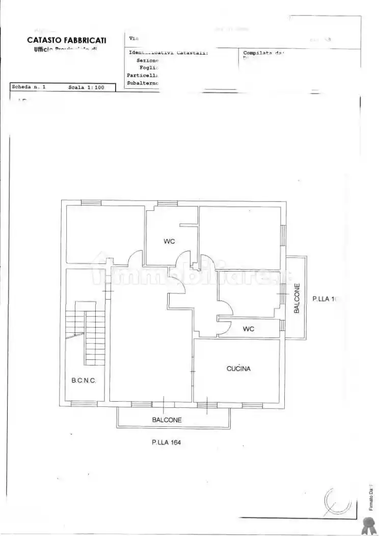
porzione di fabbricato rurale in Missaglia (LC), Cascina Campù Superiore 8, della superficie commerciale di 92,10 mq. L’immobile è posto al piano primo di una cascina storica, ed è costituito da ampio locale ingresso affacciato sul soggiorno, dal quale si può accedere alla cucina, camera da letto e bagno.

Data di vendita 10/12/2025

Offerta minima 25.030,00 €

valore di perizia 53.575,00 €

Studio di Fattibilità Pre-Asta

Offriamo consulenza legale completa per l'acquisto tramite asta giudiziaria. I nostri servizi includono:

Ricerca dell'immobile secondo le esigenze del cliente
Studio di fattibilità pre-asta in fase di richiesta di visita
Studio di fattibilità del mutuo tramite banche convenzionate
Esame della perizia e documentazione correlata
Verifica legale
Preparazione e deposito delle offerte di partecipazione
Gestione della gara
Consulenza e documentazione post-aggiudicazione fino all'emissione del decreto di trasferimento o del rogito

Vi invitiamo a fissare una prima consulenà Pre-Asta gratuita presso una delle nostre 80 sedi sparse su tutto il territorio per ricevere maggiori informazioni sul processo di partecipazione ad un'asta giudiziaria, tempistiche, costi e modalità di acquisto.

Ulteriore documentazione disponibile verrà messa a disposizione durante la consulenza.

‪+39 06 4006 1824‬

Visitate il nostro sito www.asteflorio.com dove potrete trovare più di 25.000 Aste disponibili e la nuova sezione dedicata agli NPL.
NB: Le immagini potrebbero essere solo esempi e non rappresentare gli immobili reali. Le coordinate geografiche, fornite automaticamente da Google, possono contenere inesattezze. Segnalate eventuali errori e rimuoveremo gli annunci non conformi.
L'ESATTEZZA DI TUTTI I DATI PUBBLICATI INOLTRE SARA' CONFERMATA IN SEDE DI CONSULENZA.

Caratteristiche

Piano 1
Ascensore No
Stato Buono / Abitabile
Riscaldamento Autonomo, a radiatori, alimentazione elettrica

Servizi e accessori

Cucina Esposizione doppia Impianto tv singolo Infissi esterni in vetro / legno

Aste Florio

Agenzia

Referente

Aste Florio

Storico

Pubblicato 13 Jan 2026
Disattivato 26 Feb 2026
Sul mercato 138 giorni
ID Annuncio 124321737