Affitto Appartamento

Trilocale via Alfredo Albanese 9, Lughetto, Campagna Lupia

Via Alfredo Albanese, Campagna Lupia, Venezia

Prezzo /mese
140
mq
3
Locali
2
Camere
2
Bagni

Recensisci questo Immobile

Devi essere registrato per lasciare una recensione.

Accedi

Nessuna recensione ancora. Sii il primo!

Descrizione



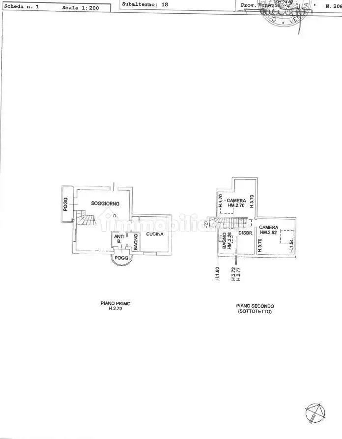
appartamento duplex in classe a3 (110mq+27mq garage) ad alta efficienza energetica disposto su due piani ... presenta impianto fotovoltaico , cappotto , caldaia ibrida con pompa di calore gas/elettrico

2 bagni
2 camere da letto
1 cucina
1 salotto
1 terrazza e 1 terrazza mini

giardino comune

1 garage doppio in lunghezza (2 auto) di circa 30 mq - colonnina per ricarica auto elettrica

circa 70 euro mensili spese condominiali

non e arredato , sono presenti solo i 2 bagni

Caratteristiche

Piano
Stato Ottimo / Ristrutturato
Riscaldamento Autonomo
Garage 2 in box privato/box in garage

Servizi e accessori

Cucina Esposizione sud, est

Posizione

Agenzia Immobiliare

Storico

Pubblicato 27 Dec 2025
Disattivato 19 Apr 2026
Sul mercato 150 giorni
ID Annuncio 124327923