Appartamento
Vendita
Vendita Appartamento

Appartamento

viale ofanto, 184, Foggia, Foggia

159.000 €
160
mq
5
Locali
3
Camere
2
Bagni

Recensisci questo Immobile

Devi essere registrato per lasciare una recensione.

Accedi

Nessuna recensione ancora. Sii il primo!

Descrizione

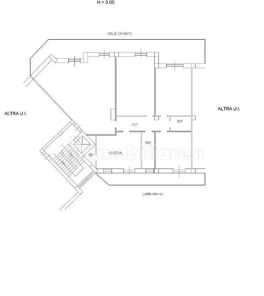
In viale Ofanto 184 a Foggia proponiamo in vendita appartamento posto al piano intermedio, composto da ingresso, disimpegno, sala doppia, tre camere da letto, cucina abitabile, doppi servizi e ripostiglio doppia esposizione, appartamento in buono stato, libero subito. Possibiltà di box piano S1. Classe Energetica: G EPI: 187,00 kwh/m2 anno

Caratteristiche

Piano 2
Ascensore Si
Stato Da ristrutturare
Riscaldamento Centralizzato

Posizione

Zona: Immacolata (Centro)

Referente

Luciano Coluccelli Agenzia Immobiliare

Storico

Pubblicato 14 Jan 2026
Aggiornato 18 Feb 2026
Sul mercato 38 giorni
ID Annuncio 124408459

Recensioni

Vedi tutte
R

Roberta D'Amico

4.0

Ho trovato questa agenzia immobiliare davvero affidabile e competente. Mi sono sentita seguita passo passo e hanno avuto un’ottima conoscenza del mercato locale di Foggia, il che ha reso tutto più sem...

V

Veronica Costanzo

4.7

Perché cercavo un'agenzia affidabile e professionale, ho deciso di rivolgermi a questa. Sono stata molto soddisfatta della loro disponibilità e della rapidità con cui hanno risposto a tutte le mie dom...

M

Marta Bucci

4.7

Prima di questa esperienza, le mie precedenti trattative immobiliari erano state complicate e confuse, ma con questa agenzia tutto è stato diverso. Mi sono trovata seguita e aiutata passo dopo passo,...

I

Irene Rosati

4.7

Ho scelto questa agenzia perché mi hanno colpito la vasta scelta di immobili disponibili e la loro chiarezza nei dettagli, cosa che in città non è sempre scontata. Mi sono sentita subito seguita e aiu...

M

Miriam Carmignani

4.7

Stavo cercando un investimento immobiliare a Foggia e sono stata davvero fortunata a trovare un'agenzia così professionale e attenta alle mie esigenze. Mi sono sentita seguita passo dopo passo, sempre...