Vendita Appartamento

Appartamento

Via Leonardo Da Vinci, San Bonifacio, Verona

170.000 €
Buon Prezzo: 24% sotto la media
128
mq
1
Locali
1
Camere
1
Bagni

Recensisci questo Immobile

Devi essere registrato per lasciare una recensione.

Accedi

Nessuna recensione ancora. Sii il primo!

Descrizione

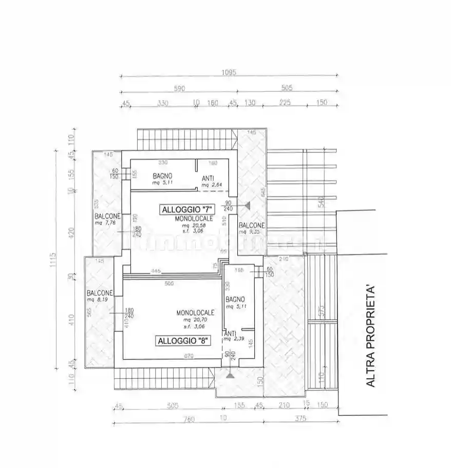
SAN BONIFACIO, LOCALITA' PROVA: disponibilità due monolocali con ampi balconi al piano primo e con corte esclusiva privata sul retro.
Ingresso indipendente, salotto con angolo cottura open space, antibagno e bagno.
Monolocale alloggio 7, 2 posti auto privati coperti con tettoia e monolocale alloggio 8 garage privato. (vedi planimetria).
Nuova costruzione 2025.
Predisposizione impianto fotovoltaico 3,5 kw.
No gas, impianto a pompa di calore con climatizzatore.
Consegna chiavi in mano febbraio/marzo 2026.
Ottimo per investimento. Comodissimo e molto vicino ai principali servizi.

Le immagini sono puramente indicative e non veritiere in quanto in fase di costruzione.

Il gruppo che gestisce l'agenzia MyHome Immobiliare opera ormai da diversi anni sulle province di Vicenza e di Verona.
Grazie alla nostra esperienza e preparazione siamo in grado di fornire servizi immobiliari a 360°.
Il nostro team crede fortemente nell’etica professionale, e il nostro obbiettivo è quello di soddisfare le esigenze immobiliari con affidabilità, trasparenza e serietà.
Sei alla ricerca della tua nuova casa o vuoi vendere la tua abitazione?
Rivolgiti al nostro team di esperti.
Ti aspettiamo nelle nostri sedi ad Arzignano (VI) in Via Trieste 20 e a San Bonifacio (VR) in Piazza Costituzione 31.

Caratteristiche

Piano 1
Ascensore No
Stato Nuovo / In costruzione

Servizi e accessori

Armadio a muro Cancello elettrico Esposizione esterna

Posizione

Referente

MyHome Immobiliare

Storico

Pubblicato 15 Jan 2026
Aggiornato 24 Feb 2026
Sul mercato 40 giorni
ID Annuncio 124416147

Recensioni

Vedi tutte
M

Maurizio Corsi

5.0

Se cercate un'agenzia seria e precisa, ve la consiglio vivamente! Ho trovato l'appartamento perfetto per i miei figli universitari grazie alla loro professionalità e attenzione ai dettagli. Sono stato...

T

Tito Lama

5.0

Se cercate un’agenzia affidabile per l’acquisto di un immobile, consiglio di sceglierne una che sappia gestire lo stress della trattativa e abbia attenzione alle vostre esigenze. Sono stato molto sodd...

B

Bruno Coppola

4.7

Ho scelto questa agenzia perché mi ha subito trasmesso professionalità e cortesia. Durante tutta la trattativa, ho trovato grande supporto e gestione dello stress, il che ha reso tutto molto più sempl...

M

Massimo Quattrocchi

4.7

Durante il processo mi sono sentito rassicurato e pieno di entusiasmo, grazie alla capacità di ascolto e alla rapidità con cui mi hanno seguito. Ho trovato l’investimento perfetto senza stressarmi tro...

I

Ivano Mancini

4.0

Stavo cercando una casa più vicina ai miei genitori anziani, qualcosa che potesse facilitare le visite e il sostegno quotidiano. L'agenzia si è dimostrata molto attenta alle mie esigenze, offrendo val...