Vendita Appartamento

Appartamento

VIA MARTIRI DELLA LIBERTà, 79, Fabriano, Ancona

168.000 €
164
mq
5+
Locali
3
Camere
2
Bagni

Recensisci questo Immobile

Devi essere registrato per lasciare una recensione.

Accedi

Nessuna recensione ancora. Sii il primo!

Descrizione

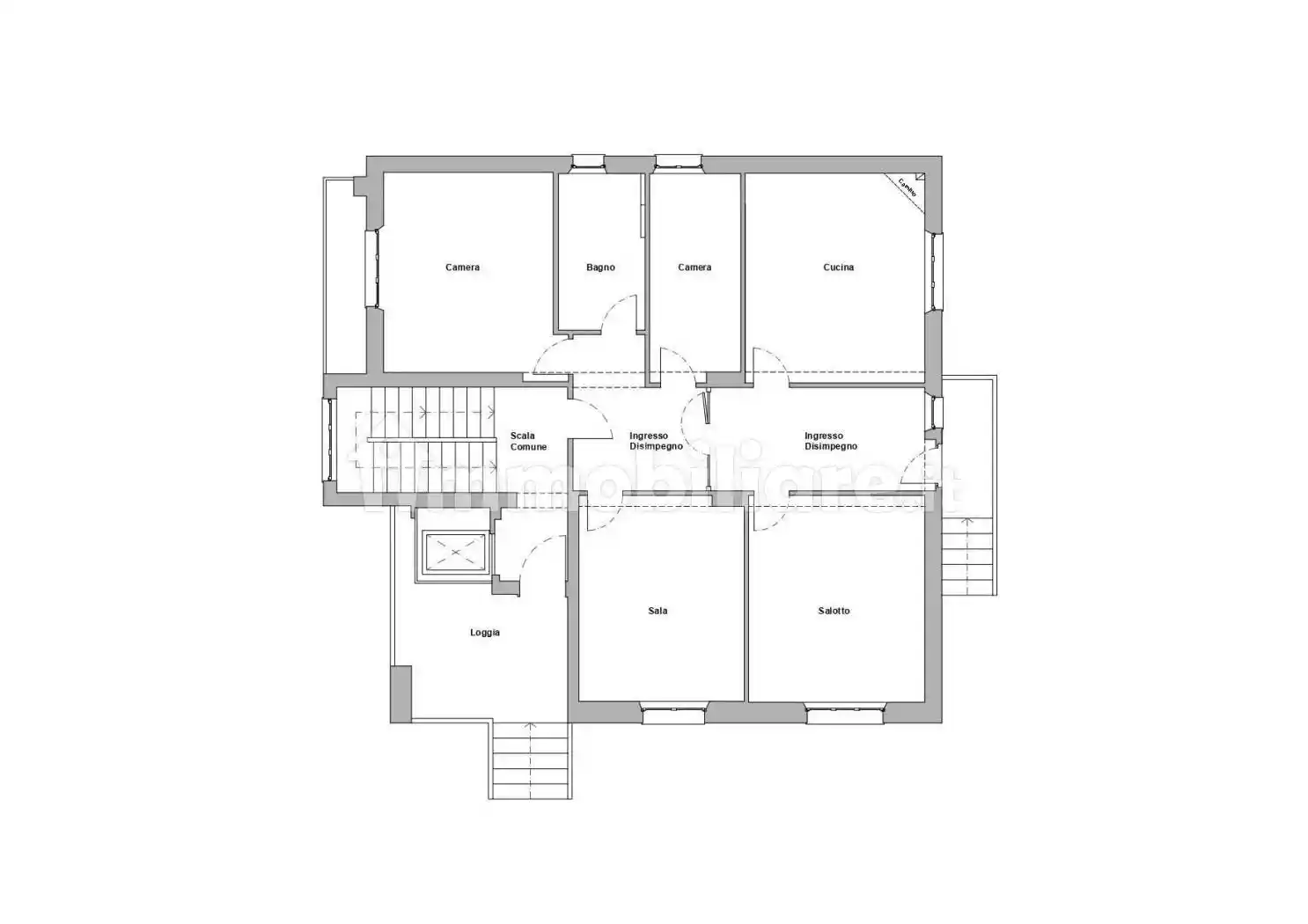
L'Agenzia Immobiliare Peverini propone in vendita a Fabriano, in zona Borgo, un elegante appartamento in bifamiliare rifinito con materiali di pregio. L'abitazione, situata interamente al primo piano, si distingue per gli spazi ampi e ben distribuiti ed è composta da un luminoso soggiorno con balcone e predisposizione per stufa a pellet, una cucina abitabile anch'essa con balcone, una comoda zona lavanderia e uno studio ideale come cameretta o spazio hobby. La zona notte comprende due camere matrimoniali, entrambe dotate di balconcino privato, e due bagni finestrati, uno con vasca e l'altro con doccia. Gli infissi sono in legno con doppi vetri, il portone d'ingresso è blindato, su quasi tutta la casa è presente il parquet e sul balcone principale è installata una tenda da sole automatizzata. Completano la proprietà un garage al piano terra con serranda automatica e una cantina al piano interrato, mentre il giardino, curato e ben tenuto, è in condivisione con l'appartamento del secondo piano. Una soluzione ideale per chi desidera vivere in un contesto tranquillo e residenziale senza rinunciare alla comodità dei servizi vicini.
Contattaci per organizzare un sopralluogo.

Caratteristiche

Piano 1
Ascensore No
Stato Buono / Abitabile
Riscaldamento Autonomo, a radiatori, alimentato a metano

Servizi e accessori

Impianto tv singolo

Posizione

Referente

Immobiliare Peverini

Storico

Pubblicato 13 Jan 2026
Aggiornato 23 Feb 2026
Sul mercato 43 giorni
ID Annuncio 124543827

Recensioni

Vedi tutte
M

Margherita Sabatini

5.0

Ho trovato la casa dei miei sogni grazie a un'agenzia davvero professionale e trasparente. Mi sono sentita seguita e aiutata step after step, rendendo tutto molto più semplice dopo tanti anni di affit...

J

Jessica Terranova

5.0

Ho trovato l’appartamento perfetto per la mia famiglia grazie alla loro competenza e conoscenza del mercato locale. Mi sono sentita seguita e supportata in ogni fase della trattativa, senza stress. So...

K

Katia Berti

4.7

Ho trovato l’appartamento perfetto per la mia famiglia in crescita grazie a un’agenzia molto seria e professionale. Mi sono sentita seguita passo dopo passo, con molta attenzione alla documentazione e...

E

Eva Vinci

4.7

Rispetto alle esperienze precedenti, questa agenzia è stata molto più professionale e affidabile. Mi sono trovata bene grazie all'accompagnamento durante le visite e alla puntualità negli appuntamenti...

L

Liliana Magrini

4.3

Il panorama mozzafiato che ho potuto ammirare dalla finestra dell’appartamento è stato il primo impatto che mi ha colpito davvero. Sono stata seguita con grande professionalità e gentilezza durante tu...