Villa
Asta
Asta Villa

Villa

Frazione Montepennino, Montefalco, Perugia

91.688 €
Buon Prezzo: 15% sotto la media
315
mq
5
Locali
4
Camere

Recensisci questo Immobile

Devi essere registrato per lasciare una recensione.

Accedi

Nessuna recensione ancora. Sii il primo!

Descrizione

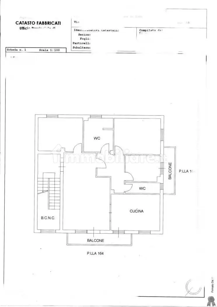
Viene venduta tramite asta giudiziaria un' abitazione di tipo civile (205 mq circa) con piccolo annesso (27 mq circa) ed ampia corte privata (1.020 mq circa), ubicata nel Comune di Montefalco (PG), in Località Montepennino.

L’immobile è di recente ristrutturazione ed è formato da un pian terreno e un piano fuori terra.
- Al piano terra è presente un disimpegno all’ingresso, un soggiorno, un bagno, un locale lavanderia, un’ampia cucina, uno studio, un locale tecnico accessibile dall’esterno oltre a un portico situato nel lato nord-est.
- Al piano primo, accessibile dalla scala interna, si trova la zona notte con tre camere e due bagni oltre al corridoio centrale.

Si accede all’abitazione dagli ingressi (carrabile e pedonale) provvisti di cancelli metallici.
Il fabbricato è in buone condizioni di manutenzione anche se internamente sono presenti delle infiltrazioni di umidità diffuse negli angoli al piano primo e delle lesioni passanti su una parete portante in prossimità della finestra dello studio.

La perizia segnala che sotto il profilo urbanistico-edilizio, per l’abitazione non esiste dichiarazione di agibilità.
Sono stata anche rilevate difformità: un aumento di volumetria e la chiusura in muratura di 2 finestre al piano primo.
Per l’ottenimento dell’agibilità e la sanatoria delle citate difformità urbanistiche, si rimanda agli atti della procedura.

Vendita tramite asta giudiziaria

PREZZO BASE € 122.250
OFFERTA MINIMA € 91.687,50

FOTO E PLANIMETRIE POTREBBERO NON CORRISPONDERE ALL'IMMOBILE IN OGGETTO.
Ulteriori informazioni sull’immobile (foto, planimetrie…) sono consultabili presso la nostra sede.
Contattaci per fissare un appuntamento!
Telefono 075/395390 350/9216699

Forniamo assistenza per tutto l’iter procedurale.
Ricerca immobile in base alle esigenze.
Visita.
Valutazione tecnico/legale.
Valutazione fattibilità acquisto.
Assistenza nella valutazione all’asta.
Assistenza post aggiudicazione, fino alla consegna delle chiavi.

Caratteristiche

Piano 2 piani: Piano terra, 1°
Ascensore No
Stato Buono / Abitabile
Riscaldamento Autonomo

Servizi e accessori

Esposizione esterna Cucina Impianto tv con parabola satellitare Cantina Giardino privato Infissi esterni in vetro / legno

Posizione

Storico

Pubblicato 02 Jan 2026
Aggiornato 15 Feb 2026
Sul mercato 49 giorni
ID Annuncio 124595775

Recensioni

Vedi tutte
U

Umberto Massa

4.7

Appena ho varcato la porta ho capito che mi sarei trovato bene: l’attenzione ai dettagli e la conoscenza delle normative erano evidenti fin dal primo momento. Mi hanno aiutato a trovare la casa perfet...