Vendita Appartamento

Appartamento

VIA ORIANI, 49, Faenza, Ravenna

290.000 €
102
mq
3
Locali
2
Camere
1
Bagni

Recensisci questo Immobile

Devi essere registrato per lasciare una recensione.

Accedi

Nessuna recensione ancora. Sii il primo!

Descrizione

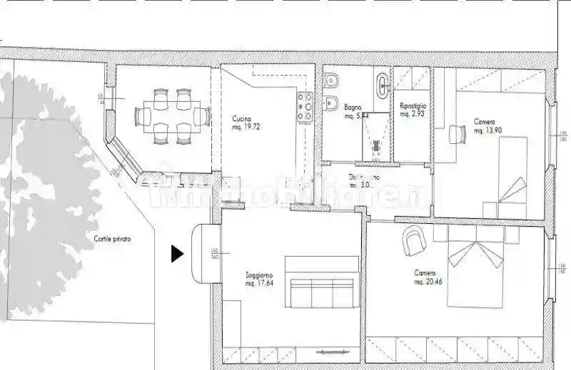
Faenza, posizione strategica: vicino alla stazione, ai servizi e al centro cittadino. Prossima ristrutturazione di una splendida palazzina storica, EX FABBRICA MINARDI, all’angolo tra via Oriani e via Salvolini dove proponiamo SEI SOLUZIONI di altissimo livello. Tra le proposte, un TRILOCALE AL PIANO TERRA con affaccio sulla SUA CORTE ESCLUSIVA e su via Salvolini. L’appartamento, SVILUPPATO TUTTO SU DI UN PIANO, presenta un INGRESSO INDIPENDENTE che si apre sulla corte privata che conduce al SOGGIORNO, alla CUCINA ABITABILE di circa 20 mq, al disimpegno notte, alle DUE CAMERE DA LETTO, all' ampio bagno e al ripostiglio. La pianta è funzionale e razionale, favorendo una distribuzione pratica e fluida degli ambienti. Le AMPIE FINESTRE, caratteristiche degli edifici storici, valorizzano gli spazi e garantiscono ambienti luminosi. La proprietà include anche una comoda CANTINA AL PIANO INTERRATO. Il capitolato prevede finiture moderne di livello, che si integrano armoniosamente con il carattere storico dell’edificio grazie a materiali scelti con cura. Possibilità di acquisto POSTI AUTO situati INTERNAMENTE ALLA CORTE.
Immagini di rendering.
Contattaci per ulteriori dettagli, planimetrie e per scegliere insieme le finiture del capitolato.
Rif. Unità A1

Caratteristiche

Piano T
Ascensore No
Stato Ottimo / Ristrutturato
Riscaldamento Autonomo, ad aria, alimentazione elettrica

Servizi e accessori

Porta blindata

Posizione

Referente

Il Labirinto Immobiliare S.N.C.

Storico

Pubblicato 12 Jan 2026
Aggiornato 18 Feb 2026
Sul mercato 44 giorni
ID Annuncio 124657233

Recensioni

Vedi tutte
C

Camilla Landini

4.7

Ho scelto questa agenzia perché mi hanno colpito la loro sincerità e il modo in cui accompagnano nelle visite, senza pressioni. Mi sono trovata subito a mio agio, e la loro onestà nelle valutazioni mi...

M

Miriam Ferro

4.3

Stavo cercando una seconda casa al mare e devo dire che ho trovato davvero quello che desideravo grazie all'ampia scelta di immobili disponibili. Mi ha colpito molto la capacità di ascolto e attenzion...

L

Lisa Farina

4.0

Ho trovato la casa perfetta vicino ai miei genitori anziani e sono molto soddisfatta del supporto ricevuto, soprattutto nella gestione del mutuo che è stato semplice e senza stress. La loro attenzione...

E

Emma Rossetti

4.0

Quando ho deciso di acquistare un terreno a Faenza, ho scelto questa agenzia perché offriva massima flessibilità negli orari e un supporto davvero prezioso nella fase di richiesta del mutuo. Sono stat...