Indietro
Vendita Attico - Mansarda

Attico - Mansarda

Piazza Giovanni Falcone, Bregnano, Como

Prezzo
213
mq
4
Locali
2
Camere
3
Bagni

Recensisci questo Immobile

Devi essere registrato per lasciare una recensione.

Accedi

Nessuna recensione ancora. Sii il primo!

Descrizione

VISIBILE SOLO IN OPEN HOUSE: MANDA UNA RICHIESTA VIA MAIL O CHIAMA PER PRENOTARE IL TUO APPUNTAMENTO

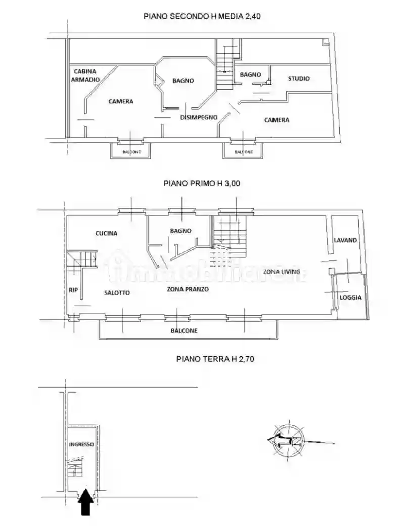
INTROVABILE APPARTAMENTO IN CONTESTO ESCLUSIVO

Bregnano centro, in esclusivo contesto d'epoca, ELEGANTE APPARTAMENTO DISPOSTO SU DUE LIVELLI con ingresso indipendente al piano terra. Si tratta di un alloggio completamente ristrutturato, con finiture eccellenti ed una distribuzione degli spazi con ambienti luminosi e tutti di generose dimensioni, SVILUPPA UNA SUPERFICIE TOTALE DI CIRCA 200 METRI QUADRATI. Si presenta in ottime condizioni, le immagini parlano da sole!
E' presente impianto di condizionamento ed alcuni dettagli dell'arredo, come le boiserie, le ante in legno a scomparsa, ecc... sono comprese nella vendita.
A completare la proprietà vi è uno spazio adibito a due posti auto, all'interno della proprietà.
Classe energetica "D" indice di prestazione energetica 118,59 kwh/mq anno
Prezzo di vendita € 335.000

Caratteristiche

Ascensore No
Stato Ottimo / Ristrutturato
Riscaldamento Autonomo, a radiatori, alimentato a gas

Servizi e accessori

Armadio a muro Cancello elettrico Esposizione doppia Fibra ottica Idromassaggio Impianto di allarme Impianto tv con parabola satellitare Infissi esterni in doppio vetro / legno Mansarda Porta blindata VideoCitofono

Posizione

Referente

Francesco Scorza

Storico

Pubblicato 13 Jan 2026
Disattivato 01 May 2026
Sul mercato 133 giorni
ID Annuncio 124688047

Recensioni

Vedi tutte
T

Tiziano Bonetti

5.0

Ho trovato il supporto perfetto per il mio trasferimento a Cadorago grazie a questa agenzia. Mi hanno ascoltato attentamente, capendo subito le mie esigenze, e mi hanno accompagnato passo dopo passo n...

A

Alberto Lama

4.7

Ho avuto un’esperienza fantastica con questa agenzia immobiliare a Cadorago. Sono stato seguito con molta cortesia e professionalità in ogni fase, dall’individuazione del bilocale perfetto fino alle v...

P

Piero Ferro

4.7

Stavo cercando un appartamento con vista mare e l'agenzia mi ha seguito passo dopo passo, ascoltando attentamente le mie esigenze. Sono stato molto soddisfatto della loro professionalità e disponibili...

L

Lello Chiesa

4.7

L'attenzione ai dettagli e la conoscenza approfondita delle normative mi hanno colpito fin dal primo incontro, rendendo l'intera esperienza molto più serena. Durante la trattativa, sono stato seguito...

A

Angelo Geraci

4.3

Ho scelto questa agenzia perché mi hanno colpito la loro rapidità nelle risposte e la conoscenza approfondita delle normative immobiliari. Mi hanno aiutato a trovare la casa perfetta vicino ai miei ge...