Vendita Appartamento

Appartamento

Castellarano, Reggio Emilia

Prezzo su richiesta
128
mq
4
Locali
3
Camere
2
Bagni

Recensisci questo Immobile

Devi essere registrato per lasciare una recensione.

Accedi

Nessuna recensione ancora. Sii il primo!

Descrizione

Nuova costruzione al piano terra con giardino privato – occasione imperdibile!

A soli 4 minuti da Castellarano e 10 minuti da Sassuolo, in una zona tranquilla e comoda ai servizi, proponiamo un immobile in fase di completa ristrutturazione, ideale per chi cerca modernità e comfort a un ottimo prezzo.

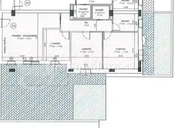
La soluzione, posta al piano terra, offre una spaziosa zona giorno con angolo cottura, tre camere da letto e due bagni, il tutto rifinito con materiali di qualità e con possibilità di personalizzazione.
L’abitazione si completa con un giardino privato perfetto per momenti di relax all’aria aperta e un portico che rappresenta un ulteriore spazio vivibile in ogni stagione.

Un’opportunità unica per chi desidera una casa nuova, efficiente e con ampi spazi esterni.

Possibilità anche di altre tipologie di appartamenti e villette.

Contattaci per maggiori informazioni!

Caratteristiche

Piano T
Stato Nuovo / In costruzione
Riscaldamento Autonomo, a pavimento, alimentato a metano

Servizi e accessori

Fibra ottica Infissi esterni in vetro / PVC VideoCitofono

Posizione

Referente

Gabetti Franchising Fiorano Modenese

Storico

Pubblicato 12 Jan 2026
Aggiornato 24 Feb 2026
Sul mercato 43 giorni
ID Annuncio 124704481

Recensioni

Vedi tutte
A

Alessandra Fiore

4.7

Ho venduto la mia casa in pochissimo tempo grazie alla loro rapidità e competenza, sono rimasta davvero colpita! Mi sono sentita seguita e aiutata passo passo durante tutta la trattativa, il team è st...

F

Fabio Bartoli

4.7

La cortesia e la pazienza dimostrate durante tutto il processo mi hanno colpito profondamente. Ho trovato nello staff un supporto costante e attento, che mi ha aiutato a vendere il locale commerciale...

E

Elisa Lanzoni

4.7

Ho trovato un'agenzia immobiliare affidabile e precisa, che mi ha seguita passo dopo passo con grande professionalità. Sono stata molto soddisfatta del supporto durante la vendita della mia casa dopo...

F

Fabiana Perini

4.3

Stavo cercando la mia prima casa a Fiorano e ho trovato l’agenzia perfetta. Mi hanno seguita passo passo durante tutte le visite, facendomi sentire davvero a mio agio e senza stress. Sono stata molto...