Vendita Rustico - Casale

Rustico - Casale

Via Vigolo, Negrar di Valpolicella, Verona

Prezzo
83
mq
3
Locali
1
Camere
1
Bagni

Recensisci questo Immobile

Devi essere registrato per lasciare una recensione.

Accedi

Nessuna recensione ancora. Sii il primo!

Descrizione

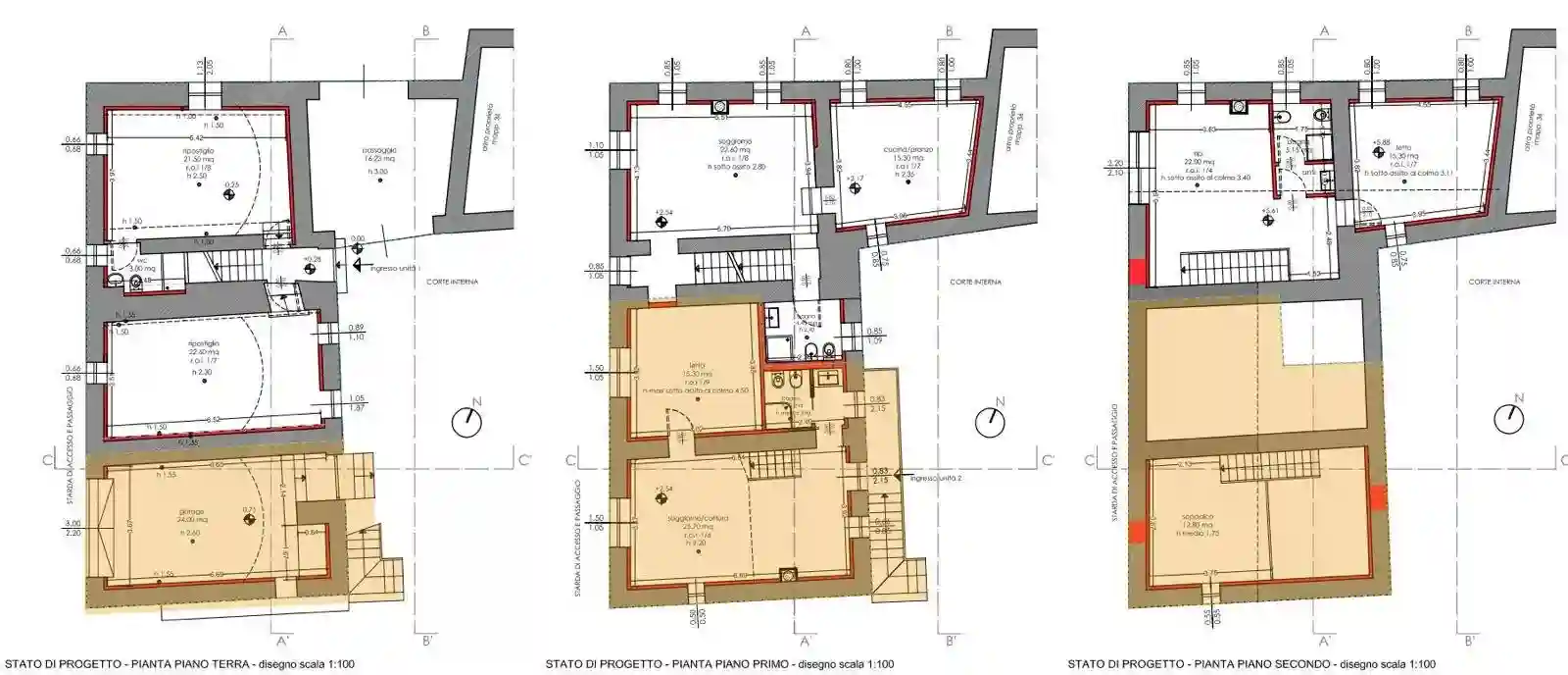
Nelle immediate vicinanze del centro di Negrar, inserito in piccolo e caratteristico contesto di corte, proponiamo due rustici affiancati completamente ristrutturati e portati al grezzo avanzato. Spettacolare vista panoramica.
Possibile unica soluzione con predisposizione agli impianti separati; è ultimabile con una spesa ragionevole, che tiene conto della possibilità di scegliere e personalizzare tutta la fase della finitura.
Nell'ipotesi del frazionamento, le due unità, vendibili separatamente, sono così composte:
- Soggiorno con angolo cottura, camera matrimoniale, bagno e ampio soppalco affacciato sulla zona giorno.
- Ampia taverna fuori terra al piano terra, e al piano primo e secondo cucina soggiorno, due camere da letto e due bagni. Contattare tramite mail: andreoliimmobiliare60@gmail.com - Tel 3483044950

Caratteristiche

Ascensore No
Riscaldamento Autonomo

Servizi e accessori

Esposizione doppia

Posizione

Referente

Immobiliare Andreoli Loredana

Storico

Pubblicato 15 Jan 2026
Aggiornato 26 May 2026
Sul mercato 132 giorni
ID Annuncio 124763745