Appartamento
Asta
Asta Appartamento

Appartamento

VIA ETTORE PINZANI, 28, Dicomano, Firenze

64.800 €
77
mq
4
Locali

Recensisci questo Immobile

Devi essere registrato per lasciare una recensione.

Accedi

Nessuna recensione ancora. Sii il primo!

Descrizione

A Dicomano, in zona tranquilla e nel verde a circa 1 km dal centro, proponiamo in vendita all’asta un appartamento al piano terreno con giardino esclusivo, ideale come prima casa per single/coppia o come investimento.

L’immobile fa parte di un fabbricato tipico dell’edilizia toscana, ristrutturato, con facciate in intonaco giallo ocra e porzioni in pietra a vista. L’accesso avviene da corte comune e da giardino privato.

Caratteristiche principali
Comune: Dicomano (FI)
Indirizzo: Via Ettore Pinzani 28, piano terreno
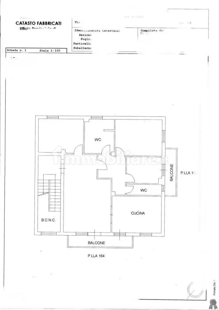
Superficie lorda: ca. 72 mq
Giardino esclusivo: ca. 50 mq
Locali: soggiorno, cucina, camera matrimoniale, bagno, disimpegno
Stato: libero, condizioni interne molto buone
Fabbricato: tipologia storica toscana, ristrutturato
Impianti: riscaldamento autonomo a metano, impianti principali presenti, pannelli solari
Sicurezza: grate in ferro battuto alle aperture

Punti di forza
Zona silenziosa e nel verde, ma vicina ai servizi di Dicomano

Ingresso indipendente e giardino privato, perfetto per chi ha animali o ama gli spazi esterni

Appartamento ristrutturato, con finiture in cotto e pietra a vista
Nessuna gestione condominiale significativa

Ottimo rapporto qualità/prezzo grazie all’acquisto in asta

Prezzo e asta
Valore di perizia: € 110.000

Ti seguiamo in tutto il percorso:
analisi della perizia
verifica documentale
calcolo costi complessivi
partecipazione all’asta assistita
supporto fino al decreto di trasferimento
Contattaci per conoscere data dell’asta, modalità di partecipazione e per fissare un appuntamento informativo.
Annuncio di Neovit Pisa e Firenze. Trattasi di asta immobiliare.

Caratteristiche

Ascensore No
Riscaldamento Assente

Posizione

Storico

Pubblicato 27 Dec 2025
Aggiornato 15 Feb 2026
Sul mercato 56 giorni
ID Annuncio 124787559

Recensioni

Vedi tutte
C

Cinzia Brunetti

4.3

Le mie precedenti esperienze con agenzie immobiliari erano spesso confuse e lunghe, ma questa volta è stata tutta un’altra storia. Mi sono sentita seguita e aiutata fin dal primo momento, con spiegazi...

R

Rosa Lorusso

4.3

Se cercate un'agenzia affidabile, scegliete sempre quella con una buona conoscenza del mercato locale e tanta trasparenza. Sono stata seguita passo dopo passo nel trovare la mia seconda casa al mare a...

C

Cecilia Carmignani

5.0

Ricordo ancora il momento in cui ho trovato finalmente la casa dei miei sogni, è stata una vera emozione. Sono stata seguita passo passo nelle visite e ho apprezzato tanto la rapidità con cui hanno ri...

N

Nadia Coppola

4.3

Ho scelto questa agenzia perché mi hanno subito trasmesso serietà e capacità di ascolto, cosa fondamentale in un momento delicato come il mio. Sono stata seguita passo passo con grande professionalità...