Non più attivo
Vendita Appartamento

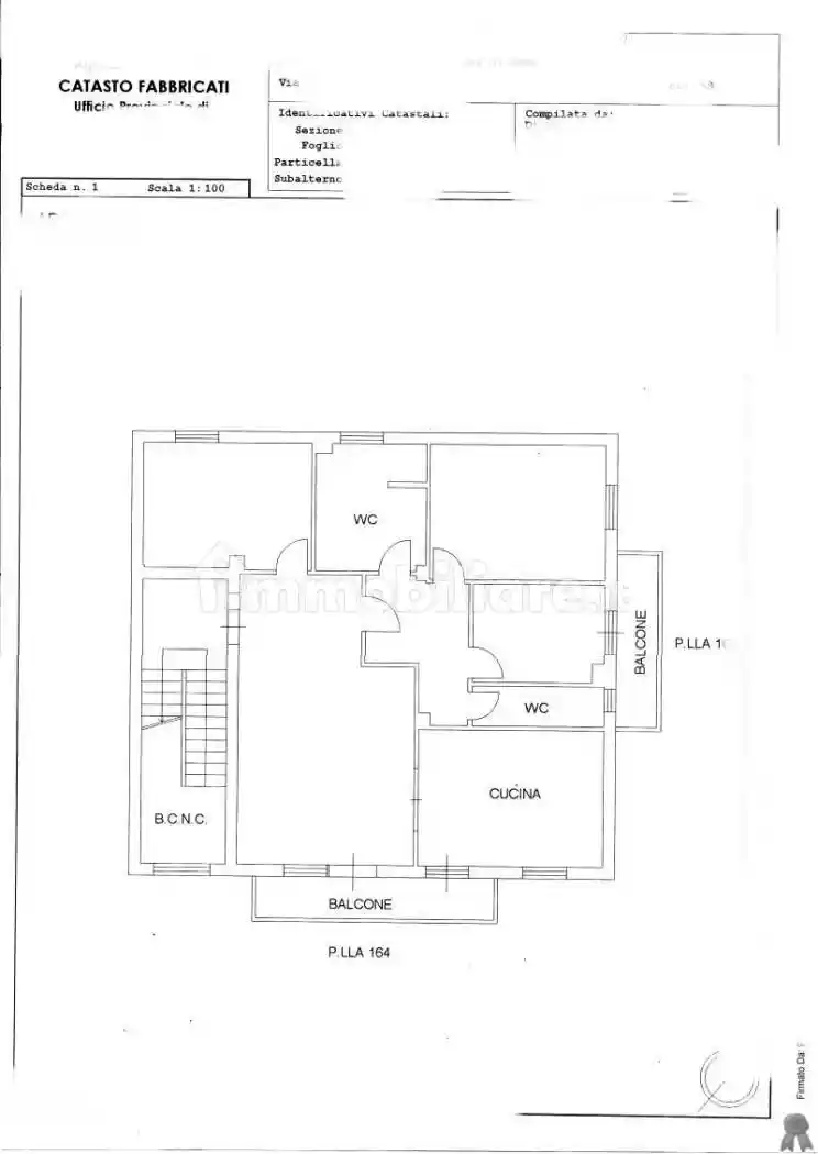
Appartamento

Via Volta 12, Carnate, Monza e Brianza

Prezzo
Ottimo Affare: 36% sotto la media
155
mq
5+
Locali
2
Bagni

Recensisci questo Immobile

Devi essere registrato per lasciare una recensione.

Accedi

Nessuna recensione ancora. Sii il primo!

Caratteristiche

Piano 2

Posizione

Agenzia Immobiliare

Storico

Pubblicato 13 Jan 2026
Aggiornato 06 Apr 2026
Sul mercato 88 giorni
ID Annuncio 124793513