Appartamento
Asta
Asta Appartamento

Appartamento

Via XXV Aprile, 12, 61039 San Costanzo PU, Italia, San Costanzo, Pesaro Urbino

75.352 €
101
mq
5
Locali
2
Camere

Recensisci questo Immobile

Devi essere registrato per lasciare una recensione.

Accedi

Nessuna recensione ancora. Sii il primo!

Descrizione

Appartamento a San Costanzo (PU) [SY596804]
Via XXV Aprile, 12, 61039 San Costanzo PU, Italia
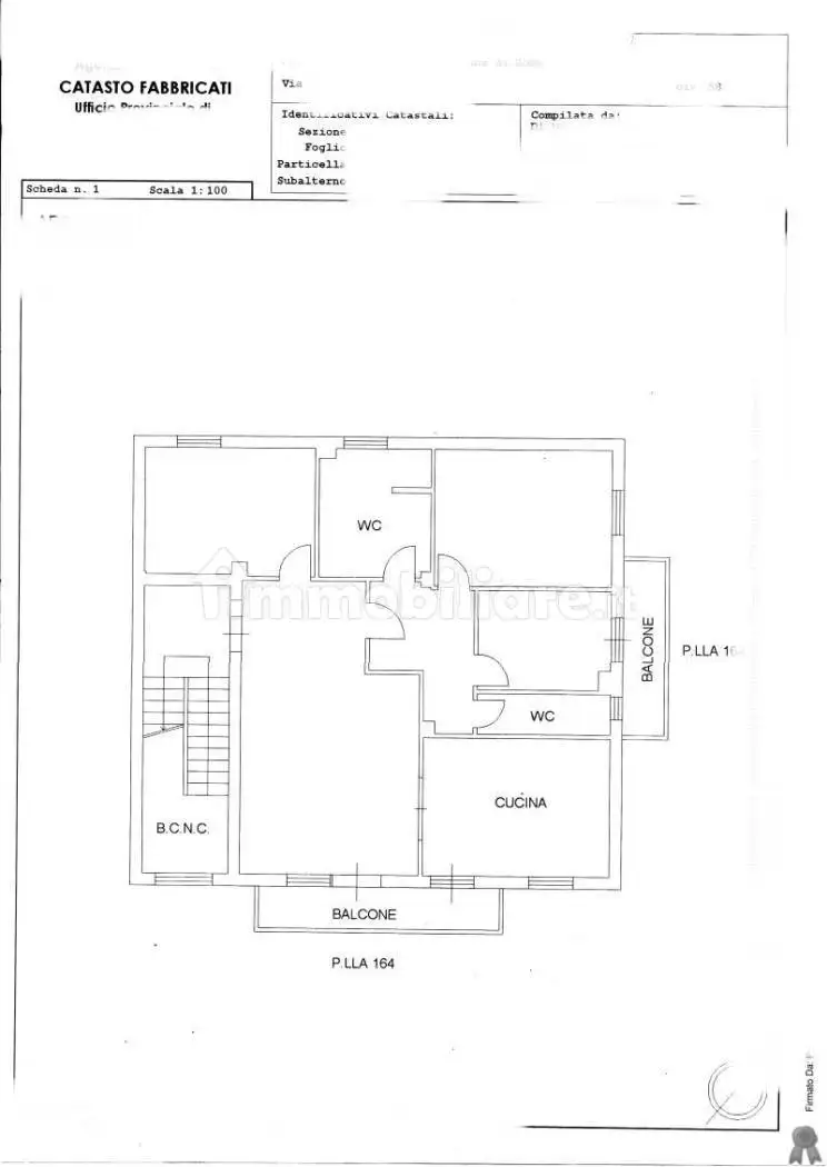
Appartamento a SAN COSTANZO VIA XXV APRILE (ex Strada Volpella) 12, categoria A/2, classe 1, consistenza 5 vani, della superficie commerciale di 79,12 mq. Appartamento al piano terra ha un'altezza interna di 269 m., è costituito da ingresso-soggiorno-pranzo con accesso su corte esclusiva sul retro, cucina con accesso su altra corte esclusiva sul fronte a confine con il marciapiede su Via XXV Aprile, sottoscala, due camere da letto e bagno dotato di quattro sanitari (lavandino, wc, bidè e doccia con cabina in vetro). Si evidenzia la presenza nel pavimento del bagno di due coperchi in metallo per l'ispezione degli scarichi reflui, inoltre sempre nel bagno si evidenzia la presenza a soffitto sopra al wc, di uno scatolare in cartongesso ove al suo interno presumibilmente è presente lo scarico del wc della soprastante abitazione. All'interno dell'abitazione è presente un camino nel soggiorno. Autorimessa al piano interrato, categoria C/6, classe 1, della superficie commerciale di 22,17 mq., entrambi ricadenti in condominio orizzontale costituito da dodici corpi di fabbrica con sviluppo lineare in batteria, prevalentemente suddivisi in due abitazioni di cui una con sviluppo al piano terra con scoperto esclusivo sul fronte e sul retro e una con sviluppo al piano primo con sottotetto, dotate di autorimessa al piano interrato. Gli edifici sono stati costruiti mediante lottizzazione nell'anno 2002 e completati nell'anno 2015/2016 e sono forniti delle opere di urbanizzazione primaria. L'edificio in cui ricadono i beni è stato realizzato con struttura portante in cemento armato, solai di interpiano in lateocemento e copertura a due falde del tipo a capanna. I fabbricati sono intonacati e tinteggiati con alcuni dettagli in mattoni a vista, le coperture sono rifinite con elementi in laterizio, scossaline e gronde in rame e pluviali in rame. In copertura svettano i comignoli delle canne fumarie provenienti dalle abitazioni sottostanti.
ATTENZIONE: si segnala che le caratteristiche precompilate automaticamente dal software nell’annuncio potrebbero contenere refusi (ad esempio in merito a: le foto pubblicate potrebbero non corrispondere all'immobile specifico, indirizzo e/o mappa e/o geolocalizzazione; tipologia; superficie; vani; piani; disponibilità; garanzie; efficienza energetica; scadenza; ipotesi mutuo; stato buono/sufficiente ecc.). Pertanto, si consiglia di riferirsi preferibilmente alla descrizione del bene di cui sopra, oltre che al referente indicato.

Possibilità di Mutuo al 100%

Per maggiori informazioni puoi contattare il nostro referente di zona

Marco Foglietti Agenzia Centro Aste Fil. Pesaro Urbino

Tel. 0721/1722360

email: centroastepesaro @ gmail.com

SU QUESTO IMMOBILE E’ POSSIBILE:

- Mutuo al 100%
- Visita Interni
- NO Oneri Notarili
- Nessuna Ipoteca
- Agevolazione Prima Casa

Le foto pubblicate potrebbero non corrispondere all'immobile specific

Caratteristiche

Piano Piano terra
Ascensore No
Stato Buono / Abitabile
Riscaldamento Autonomo
Garage 1 in box privato/box in garage

Servizi e accessori

Cucina Terrazzo Impianto tv con parabola satellitare Giardino privato

Posizione

Referente

Marco Foglietti

Storico

Pubblicato 03 Jan 2026
Aggiornato 15 Feb 2026
Sul mercato 48 giorni
ID Annuncio 124827131

Recensioni

Vedi tutte
S

Silvana Turco

4.7

Prima di questa esperienza, avevo sempre trovato il mondo immobiliare un po’ complicato e pieno di incertezze, ma questa volta è stato diverso. Mi sono sentita seguita passo dopo passo, con spiegazion...

S

Simona Tommasi

4.7

Ho scelto questa agenzia perché mi ha colpito la loro puntualità negli appuntamenti e la tanta affidabilità che trasmettono. Mi sono trovata subito seguita e aiutata nella ricerca di un affitto a Pesa...

G

Grazia Ruggiero

4.3

Ricordo ancora quando ho deciso di vendere l’appartamento di famiglia: sono stata subito trovata da un’agenzia davvero professionale e disponibile. Mi hanno seguita passo passo, spiegandomi tutto con...

S

Simone Alemagna

4.0

Il loro team è stato davvero disponibile fin dal primo momento, ascoltando ogni mia esigenza e guidandomi con attenzione nella scelta del terreno. La vasta scelta di immobili e la professionalità degl...